New Homes » Kanto » Kanagawa Prefecture » Zama City
 
| | Zama City, Kanagawa Prefecture 神奈川県座間市 |
| Enoshima Odakyu "Minamirinkan" walk 21 minutes 小田急江ノ島線「南林間」歩21分 |
| Super close, Shaping land, LDK18 tatami mats or more, Face-to-face kitchen, Mist sauna, TV with bathroom, Corresponding to the flat-35S, System kitchen, Bathroom Dryer, All room storage, Flat to the station, Quiet living スーパーが近い、整形地、LDK18畳以上、対面式キッチン、ミストサウナ、TV付浴室、フラット35Sに対応、システムキッチン、浴室乾燥機、全居室収納、駅まで平坦、閑静な住 |
Features pickup 特徴ピックアップ | | Corresponding to the flat-35S / LDK18 tatami mats or more / Super close / System kitchen / Bathroom Dryer / All room storage / Flat to the station / A quiet residential area / Japanese-style room / Shaping land / Mist sauna / Washbasin with shower / Face-to-face kitchen / Toilet 2 places / Bathroom 1 tsubo or more / 2-story / Double-glazing / Warm water washing toilet seat / TV with bathroom / Underfloor Storage / The window in the bathroom / TV monitor interphone / Dish washing dryer / Water filter / All rooms are two-sided lighting / Attic storage フラット35Sに対応 /LDK18畳以上 /スーパーが近い /システムキッチン /浴室乾燥機 /全居室収納 /駅まで平坦 /閑静な住宅地 /和室 /整形地 /ミストサウナ /シャワー付洗面台 /対面式キッチン /トイレ2ヶ所 /浴室1坪以上 /2階建 /複層ガラス /温水洗浄便座 /TV付浴室 /床下収納 /浴室に窓 /TVモニタ付インターホン /食器洗乾燥機 /浄水器 /全室2面採光 /屋根裏収納 | Event information イベント情報 | | Local tours (please make a reservation beforehand) schedule / Every Saturday, Sunday and public holidays time / 9:30 ~ 19:00 ~ ~ A variety of equipment ・ Standard specification ~ ~ ・ Roof asphalt shingle roofing ・ Outer wall soft ricin finish + Ikamu original ripple finish ・ Construction Reinforced concrete mat foundation Basic packing method Glulam 3.5 cun angle (continuous columns 4 cun angle) etc ... ・ Aluminum sash All rooms have double-glazing All opening screen door standard First floor of the shutter and the surface lattice standard ・ Ground survey, Ground improvement and construction according to the state ・ Entrance fingerprint authentication locking ・ Intercom with color monitor ・ System kitchen Dishwasher All-in-one water purification plug (shower faucet) Floor sliding door storage ・ Bathroom vanity Single lever shower faucet ・ Unit bus (standard size 1616) Heating function with dryer Mist sauna standard Sitz bath can be a multi-step specification bathtub Bathroom 16 inches TV ・ Each floor toilet (more than 27 square meters) Washlet (standard in one place) Warm toilet (one location) ・ Attic storage of effective space about 2 mat ensure ※ The above standard specifications are subject to change without prior notice. Please note. 現地見学会(事前に必ず予約してください)日程/毎週土日祝時間/9:30 ~ 19:00 ~ ~ 多彩な設備・標準仕様 ~ ~ ・屋根アスファルトシングル葺き・外壁ソフトリシン仕上げ+イーカムオリジナルリップル仕上げ・構造 鉄筋コンクリート造りベタ基礎 基礎パッキン工法 集成材3.5寸角(通し柱4寸角)etc…・アルミサッシ 全室ペアガラス 全開口部網戸標準 1階部分シャッター及び面格子標準・地盤調査、状態に応じ地盤改良施工・玄関指紋認証施錠・カラーモニター付インターホン・システムキッチン 食洗機 オールインワン浄水栓(シャワー水栓) フロアスライドドア収納・洗面化粧台 シングルレバーシャワー水栓・ユニットバス(標準サイズ1616) 暖房機能付乾燥機 ミストサウナ標準 半身浴可能なマルチステップ仕様浴槽 浴室16インチテレビ・各階トイレ(27坪以上) ウォシュレット(標準で1ヵ所) ウォームレット(1ヵ所)・有効スペース約2畳確保の小屋裏収納※上記標準仕様は予告なく変更する場合があります。予めご了承ください。 | Price 価格 | | 26.5 million yen 2650万円 | Floor plan 間取り | | 2LDK + 2S (storeroom) 2LDK+2S(納戸) | Units sold 販売戸数 | | 1 units 1戸 | Total units 総戸数 | | 1 units 1戸 | Land area 土地面積 | | 86.62 sq m (26.20 square meters) 86.62m2(26.20坪) | Building area 建物面積 | | 97.5 sq m (29.49 square meters) 97.5m2(29.49坪) | Driveway burden-road 私道負担・道路 | | Nothing, North 4m width (contact the road width 8.3m) 無、北4m幅(接道幅8.3m) | Completion date 完成時期(築年月) | | March 2014 2014年3月 | Address 住所 | | Zama City, Kanagawa Prefecture Komatsubara 2 神奈川県座間市小松原2 | Traffic 交通 | | Enoshima Odakyu "Minamirinkan" walk 21 minutes 小田急江ノ島線「南林間」歩21分
| Related links 関連リンク | | [Related Sites of this company] 【この会社の関連サイト】 | Contact お問い合せ先 | | TEL: 0800-603-1295 [Toll free] mobile phone ・ Also available from PHS Caller ID is not notified Please contact the "saw SUUMO (Sumo)" If it does not lead, If the real estate company TEL:0800-603-1295【通話料無料】携帯電話・PHSからもご利用いただけます 発信者番号は通知されません 「SUUMO(スーモ)を見た」と問い合わせください つながらない方、不動産会社の方は
| Building coverage, floor area ratio 建ぺい率・容積率 | | 60% ・ 200% 60%・200% | Time residents 入居時期 | | March 2014 schedule 2014年3月予定 | Land of the right form 土地の権利形態 | | Ownership 所有権 | Structure and method of construction 構造・工法 | | Wooden 2-story (framing method) 木造2階建(軸組工法) | Construction 施工 | | (Ltd.) Ikamu (株)イーカム | Use district 用途地域 | | One middle and high 1種中高 | Overview and notices その他概要・特記事項 | | Facilities: Public Water Supply, This sewage, Individual LPG, Building confirmation number: the H25 building certification No. KBI03715, Parking: car space 設備:公営水道、本下水、個別LPG、建築確認番号:第H25確認建築KBI03715号、駐車場:カースペース | Company profile 会社概要 | | <Seller> Kanagawa Governor (2) No. 024804 (the company), Kanagawa Prefecture Building Lots and Buildings Transaction Business Association (Corporation) metropolitan area real estate Fair Trade Council member (Ltd.) Ikamu Yubinbango252-0143 Sagamihara City, Kanagawa Prefecture Midori-ku Hashimoto 3-11-8 <売主>神奈川県知事(2)第024804号(社)神奈川県宅地建物取引業協会会員 (公社)首都圏不動産公正取引協議会加盟(株)イーカム〒252-0143 神奈川県相模原市緑区橋本3-11-8 |
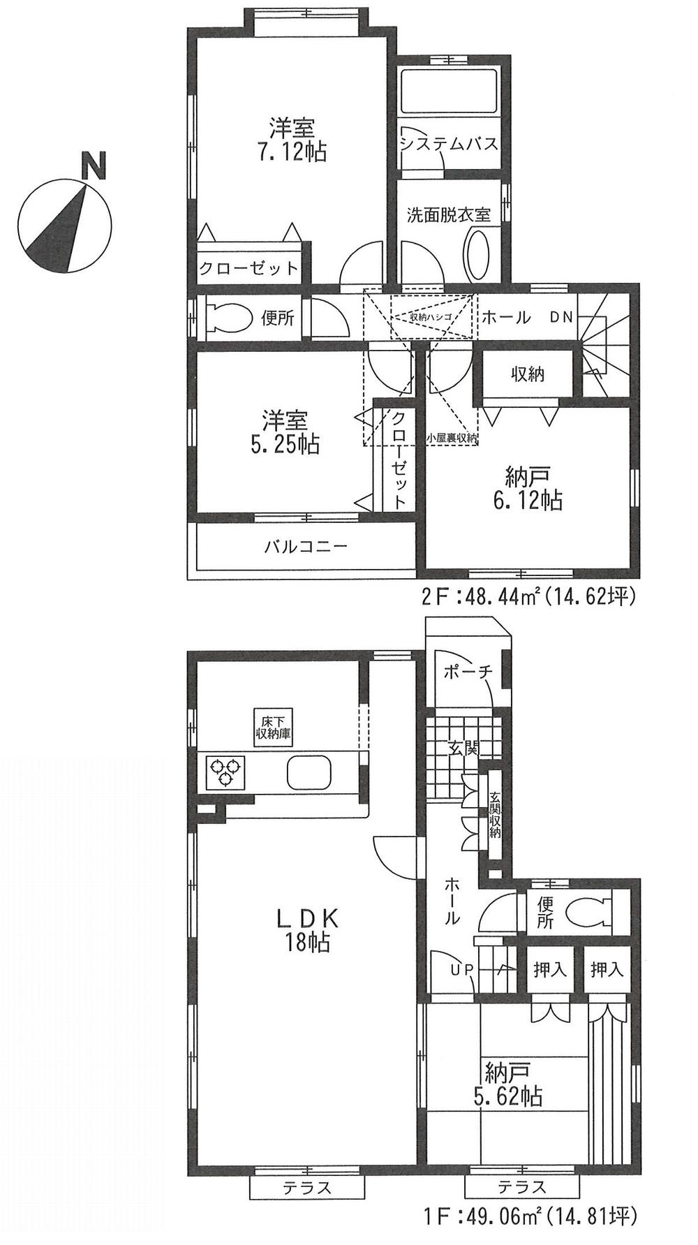
Floor plan間取り図  26.5 million yen, 2LDK + 2S (storeroom), Land area 86.62 sq m , Building area 97.5 sq m LDK18 Pledge There is attic storage
2650万円、2LDK+2S(納戸)、土地面積86.62m2、建物面積97.5m2 LDK18帖 小屋裏収納あり
Receipt収納  Ceiling height shoe closet
天井高シューズクロゼット
Same specifications photos (living)同仕様写真(リビング)  Joinery door interior high door specification
建具扉インテリアハイドア仕様
Same specifications photos (appearance)同仕様写真(外観)  Appearance same specifications Photos (Roof Hiroshi tiled, Outer wall Ikamu original ripple finish same specifications)
外観同仕様写真 (屋根洋瓦葺き、外壁イーカムオリジナルリップル仕上げ同仕様)
Same specifications photo (bathroom)同仕様写真(浴室)  Mist sauna, 16 inches TV, Warm bath, TOTO
ミストサウナ、16インチTV、保温浴槽、TOTO
Same specifications photo (kitchen)同仕様写真(キッチン)  Artificial marble sink, Dish dryer, Takara
人造大理石シンク、食洗乾燥機、タカラ
Primary school小学校  566m until Yamato Municipal Minamirinkan Elementary School
大和市立南林間小学校まで566m
Same specifications photos (Other introspection)同仕様写真(その他内観)  Room same specifications
居室同仕様
Junior high school中学校  646m until Yamato Municipal Minamirinkan junior high school
大和市立南林間中学校まで646m
Kindergarten ・ Nursery幼稚園・保育園  Komatsubara 343m to kindergarten
小松原幼稚園まで343m
 Zama Municipal Komatsubara to nursery 544m
座間市立小松原保育園まで544m
 800m to violet kindergarten
スミレ幼稚園まで800m
Hospital病院  800m until Taguchi clinic
田口クリニックまで800m
 650m to Toba internal medicine
鳥羽内科まで650m
Other Equipmentその他設備  Ikamu Showroom
イーカムショールーム
Location
|