|
|
Zama City, Kanagawa Prefecture
神奈川県座間市
|
|
Sagami Railway Main Line "Kashiwadai" walk 12 minutes
相鉄本線「かしわ台」歩12分
|
|
Southeast corner lot ・ Day good ・ Building completed.
東南角地・日当り良好・建物完成。
|
|
Siemens south road, Yang per good, LDK15 tatami mats or more, Facing south, System kitchen, Bathroom 1 tsubo or more, 2-story, All living room flooring
南側道路面す、陽当り良好、LDK15畳以上、南向き、システムキッチン、浴室1坪以上、2階建、全居室フローリング
|
Features pickup 特徴ピックアップ | | It is close to the city / Facing south / System kitchen / Yang per good / Siemens south road / LDK15 tatami mats or more / Bathroom 1 tsubo or more / 2-story / All living room flooring / Flat terrain 市街地が近い /南向き /システムキッチン /陽当り良好 /南側道路面す /LDK15畳以上 /浴室1坪以上 /2階建 /全居室フローリング /平坦地 |
Event information イベント情報 | | Open House (Please visitors to direct local) schedule / January 5 (Sunday) ・ January 11 (Saturday) ・ January 12 (Sunday) ・ January 13 (Monday) Time / 10:00 ~ 18:00 Address: Zama Minamikurihara 6-chome No. 31 No. 18 オープンハウス(直接現地へご来場ください)日程/1月5日(日曜日)・1月11日(土曜日)・1月12日(日曜日)・1月13日(月曜日)時間/10:00 ~ 18:00住所:座間市南栗原6丁目31番18号 |
Price 価格 | | 25,800,000 yen 2580万円 |
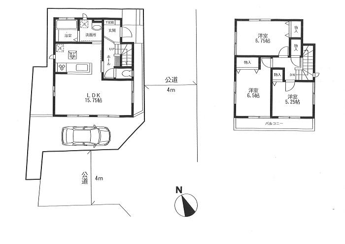
Floor plan 間取り | | 3LDK 3LDK |
Units sold 販売戸数 | | 1 units 1戸 |
Total units 総戸数 | | 1 units 1戸 |
Land area 土地面積 | | 84.31 sq m (measured) 84.31m2(実測) |
Building area 建物面積 | | 82.8 sq m (measured) 82.8m2(実測) |
Driveway burden-road 私道負担・道路 | | Nothing, South 4m width (contact the road width 5m), East 4m width (contact the road width 7m) 無、南4m幅(接道幅5m)、東4m幅(接道幅7m) |
Completion date 完成時期(築年月) | | January 2014 2014年1月 |
Address 住所 | | Zama City, Kanagawa Prefecture Minamikurihara 6 神奈川県座間市南栗原6 |
Traffic 交通 | | Sagami Railway Main Line "Kashiwadai" walk 12 minutes 相鉄本線「かしわ台」歩12分
|
Related links 関連リンク | | [Related Sites of this company] 【この会社の関連サイト】 |
Person in charge 担当者より | | Person in charge of real-estate and building Mitsugu Kaneko Age: 40 Daigyokai Experience: 15 years Nice to meet you. My name is Kaneko. Since joining the real estate industry, To 200 pairs like more than customers we have to purchase the real estate. Considered important to meet with customers, Your sale of real estate, We will be the best suggestions Upon your purchase. 担当者宅建金子貢年齢:40代業界経験:15年はじめまして。金子と申します。不動産業界に入社して以来、200組様超のお客様に不動産をご購入して頂きました。お客様との出会いを大切に考え、不動産のご売却、ご購入にあたり最適なご提案をさせて頂きます。 |
Contact お問い合せ先 | | TEL: 0800-603-3685 [Toll free] mobile phone ・ Also available from PHS Caller ID is not notified Please contact the "saw SUUMO (Sumo)" If it does not lead, If the real estate company TEL:0800-603-3685【通話料無料】携帯電話・PHSからもご利用いただけます 発信者番号は通知されません 「SUUMO(スーモ)を見た」と問い合わせください つながらない方、不動産会社の方は
|
Building coverage, floor area ratio 建ぺい率・容積率 | | Fifty percent ・ Hundred percent 50%・100% |
Time residents 入居時期 | | 1 month after the contract 契約後1ヶ月 |
Land of the right form 土地の権利形態 | | Ownership 所有権 |
Structure and method of construction 構造・工法 | | Wooden 2-story (framing method) 木造2階建(軸組工法) |
Use district 用途地域 | | One low-rise 1種低層 |
Other limitations その他制限事項 | | Regulations have by the Landscape Act, Shade limit Yes 景観法による規制有、日影制限有 |
Overview and notices その他概要・特記事項 | | Contact: Mitsugu Kaneko, Facilities: Public Water Supply, This sewage, Individual LPG, Building confirmation number: HPA-13-04937-1 No., Parking: car space 担当者:金子貢、設備:公営水道、本下水、個別LPG、建築確認番号:HPA-13-04937-1号、駐車場:カースペース |
Company profile 会社概要 | | <Mediation> Kanagawa Governor (2) No. 025528 (the company), Kanagawa Prefecture Building Lots and Buildings Transaction Business Association (Corporation) metropolitan area real estate Fair Trade Council member (Ltd.) House and House Yubinbango242-0021 Yamato-shi, Kanagawa center 5-1-3 Blanc Yamato <仲介>神奈川県知事(2)第025528号(社)神奈川県宅地建物取引業協会会員 (公社)首都圏不動産公正取引協議会加盟(株)ハウスアンドハウス〒242-0021 神奈川県大和市中央5-1-3 ブラン大和 |