New Homes » Kanto » Kanagawa Prefecture » Zushi
 
| | Kanagawa Prefecture Zushi 神奈川県逗子市 |
| JR Yokosuka Line "Higashi Zushi" walk 17 minutes JR横須賀線「東逗子」歩17分 |
| Northwest, surrounded by nature, Newly built single-family of southwest corner lot 自然に囲まれた北西、南西角地の新築戸建 |
Features pickup 特徴ピックアップ | | Parking two Allowed / 2 along the line more accessible / System kitchen / Bathroom Dryer / LDK15 tatami mats or more / Japanese-style room / Washbasin with shower / Toilet 2 places / Bathroom 1 tsubo or more / 2-story / Underfloor Storage / TV monitor interphone / All room 6 tatami mats or more / Water filter 駐車2台可 /2沿線以上利用可 /システムキッチン /浴室乾燥機 /LDK15畳以上 /和室 /シャワー付洗面台 /トイレ2ヶ所 /浴室1坪以上 /2階建 /床下収納 /TVモニタ付インターホン /全居室6畳以上 /浄水器 | Price 価格 | | 27,800,000 yen 2780万円 | Floor plan 間取り | | 4LDK 4LDK | Units sold 販売戸数 | | 1 units 1戸 | Land area 土地面積 | | 111.61 sq m (registration) 111.61m2(登記) | Building area 建物面積 | | 99.36 sq m (registration) 99.36m2(登記) | Driveway burden-road 私道負担・道路 | | Nothing, West 4m width, North 4m width 無、西4m幅、北4m幅 | Completion date 完成時期(築年月) | | July 2013 2013年7月 | Address 住所 | | Kanagawa Prefecture Zushi swamp 4 神奈川県逗子市沼間4 | Traffic 交通 | | JR Yokosuka Line "Higashi Zushi" walk 17 minutes Keikyū Zushi Line "Jinmutera" walk 34 minutes Keikyū Main Line "Keikyu Taura" walk 29 minutes JR横須賀線「東逗子」歩17分 京急逗子線「神武寺」歩34分 京急本線「京急田浦」歩29分
| Contact お問い合せ先 | | TEL: 0800-603-0007 [Toll free] mobile phone ・ Also available from PHS Caller ID is not notified Please contact the "saw SUUMO (Sumo)" If it does not lead, If the real estate company TEL:0800-603-0007【通話料無料】携帯電話・PHSからもご利用いただけます 発信者番号は通知されません 「SUUMO(スーモ)を見た」と問い合わせください つながらない方、不動産会社の方は
| Building coverage, floor area ratio 建ぺい率・容積率 | | Fifty percent ・ Hundred percent 50%・100% | Time residents 入居時期 | | Consultation 相談 | Land of the right form 土地の権利形態 | | Ownership 所有権 | Structure and method of construction 構造・工法 | | Wooden 2-story 木造2階建 | Use district 用途地域 | | One low-rise 1種低層 | Overview and notices その他概要・特記事項 | | Facilities: Public Water Supply, This sewage, Building confirmation number: first H24SBC- sure 06061H No. 設備:公営水道、本下水、建築確認番号:第H24SBC-確06061H号 | Company profile 会社概要 | | <Mediation> Governor of Kanagawa Prefecture (10) Article 010799 No. Usui Home Co., Ltd. Zushi shop Yubinbango249-0006 Kanagawa Prefecture Zushi Zushi 4-1-2 <仲介>神奈川県知事(10)第010799号ウスイホーム(株)逗子店〒249-0006 神奈川県逗子市逗子4-1-2 |
Local appearance photo現地外観写真  Building completed. Please have a look once.
建物完成。是非一度ご覧下さい。
Kitchenキッチン  The company construction kitchen photo.
同社施工キッチン写真です。
Livingリビング  The company construction is living photo.
同社施工リビング写真です。
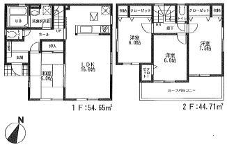
Floor plan間取り図  27,800,000 yen, 4LDK, Land area 111.61 sq m , All Shitsuminami facing 4LDK of building area 99.36 sq m floor area 30 square meters
2780万円、4LDK、土地面積111.61m2、建物面積99.36m2 建坪30坪の全室南向き4LDK
Bathroom浴室  The company is the construction bathroom photo.
同社施工浴室写真です。
 Local photos, including front road
前面道路含む現地写真
Otherその他  Swamp until the elementary school 1300m
沼間小学校まで1300m
 Swamp 1300m until junior high school
沼間中学校まで1300m
 Zushi Ikego 1800m to the post office
逗子池子郵便局まで1800m
Location
|