2014January
35,900,000 yen, 4LDK, 93.98 sq m
New Homes » Kanto » Kanagawa Prefecture » Zushi
 
| | Kanagawa Prefecture Zushi 神奈川県逗子市 |
| JR Yokosuka Line "Higashi Zushi" walk 14 minutes JR横須賀線「東逗子」歩14分 |
| Is the JR Yokosuka Line "Higashi Zushi" station flat walk 12 minutes and the convenience good newly built single-family houses. Site 33 square meters more than, Floor area is a building of 28 square meters more than 4LDK. Car space Thank 2 car. JR横須賀線「東逗子」駅平坦徒歩12分と利便性良好な新築戸建住宅です。敷地33坪超、建坪28坪超の4LDKの建物です。カースペース2台分ございます。 |
Features pickup 特徴ピックアップ | | Year Available / Parking two Allowed / 2 along the line more accessible / System kitchen / Bathroom Dryer / All room storage / LDK15 tatami mats or more / Japanese-style room / Washbasin with shower / Toilet 2 places / 2-story / Double-glazing / Warm water washing toilet seat / Underfloor Storage / TV monitor interphone / Dish washing dryer / Water filter 年内入居可 /駐車2台可 /2沿線以上利用可 /システムキッチン /浴室乾燥機 /全居室収納 /LDK15畳以上 /和室 /シャワー付洗面台 /トイレ2ヶ所 /2階建 /複層ガラス /温水洗浄便座 /床下収納 /TVモニタ付インターホン /食器洗乾燥機 /浄水器 | Price 価格 | | 35,900,000 yen 3590万円 | Floor plan 間取り | | 4LDK 4LDK | Units sold 販売戸数 | | 1 units 1戸 | Land area 土地面積 | | 111.08 sq m (registration) 111.08m2(登記) | Building area 建物面積 | | 93.98 sq m (registration) 93.98m2(登記) | Driveway burden-road 私道負担・道路 | | Nothing 無 | Completion date 完成時期(築年月) | | January 2014 2014年1月 | Address 住所 | | Kanagawa Prefecture Zushi Sakurayama 5 神奈川県逗子市桜山5 | Traffic 交通 | | JR Yokosuka Line "Higashi Zushi" walk 14 minutes Keikyū Zushi Line "Jinmutera" walk 20 minutes JR Yokosuka Line "Zushi" bus 5 minutes welfare hall entrance walk 3 minutes JR横須賀線「東逗子」歩14分 京急逗子線「神武寺」歩20分 JR横須賀線「逗子」バス5分福祉会館入口歩3分
| Contact お問い合せ先 | | TEL: 0800-603-0007 [Toll free] mobile phone ・ Also available from PHS Caller ID is not notified Please contact the "saw SUUMO (Sumo)" If it does not lead, If the real estate company TEL:0800-603-0007【通話料無料】携帯電話・PHSからもご利用いただけます 発信者番号は通知されません 「SUUMO(スーモ)を見た」と問い合わせください つながらない方、不動産会社の方は
| Building coverage, floor area ratio 建ぺい率・容積率 | | 80% ・ 200% 80%・200% | Time residents 入居時期 | | January 2014 2014年1月 | Land of the right form 土地の権利形態 | | Ownership 所有権 | Structure and method of construction 構造・工法 | | Wooden 2-story 木造2階建 | Use district 用途地域 | | Residential, One low-rise 近隣商業、1種低層 | Other limitations その他制限事項 | | Setback: upon 19.3 sq m セットバック:要19.3m2 | Overview and notices その他概要・特記事項 | | Facilities: Public Water Supply, This sewage, Building confirmation number: first H25SBC- Make 00400M No. 設備:公営水道、本下水、建築確認番号:第H25SBC-確00400M号 | Company profile 会社概要 | | <Mediation> Governor of Kanagawa Prefecture (10) Article 010799 No. Usui Home Co., Ltd. Zushi shop Yubinbango249-0006 Kanagawa Prefecture Zushi Zushi 4-1-2 <仲介>神奈川県知事(10)第010799号ウスイホーム(株)逗子店〒249-0006 神奈川県逗子市逗子4-1-2 |
Local appearance photo現地外観写真  It is a photograph of the company's enforcement.
同社施行の外観写真です。
Livingリビング  It is a living photograph of the company's construction.
同社施工のリビング写真です。
Kitchenキッチン  Kitchen photo of the company's construction.
同社施工のキッチン写真です。
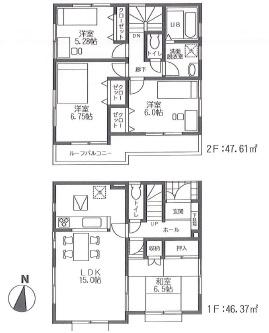
Floor plan間取り図  35,900,000 yen, 4LDK, Land area 111.08 sq m , It is a building area of 93.98 sq m easy-to-use 4LDK.
3590万円、4LDK、土地面積111.08m2、建物面積93.98m2 使い勝手の良い4LDKです。
Bathroom浴室  It is a bathroom photo of the company's construction.
同社施工の浴室写真です。
Location
|