New Homes » Kansai » Kyoto » Joyo


Joyo City, Kyoto Prefecture
Kintetsu Kyoto Line "Tonosho" walk 7 minutes
No. 1 ground floor plan can be changed! Imaike elementary school ・ Nishijoyo junior high school
Features pickup
Parking two Allowed / All room storage / 2-story / The window in the bathroom / All living room flooring / All-electric
Price
19.9 million yen
Floor plan
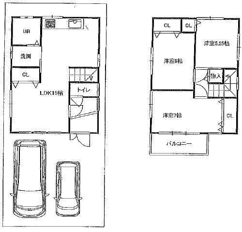
3LDK
Units sold
1 units
Land area
86.64 sq m (26.20 tsubo) (Registration)
Building area
76.95 sq m (23.27 tsubo) (Registration)
Driveway burden-road
2.09 sq m , East 3.6m width
Completion date
4 months after the contract
Address
Joyo City, Kyoto Prefecture Biwanosho Ohori
Traffic
Kintetsu Kyoto Line "Tonosho" walk 7 minutes
Contact
TEL: 0800-603-2828 [Toll free] mobile phone ・ Also available from PHS
Caller ID is not notified
Please contact the "saw SUUMO (Sumo)"
If it does not lead, If the real estate company
Building coverage, floor area ratio
60% ・ 200%
Time residents
4 months after the contract
Land of the right form
Ownership
Structure and method of construction
Wooden 2-story
Use district
One dwelling
Overview and notices
Facilities: Public Water Supply, This sewage, All-electric, Building confirmation number: No. H25 奈支 0056, Parking: car space
Company profile
<Mediation> Minister of Land, Infrastructure and Transport (8) No. 003251 No. Shikishima living Research Co., Ltd. Kyoto branch Yubinbango610-0121 Joyo City, Kyoto Prefecture Terada Toishiri 18-16


Floor plan

Floor plan. 19.9 million yen, 3LDK, Land area 86.64 sq m , Building area 76.95 sq m
19.9 million yen, 3LDK, Land area 86.64 sq m , Building area 76.95 sq m

Supermarket

Supermarket. Al ・ Until Plaza Joyo 2002m
Al ・ Until Plaza Joyo 2002m

Supermarket. Al ・ Until Plaza Kyotanabe 5283m
Al ・ Until Plaza Kyotanabe 5283m

Supermarket. 5432m until Super Yamada shop Kyotanabe shop
5432m until Super Yamada shop Kyotanabe shop

Police station ・ Police box

Police station ・ Police box. Chengyang 1806m to police station
Chengyang 1806m to police station

Station

station. Tonoshō Station
Tonoshō Station

Government office

Government office. Joyo City Hall
Joyo City Hall

Post office

post office. Joyo post office
Joyo post office

Other Environmental Photo

Other Environmental Photo. Culture Parc Joyo
Culture Parc Joyo



Location