|
|
Joyo City, Kyoto Prefecture
京都府城陽市
|
|
Kintetsu Kyoto Line "Terada" walk 6 minutes
近鉄京都線「寺田」歩6分
|
|
◆ Joyo Terada Imahori Newly built one detached ◆ Kintetsu "Terada" Station 6-minute walk
◆城陽市寺田今堀 新築一戸建◆近鉄「寺田」駅徒歩6分
|
|
Please feel free to contact us Hausudu! Fushimi shop / Co., Ltd. Takumi Kobo 0120-349-800 / Customers only toll-free
お気軽にお問い合わせ下さいハウスドゥ!伏見店/ 株式会社匠工房 0120-349-800 /お客様専用フリーダイヤル
|
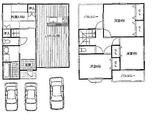
Features pickup 特徴ピックアップ | | System kitchen / All room storage / A quiet residential area / LDK15 tatami mats or more / Or more before road 6m / Japanese-style room / Face-to-face kitchen / Toilet 2 places / 2-story / 2 or more sides balcony / Leafy residential area / City gas / Attic storage システムキッチン /全居室収納 /閑静な住宅地 /LDK15畳以上 /前道6m以上 /和室 /対面式キッチン /トイレ2ヶ所 /2階建 /2面以上バルコニー /緑豊かな住宅地 /都市ガス /屋根裏収納 |
Price 価格 | | 28.8 million yen 2880万円 |
Floor plan 間取り | | 4LDK 4LDK |
Units sold 販売戸数 | | 1 units 1戸 |
Land area 土地面積 | | 101.73 sq m (30.77 square meters) 101.73m2(30.77坪) |
Building area 建物面積 | | 100.17 sq m (30.30 square meters) 100.17m2(30.30坪) |
Driveway burden-road 私道負担・道路 | | Nothing, East 11m width 無、東11m幅 |
Completion date 完成時期(築年月) | | July 2013 2013年7月 |
Address 住所 | | Joyo City, Kyoto Prefecture Imahori Terada 京都府城陽市寺田今堀 |
Traffic 交通 | | Kintetsu Kyoto Line "Terada" walk 6 minutes 近鉄京都線「寺田」歩6分
|
Related links 関連リンク | | [Related Sites of this company] 【この会社の関連サイト】 |
Contact お問い合せ先 | | Co., Ltd. Takumi Kobo Fushimi shop TEL: 0800-601-6272 [Toll free] mobile phone ・ Also available from PHS Caller ID is not notified Please contact the "saw SUUMO (Sumo)" If it does not lead, If the real estate company (株)匠工房伏見店TEL:0800-601-6272【通話料無料】携帯電話・PHSからもご利用いただけます 発信者番号は通知されません 「SUUMO(スーモ)を見た」と問い合わせください つながらない方、不動産会社の方は
|
Building coverage, floor area ratio 建ぺい率・容積率 | | 60% ・ Hundred percent 60%・100% |
Time residents 入居時期 | | Consultation 相談 |
Land of the right form 土地の権利形態 | | Ownership 所有権 |
Structure and method of construction 構造・工法 | | Wooden 2-story 木造2階建 |
Use district 用途地域 | | Two low-rise 2種低層 |
Other limitations その他制限事項 | | Height district, Additional 1 million yen (tap contributions, Exterior) 高度地区、別途100万円(水道負担金、外構) |
Overview and notices その他概要・特記事項 | | Facilities: Public Water Supply, This sewage, City gas, Parking: car space 設備:公営水道、本下水、都市ガス、駐車場:カースペース |
Company profile 会社概要 | | <Mediation> Minister of Land, Infrastructure and Transport (1) No. 008455 (Ltd.) Takumi Kobo Fushimi shop Yubinbango612-8354 Kyoto Fushimi-ku, Kyoto Nishimachi 389 <仲介>国土交通大臣(1)第008455号(株)匠工房伏見店〒612-8354 京都府京都市伏見区西町389 |