New Homes » Kansai » Kyoto » Kizugawa
 
| | Kyoto kizugawa 京都府木津川市 |
| JR Kansai Main Line "Kizu" walk 11 minutes JR関西本線「木津」歩11分 |
| [Es ・ by ・ Order residential land to build the El] To the station, To school, Close to smile. New city block to nurture happiness, birth! ! 【エス・バイ・エルと建てる注文住宅用地】駅に、学校に、笑顔に近い。しあわせを育む新街区、誕生!! |
| ■ Commute ・ Convenient to go to school! JR "Kizu" walk to the station 11 minutes. ■ Peace of mind to child-rearing! Nursery & Primary School 26 years opened schedule. ■通勤・通学に便利!JR「木津」駅まで徒歩11分。■子育てに安心!保育園&小学校 26年開校予定。 |
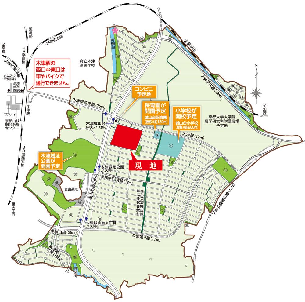
Local guide map 現地案内図 | | Local guide map 現地案内図 | Features pickup 特徴ピックアップ | | Land 50 square meters or more / See the mountain / It is close to Tennis Court / Around traffic fewer / Or more before road 6m / Good view / City gas / Maintained sidewalk / Development subdivision in / Readjustment land within 土地50坪以上 /山が見える /テニスコートが近い /周辺交通量少なめ /前道6m以上 /眺望良好 /都市ガス /整備された歩道 /開発分譲地内 /区画整理地内 | Event information イベント情報 | | Model house (Please be sure to ask in advance) schedule / During the public time / 10:00 ~ 17:00 model house, OPEN! ! Feel free to Not please drop. (Tuesday, Wednesday is a regular holiday) モデルハウス(事前に必ずお問い合わせください)日程/公開中時間/10:00 ~ 17:00モデルハウス、OPEN!!お気軽に お立ち寄り下さいませ。(火曜日、水曜日は定休日です) | Property name 物件名 | | [Yamada ・ Esubaieru Home] Across Square Kizu center Shiroyamadai [Order residential land] 【ヤマダ・エスバイエルホーム】アクロススクエア 木津中央城山台【注文住宅用地】 | Price 価格 | | 11,660,000 yen ~ 15,280,000 yen 1166万円 ~ 1528万円 | Building coverage, floor area ratio 建ぺい率・容積率 | | Kenpei rate: 50%, Volume ratio: 80% ( ※ Corner lot ・ Lots of double-sided road 10% Building coverage will be relaxed. ) 建ペい率:50%、容積率:80%(※角地・両面道路の宅地は10% 建ぺい率が緩和されます。) | Sales compartment 販売区画数 | | 17 compartment 17区画 | Total number of compartments 総区画数 | | 51 compartment 51区画 | Land area 土地面積 | | 170.5 sq m ~ 188.19 sq m (measured) 170.5m2 ~ 188.19m2(実測) | Driveway burden-road 私道負担・道路 | | Road width: 6m, 8m, Asphaltic pavement 道路幅:6m、8m、アスファルト舗装 | Land situation 土地状況 | | Vacant lot 更地 | Construction completion time 造成完了時期 | | 2014 end of April 平成26年4月末日 | Address 住所 | | Kyoto kizugawa Shiroyamadai 京都府木津川市城山台 | Traffic 交通 | | JR Kansai Main Line "Kizu" walk 11 minutes JR関西本線「木津」歩11分
| Related links 関連リンク | | [Related Sites of this company] 【この会社の関連サイト】 | Contact お問い合せ先 | | (Ltd.) Yamada ・ Esubaieru Home Nara branch Tomigaoka exhibition hall TEL: 0800-809-8709 [Toll free] mobile phone ・ Also available from PHS Caller ID is not notified Please contact the "saw SUUMO (Sumo)" If it does not lead, If the real estate company (株)ヤマダ・エスバイエルホーム奈良支店 登美ヶ丘展示場TEL:0800-809-8709【通話料無料】携帯電話・PHSからもご利用いただけます 発信者番号は通知されません 「SUUMO(スーモ)を見た」と問い合わせください つながらない方、不動産会社の方は
| Most price range 最多価格帯 | | 14 million yen (5 compartment) 1400万円台(5区画) | Expenses 諸費用 | | ※ Water admission fee / 199,500 yen (20 Miri, tax included ※ 2013), ※水道加入金/199500円 (20ミリ、税込 ※平成25年)、 | Land of the right form 土地の権利形態 | | Ownership 所有権 | Building condition 建築条件 | | With 付 | Time delivery 引き渡し時期 | | Consultation 相談 | Land category 地目 | | Residential land 宅地 | Use district 用途地域 | | One low-rise 1種低層 | Other limitations その他制限事項 | | Height district, Setback Yes, Building Agreement Yes, Setback distance 1.0 or more 高度地区、壁面後退有、建築協定有、壁面後退距離1.0以上 | Overview and notices その他概要・特記事項 | | Facilities: Public Water Supply This sewage, City gas 設備:公営水道 本下水、都市ガス | Company profile 会社概要 | | <Seller> Minister of Land, Infrastructure and Transport (14) No. 000382 (Ltd.) Yamada ・ Esubaieru Home Nara branch Tomigaoka exhibition hall Yubinbango630-8115 Nara, Nara Prefecture Omiya-cho 6-3-3 Fuji fire Nara building the fourth floor <売主>国土交通大臣(14)第000382号(株)ヤマダ・エスバイエルホーム奈良支店 登美ヶ丘展示場〒630-8115 奈良県奈良市大宮町6-3-3 富士火災奈良ビル4階 |
Local guide map現地案内図  Across Square Kizu center Shiroyamadai
アクロススクエア 木津中央城山台
Local photos, including front road前面道路含む現地写真  2013 November 23, shooting
平成25年11月23日撮影
Exhibition hall / Showroom展示場/ショウルーム  Glad to dad, The bedroom next to the study space. By separating a piece of wall, Privacy can also ensure. (Tomigaoka Nara Exhibition Center)
お父さんには嬉しい、寝室横の書斎スペース。壁を一枚隔てることで、プライバシーも確保できる。(奈良登美ヶ丘展示場)
![exhibition hall / Showroom. [Tomigaoka exhibition hall] One step depressed living space. Also good to sit on the step, It seems to Japanese, Image of a life that was dropped the eyes.](/images/kyoto/kizugawa/53cdfc0025.jpg) [Tomigaoka exhibition hall] One step depressed living space. Also good to sit on the step, It seems to Japanese, Image of a life that was dropped the eyes.
【登美ヶ丘展示場】一段押し下げたリビングスペース。段差に腰掛けるのも良し、日本人らしい、目線を落とした暮らしをイメージ。
Building plan example (exterior photos)建物プラン例(外観写真)  2013 November 23, shooting
平成25年11月23日撮影
Exhibition hall / Showroom展示場/ショウルーム  New O St. series. Garden of arrangement Please leave. (Tomigaoka Nara Exhibition Center)
ニューオーセントシリーズ。庭のアレンジもお任せください。(奈良登美ヶ丘展示場)
Local land photo現地土地写真  2013 November 23, shooting
平成25年11月23日撮影
Exhibition hall / Showroom展示場/ショウルーム  Breakfast to celebrate in such a wonderful dining kitchen, Worthy of the place to tell the beginning of a wonderful day of family. (Tomigaoka Nara Exhibition Center)
こんな素敵なダイニングキッチンで迎える朝食は、家族の素敵な一日の始まりを告げる場所にふさわしい。(奈良登美ヶ丘展示場)
 Large-capacity storage is also tightly designed bedroom (Tomigaoka Nara Exhibition Center)
大容量収納もきっちりと設計された寝室(奈良登美ヶ丘展示場)
![exhibition hall / Showroom. [Tomigaoka exhibition hall ・ Japanese-style room] Without the fluorescent lamp, By using the cornice lighting, And directs warm atmosphere.](/images/kyoto/kizugawa/53cdfc0021.jpg) [Tomigaoka exhibition hall ・ Japanese-style room] Without the fluorescent lamp, By using the cornice lighting, And directs warm atmosphere.
【登美ヶ丘展示場・和室】蛍光灯は使わず、コーニス照明を用いることで、暖かな雰囲気を演出している。
 Bedroom back of the study. (Tomigaoka Nara Exhibition Center)
寝室奥の書斎。(奈良登美ヶ丘展示場)
 Bedroom that can wake up in the bright sunshine. (Tomigaoka Nara Exhibition Center)
明るい日差しで目覚めることができる寝室。(奈良登美ヶ丘展示場)
 (Tomigaoka Nara Exhibition Center)
(奈良登美ヶ丘展示場)
 Access view
交通アクセス図
Route map路線図  JR "Kizu" about 44 minutes from the station to the JR "Tennoji" station, JR "Kyoto" about 41 minutes to the station! !
JR「木津」駅よりJR「天王寺」駅へ約44分、JR「京都」駅へ約41分!!
Exhibition hall / Showroom展示場/ショウルーム  Es ・ by ・ "Modern Japanese" El (Tomigaoka Nara Exhibition Center)
エス・バイ・エルの「和モダン」(奈良登美ヶ丘展示場)
Otherその他  next year Is a floor plan of the model house scheduled for completion. (Price is undecided)
来年 完成予定のモデルハウスの間取り図です。(価格は未定です)
 The entire compartment Figure
全体区画図
Station駅  Nimble footwork of 880m walk 11 minutes to JR Kizu Station! !
JR木津駅まで880m 徒歩11分の軽快フットワーク!!
Government office役所  Kizu 1250m to city hall
木津川市役所まで1250m
Location
|