|
|
Kyoto, Kyoto Prefecture Fushimi-ku,
京都府京都市伏見区
|
|
Keihan "Fukakusa" walk 9 minutes
京阪本線「深草」歩9分
|
|
Parking two Allowed, 2 along the line more accessible, System kitchen, Bathroom Dryer, Yang per good, All room storage, A quiet residential area, Mist sauna, Face-to-face kitchen, Bathroom 1 tsubo or more,
駐車2台可、2沿線以上利用可、システムキッチン、浴室乾燥機、陽当り良好、全居室収納、閑静な住宅地、ミストサウナ、対面式キッチン、浴室1坪以上、
|
|
Natural materials housing! Parking three Allowed! Two-sided balcony! Yes garden!
自然素材住宅! 駐車3台可! 2面バルコニー! 庭あり!
|
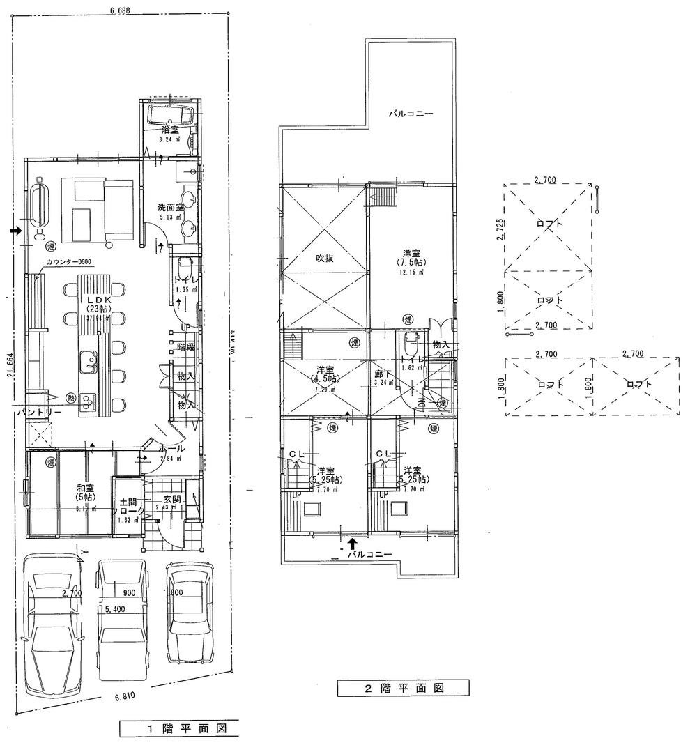
Features pickup 特徴ピックアップ | | Parking three or more possible / 2 along the line more accessible / LDK20 tatami mats or more / It is close to the city / System kitchen / Bathroom Dryer / Yang per good / All room storage / A quiet residential area / Japanese-style room / Mist sauna / garden / Face-to-face kitchen / Wide balcony / Toilet 2 places / Natural materials / Bathroom 1 tsubo or more / 2-story / 2 or more sides balcony / Double-glazing / Warm water washing toilet seat / loft / The window in the bathroom / Atrium / TV monitor interphone / Ventilation good / Dish washing dryer / City gas / Floor heating 駐車3台以上可 /2沿線以上利用可 /LDK20畳以上 /市街地が近い /システムキッチン /浴室乾燥機 /陽当り良好 /全居室収納 /閑静な住宅地 /和室 /ミストサウナ /庭 /対面式キッチン /ワイドバルコニー /トイレ2ヶ所 /自然素材 /浴室1坪以上 /2階建 /2面以上バルコニー /複層ガラス /温水洗浄便座 /ロフト /浴室に窓 /吹抜け /TVモニタ付インターホン /通風良好 /食器洗乾燥機 /都市ガス /床暖房 |
Price 価格 | | 43,800,000 yen 4380万円 |
Floor plan 間取り | | 5LDK 5LDK |
Units sold 販売戸数 | | 1 units 1戸 |
Total units 総戸数 | | 3 units 3戸 |
Land area 土地面積 | | 140.71 sq m (42.56 square meters) 140.71m2(42.56坪) |
Building area 建物面積 | | 111.78 sq m (33.81 square meters) 111.78m2(33.81坪) |
Driveway burden-road 私道負担・道路 | | Road width: 4.9m, Concrete pavement 道路幅:4.9m、コンクリート舗装 |
Completion date 完成時期(築年月) | | February 2014 schedule 2014年2月予定 |
Address 住所 | | Kyoto Fushimi-ku, Kyoto Fukakusahotojiyama cho 京都府京都市伏見区深草宝塔寺山町 |
Traffic 交通 | | Keihan "Fukakusa" walk 9 minutes JR Nara Line "Inari" walk 11 minutes Keihan "Fujimori" walk 13 minutes 京阪本線「深草」歩9分 JR奈良線「稲荷」歩11分 京阪本線「藤森」歩13分
|
Contact お問い合せ先 | | (Ltd.) affix home sales TEL: 0120-269200 [Toll free] Please contact the "saw SUUMO (Sumo)" (株)アフィックス住宅販売TEL:0120-269200【通話料無料】「SUUMO(スーモ)を見た」と問い合わせください |
Building coverage, floor area ratio 建ぺい率・容積率 | | Kenpei rate: 50%, Volume ratio: 80% 建ペい率:50%、容積率:80% |
Land of the right form 土地の権利形態 | | Ownership 所有権 |
Structure and method of construction 構造・工法 | | Wooden 2-story 木造2階建 |
Use district 用途地域 | | One low-rise 1種低層 |
Overview and notices その他概要・特記事項 | | Building confirmation number: 00756 建築確認番号:00756 |
Company profile 会社概要 | | <Mediation> Governor of Kyoto Prefecture (3) No. 011637 (Ltd.) affix home sales Yubinbango612-0889 Kyoto Fushimi-ku, Kyoto Fukakusasujikaibashi 3-398 <仲介>京都府知事(3)第011637号(株)アフィックス住宅販売〒612-0889 京都府京都市伏見区深草直違橋3-398 |