New Homes » Kansai » Kyoto » Fushimi-ku
 
| | Kyoto, Kyoto Prefecture Fushimi-ku, 京都府京都市伏見区 |
| Kintetsu Kyoto Line "Mukojima" walk 8 minutes 近鉄京都線「向島」歩8分 |
| Kintetsu "Mukojima" Station 8-minute walk, Mukojima south Elementary School 7-minute walk of the property. South road 6m ・ Kitadoro 6m ・ We also vacant four-way per monthly parking currently east side adjacent land in a three-way road of west road 7.7m. 近鉄「向島」駅徒歩8分、向島南小学校徒歩7分の物件です。南道路6m・北道路6m・西道路7.7mの3方道路で現在東側隣地も月極駐車場につき4方空いております。 |
| Super well-equipped area of the compartment ・ convenience store ・ Drugstore, etc. is convenient locations in about 10 minutes away. Once please refer to the property. It is a property that a good place not in the other is seen. Double-sided road ・ The second floor because the building coverage can be used 70% per corner lot ・ Floor plan will be taken in the third floor. (If what you're looking for is property in stores mortgage) plan is also the second floor ・ The third floor equipped therefore do not hesitate to contact us. 区画の整った地域でスーパー・コンビニ・ドラッグストア等が約10分圏内にある便利地です。一度物件をご覧下さい。他に無い良い所が見れる物件です。両面道路・角地につき建ぺい率が70%使えるので2階・3階でも間取りがとれます。(店舗付住宅でももってこいの物件です)プランも2階・3階ありますので気軽にご相談下さい。 |
Features pickup 特徴ピックアップ | | 2 along the line more accessible / Yang per good / Siemens south road / A quiet residential area / Or more before road 6m / Corner lot / Shaping land / City gas / Flat terrain / Building plan example there 2沿線以上利用可 /陽当り良好 /南側道路面す /閑静な住宅地 /前道6m以上 /角地 /整形地 /都市ガス /平坦地 /建物プラン例有り | Price 価格 | | 10,240,000 yen 1024万円 | Building coverage, floor area ratio 建ぺい率・容積率 | | 70% ・ 200% 70%・200% | Sales compartment 販売区画数 | | 1 compartment 1区画 | Total number of compartments 総区画数 | | 1 compartment 1区画 | Land area 土地面積 | | 67.73 sq m (registration) 67.73m2(登記) | Driveway burden-road 私道負担・道路 | | Nothing, South 6m width (contact the road width 6.5m), North 6m width (contact the road width 6.5m), West 7.7m width (contact the road width 10.6m) 無、南6m幅(接道幅6.5m)、北6m幅(接道幅6.5m)、西7.7m幅(接道幅10.6m) | Land situation 土地状況 | | Vacant lot 更地 | Address 住所 | | Kyoto Fushimi-ku, Kyoto Mukaijimatsuda cho 京都府京都市伏見区向島津田町 | Traffic 交通 | | Kintetsu Kyoto Line "Mukojima" walk 8 minutes Keihan "Chushojima" walk 13 minutes Keihan Uji Line "around Kangetsukyo" walk 13 minutes 近鉄京都線「向島」歩8分 京阪本線「中書島」歩13分 京阪宇治線「観月橋」歩13分
| Contact お問い合せ先 | | Nijo Construction (Ltd.) TEL: 0800-603-9089 [Toll free] mobile phone ・ Also available from PHS Caller ID is not notified Please contact the "saw SUUMO (Sumo)" If it does not lead, If the real estate company 二条建設(株)TEL:0800-603-9089【通話料無料】携帯電話・PHSからもご利用いただけます 発信者番号は通知されません 「SUUMO(スーモ)を見た」と問い合わせください つながらない方、不動産会社の方は
| Land of the right form 土地の権利形態 | | Ownership 所有権 | Building condition 建築条件 | | With 付 | Time delivery 引き渡し時期 | | Consultation 相談 | Land category 地目 | | Residential land 宅地 | Use district 用途地域 | | One dwelling 1種住居 | Other limitations その他制限事項 | | Regulations have by the Landscape Act 景観法による規制有 | Overview and notices その他概要・特記事項 | | Facilities: Public Water Supply, This sewage, City gas 設備:公営水道、本下水、都市ガス | Company profile 会社概要 | | <Seller> Governor of Kyoto Prefecture (1) the first 012,512 No. Article Construction (Ltd.) Yubinbango605-0925 Kyoto Higashiyama-ku, Kyoto Imagumanohiyoshi cho 14-5 <売主>京都府知事(1)第012512号二条建設(株)〒605-0925 京都府京都市東山区今熊野日吉町14-5 |
Local land photo現地土地写真  Photos from the south Local (September 2013) Shooting
南からの写真 現地(2013年9月)撮影
Compartment figure区画図  Land price 10,240,000 yen, It will be built on the south-facing front door in the land area 67.73 sq m 3-way road.
土地価格1024万円、土地面積67.73m2 3方道路で南向き玄関で建てられます。
Local photos, including front road前面道路含む現地写真  South road Local (September 2013) Shooting
南側道路 現地(2013年9月)撮影
Local land photo現地土地写真  Photos from the north Local (September 2013) Shooting
北からの写真 現地(2013年9月)撮影
Local photos, including front road前面道路含む現地写真  North road Local (September 2013) Shooting
北側道路 現地(2013年9月)撮影
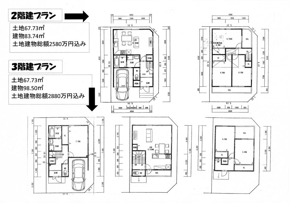
Building plan example (floor plan)建物プラン例(間取り図)  Building plan second floor price 25,800,000 yen 83.74 sq m
建物プラン2階価格2580万円83.74m2
Station駅  Kintetsu 640m to "Mukojima" station
近鉄「向島」駅まで640m
Local photos, including front road前面道路含む現地写真  West road Local (September 2013) Shooting
西側道路 現地(2013年9月)撮影
Supermarketスーパー  Until fresco Mukojima shop 1021m
フレスコ向島店まで1021m
Convenience storeコンビニ  363m to Seven-Eleven Fushimi Mukaijimatsuda the town shop
セブンイレブン伏見向島津田町店まで363m
Primary school小学校  670m to Kyoto Municipal Mukojima Minami Elementary School
京都市立向島南小学校まで670m
Location
|