|
|
Kyoto Prefecture Muko
京都府向日市
|
|
Hankyu Kyoto Line "Nishimuko" walk 7 minutes
阪急京都線「西向日」歩7分
|
|
Corner lot! Hankyu Nishi-Mukō Station walk about 7 minutes ・ Muko-cho shopping center walk about 5 minutes!
角地!阪急西向日駅徒歩約7分・向日町ショッピングセンター徒歩約5分!
|
|
Commute ・ Convenience of the school well, It is very convenient location to shopping everyday. It is a quiet residential area in the first kind low-rise exclusive residential area!
通勤・通学の利便性良く、日常のお買い物にも大変便利な立地です。第1種低層住居専用地域で閑静な住宅地です!
|
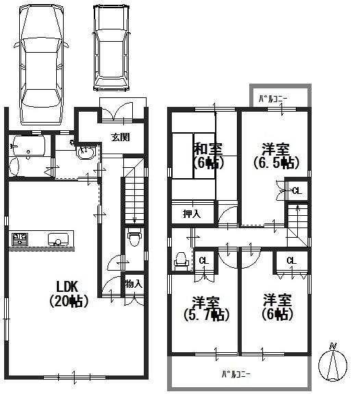
Features pickup 特徴ピックアップ | | Parking two Allowed / Super close / System kitchen / Bathroom Dryer / All room storage / Flat to the station / A quiet residential area / LDK15 tatami mats or more / Around traffic fewer / Corner lot / Japanese-style room / Shaping land / Face-to-face kitchen / Bathroom 1 tsubo or more / 2-story / The window in the bathroom / TV monitor interphone / City gas / A large gap between the neighboring house 駐車2台可 /スーパーが近い /システムキッチン /浴室乾燥機 /全居室収納 /駅まで平坦 /閑静な住宅地 /LDK15畳以上 /周辺交通量少なめ /角地 /和室 /整形地 /対面式キッチン /浴室1坪以上 /2階建 /浴室に窓 /TVモニタ付インターホン /都市ガス /隣家との間隔が大きい |
Price 価格 | | 39,130,000 yen 3913万円 |
Floor plan 間取り | | 4LDK 4LDK |
Units sold 販売戸数 | | 1 units 1戸 |
Total units 総戸数 | | 3 units 3戸 |
Land area 土地面積 | | 101.48 sq m (measured) 101.48m2(実測) |
Building area 建物面積 | | 93.55 sq m 93.55m2 |
Driveway burden-road 私道負担・道路 | | Nothing, North 5m width (contact the road width 7m), West 2m width (contact the road width 16.5m) 無、北5m幅(接道幅7m)、西2m幅(接道幅16.5m) |
Completion date 完成時期(築年月) | | 4 months after the contract 契約後4ヶ月 |
Address 住所 | | Aranai Kyoto Muko Kaide-cho 京都府向日市鶏冠井町荒内 |
Traffic 交通 | | Hankyu Kyoto Line "Nishimuko" walk 7 minutes Hankyu Kyoto Line "Higashimuko" walk 18 minutes JR Tokaido Line "Muko town" walk 20 minutes 阪急京都線「西向日」歩7分 阪急京都線「東向日」歩18分 JR東海道本線「向日町」歩20分
|
Related links 関連リンク | | [Related Sites of this company] 【この会社の関連サイト】 |
Person in charge 担当者より | | Person in charge of real-estate and building Takada Takashi Age: 40 Daigyokai experience: according to the lifestyle of 15 years your family, By we are allowed to help your house hunting, Family has reunion As you think that "It was good to purchase the My Home", We try to feel free to Tachiyoreru store development and fresh information. 担当者宅建高田 隆史年齢:40代業界経験:15年ご家族のライフスタイルに応じた、お家探しのお手伝いをさせていただく事で、家族が団らんし『マイホームを購入して良かった』と思っていただけるよう、新鮮な情報と気軽に立ち寄れる店づくりを心掛けています。 |
Contact お問い合せ先 | | TEL: 0800-808-7297 [Toll free] mobile phone ・ Also available from PHS Caller ID is not notified Please contact the "saw SUUMO (Sumo)" If it does not lead, If the real estate company TEL:0800-808-7297【通話料無料】携帯電話・PHSからもご利用いただけます 発信者番号は通知されません 「SUUMO(スーモ)を見た」と問い合わせください つながらない方、不動産会社の方は
|
Building coverage, floor area ratio 建ぺい率・容積率 | | 60% ・ Hundred percent 60%・100% |
Time residents 入居時期 | | 4 months after the contract 契約後4ヶ月 |
Land of the right form 土地の権利形態 | | Ownership 所有権 |
Structure and method of construction 構造・工法 | | Wooden 2-story 木造2階建 |
Use district 用途地域 | | One low-rise 1種低層 |
Overview and notices その他概要・特記事項 | | Contact: Takada Takashi, Facilities: Public Water Supply, This sewage, City gas, Building confirmation number: No. H230823, Parking: car space 担当者:高田 隆史、設備:公営水道、本下水、都市ガス、建築確認番号:第H230823号、駐車場:カースペース |
Company profile 会社概要 | | <Mediation> Governor of Kyoto Prefecture (1) No. 013109 (Ltd.) Life ・ Stage Yubinbango617-0002 Kyoto Muko Terato cho Tatsumi 22-1 <仲介>京都府知事(1)第013109号(株)ライフ・ステージ〒617-0002 京都府向日市寺戸町辰巳22-1 |