New Homes » Kansai » Kyoto » Uji
 
| | Kyoto Uji 京都府宇治市 |
| JR Nara Line "Obaku" walk 38 minutes JR奈良線「黄檗」歩38分 |
| All 10 compartments in a quiet residential area! Since the natural rich place, You can enjoy calm life is ☆ It is fields and home gardens may also be in the spacious garden 閑静な住宅地に全10区画!自然豊かな場所なので、落ち着いた暮らしが楽しめます☆広々としたお庭で畑や家庭菜園も良いですね |
| Plan can be changed if now! Your favorite specification ・ It is possible architecture at the floor plan. My home was thought from one yourself, Joy is also Hitoshio ☆ Kasatori second elementary school ・ Kobata junior high school 今ならプラン変更可能!お客様のお好きな仕様・間取りで建築可能です。ご自分で一から思案したマイホームは、喜びもひとしおですよ☆笠取第二小学校・木幡中学校 |
Features pickup 特徴ピックアップ | | Parking three or more possible / Land 50 square meters or more / See the mountain / It is close to Tennis Court / System kitchen / A quiet residential area / Around traffic fewer / Or more before road 6m / Japanese-style room / Face-to-face kitchen / Bathroom 1 tsubo or more / 2-story / The window in the bathroom / All living room flooring / All rooms are two-sided lighting / Located on a hill 駐車3台以上可 /土地50坪以上 /山が見える /テニスコートが近い /システムキッチン /閑静な住宅地 /周辺交通量少なめ /前道6m以上 /和室 /対面式キッチン /浴室1坪以上 /2階建 /浴室に窓 /全居室フローリング /全室2面採光 /高台に立地 | Price 価格 | | 19,800,000 yen 1980万円 | Floor plan 間取り | | 4LDK 4LDK | Units sold 販売戸数 | | 1 units 1戸 | Total units 総戸数 | | 10 units 10戸 | Land area 土地面積 | | 232.01 sq m (70.18 tsubo) (Registration) 232.01m2(70.18坪)(登記) | Building area 建物面積 | | 88.58 sq m (26.79 tsubo) (Registration) 88.58m2(26.79坪)(登記) | Driveway burden-road 私道負担・道路 | | Nothing, East 6m width 無、東6m幅 | Completion date 完成時期(築年月) | | February 2014 2014年2月 | Address 住所 | | Kyoto Uji Tanzandonomoto 京都府宇治市炭山堂ノ元 | Traffic 交通 | | JR Nara Line "Obaku" walk 38 minutes JR奈良線「黄檗」歩38分
| Related links 関連リンク | | [Related Sites of this company] 【この会社の関連サイト】 | Person in charge 担当者より | | Personnel Nakamura Age: 30 Daigyokai experience: a four-year university Ryukoku University since, Are much continue to live in Kyoto from birth, Kyoto addict! That the house, From the peripheral, To that of the mortgage and taxes, Quick ・ The motto polite, We support the looking listing best! 担当者中村 年齢:30代業界経験:4年大学も龍谷大学ですので、生まれてからずっと京都に住み続けている、京都大好き人間です!家のこと、周辺のことから、住宅ローンや税金のことまで、迅速・丁寧をモットーに、全力で物件探しをサポートいたします! | Contact お問い合せ先 | | TEL: 0800-808-7262 [Toll free] mobile phone ・ Also available from PHS Caller ID is not notified Please contact the "saw SUUMO (Sumo)" If it does not lead, If the real estate company TEL:0800-808-7262【通話料無料】携帯電話・PHSからもご利用いただけます 発信者番号は通知されません 「SUUMO(スーモ)を見た」と問い合わせください つながらない方、不動産会社の方は
| Building coverage, floor area ratio 建ぺい率・容積率 | | 60% ・ 200% 60%・200% | Time residents 入居時期 | | Consultation 相談 | Land of the right form 土地の権利形態 | | Ownership 所有権 | Structure and method of construction 構造・工法 | | Wooden 2-story 木造2階建 | Use district 用途地域 | | City planning area outside 都市計画区域外 | Overview and notices その他概要・特記事項 | | Contact: Nakamura , Facilities: Public Water Supply, Building confirmation number: 625630, Parking: car space 担当者:中村 、設備:公営水道、建築確認番号:625630、駐車場:カースペース | Company profile 会社概要 | | <Mediation> Governor of Kyoto Prefecture (1) No. 012993 (Ltd.) House project Yubinbango612-8012 Kyoto Fushimi-ku, Kyoto Momoyamachotoyama 69 <仲介>京都府知事(1)第012993号(株)ハウスプロジェクト〒612-8012 京都府京都市伏見区桃山町遠山69 |
 Rendering (appearance)
完成予想図(外観)
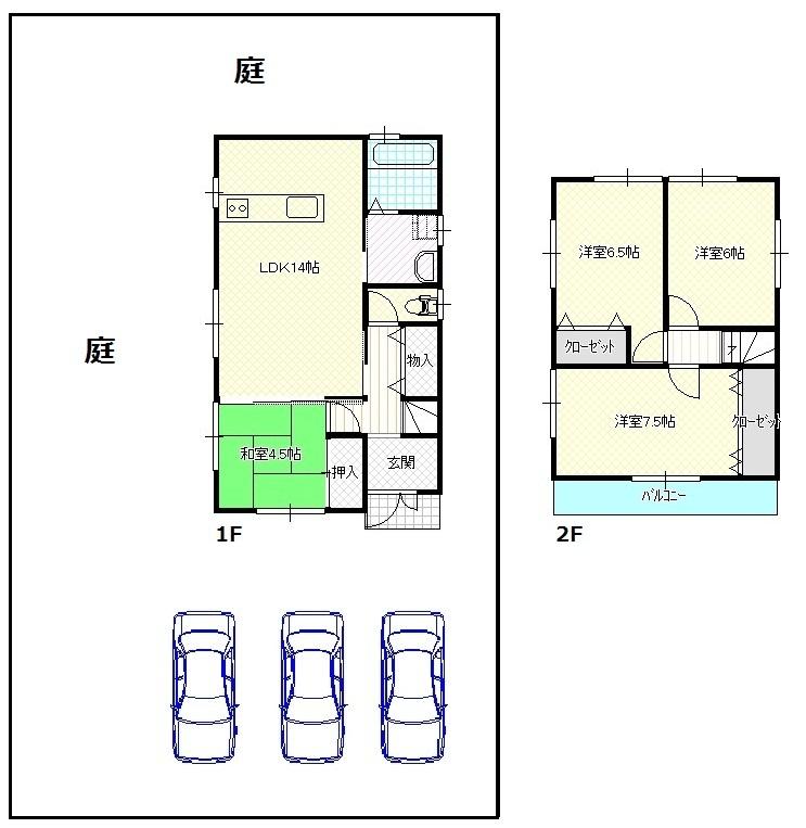
Floor plan間取り図  19,800,000 yen, 4LDK, Land area 232.01 sq m , Building area 88.58 sq m plan example
1980万円、4LDK、土地面積232.01m2、建物面積88.58m2 プラン例
Same specifications photos (Other introspection)同仕様写真(その他内観)  living Same type other properties
リビング 同一タイプ他物件
Local appearance photo現地外観写真  No. 3 place
3号地
 Local photos, including front road
前面道路含む現地写真
Same specifications photos (Other introspection)同仕様写真(その他内観)  kitchen Same type other properties
キッチン 同一タイプ他物件
 Wash Same type other properties
洗面 同一タイプ他物件
 bus Same type other properties
バス 同一タイプ他物件
 toilet Same type other properties
トイレ 同一タイプ他物件
 Western style room Same type other properties
洋室 同一タイプ他物件
 Entrance Same type other properties
玄関 同一タイプ他物件
Local appearance photo現地外観写真  local
現地
 Compartment figure
区画図
Junior high school中学校  Uji Municipal Kobata until junior high school 3600m
宇治市立木幡中学校まで3600m
Supermarketスーパー  Friends Mart 3742m to Mikura mountain shop
フレンドマート 御蔵山店まで3742m
Convenience storeコンビニ  Seven-Eleven 4427m to Kyoto Hinonishifuro Machiten
セブンイレブン 京都日野西風呂町店まで4427m
Bank銀行  Kyoto Chuo Shinkin Bank Obaku 5759m to the branch
京都中央信用金庫 黄檗支店まで5759m
Primary school小学校  Uji Municipal Kasatori 640m until the second elementary school
宇治市立笠取第二小学校まで640m
Location
|