32,800,000 yen, 3DK, 93.96 sq m
New Homes » Kansai » Kyoto » Uji
 
| | Kyoto Uji 京都府宇治市 |
| JR Nara Line "Obaku" walk 4 minutes JR奈良線「黄檗」歩4分 |
| Ogaya elementary school ・ East Uji Junior High School 岡屋小学校・東宇治中学校 |
Features pickup 特徴ピックアップ | | Parking two Allowed / Face-to-face kitchen / 2-story / The window in the bathroom / All living room flooring / City gas 駐車2台可 /対面式キッチン /2階建 /浴室に窓 /全居室フローリング /都市ガス | Price 価格 | | 32,800,000 yen 3280万円 | Floor plan 間取り | | 3DK 3DK | Units sold 販売戸数 | | 1 units 1戸 | Land area 土地面積 | | 112.13 sq m (33.91 tsubo) (Registration) 112.13m2(33.91坪)(登記) | Building area 建物面積 | | 93.96 sq m (28.42 tsubo) (Registration) 93.96m2(28.42坪)(登記) | Driveway burden-road 私道負担・道路 | | Nothing, West 4.8m width 無、西4.8m幅 | Completion date 完成時期(築年月) | | 4 months after the contract 契約後4ヶ月 | Address 住所 | | Kyoto Uji Gokasho Shinkai 京都府宇治市五ケ庄新開 | Traffic 交通 | | JR Nara Line "Obaku" walk 4 minutes JR奈良線「黄檗」歩4分
| Contact お問い合せ先 | | TEL: 0800-603-2828 [Toll free] mobile phone ・ Also available from PHS Caller ID is not notified Please contact the "saw SUUMO (Sumo)" If it does not lead, If the real estate company TEL:0800-603-2828【通話料無料】携帯電話・PHSからもご利用いただけます 発信者番号は通知されません 「SUUMO(スーモ)を見た」と問い合わせください つながらない方、不動産会社の方は
| Building coverage, floor area ratio 建ぺい率・容積率 | | 60% ・ 200% 60%・200% | Time residents 入居時期 | | 4 months after the contract 契約後4ヶ月 | Land of the right form 土地の権利形態 | | Ownership 所有権 | Structure and method of construction 構造・工法 | | Wooden 2-story 木造2階建 | Use district 用途地域 | | One dwelling 1種住居 | Overview and notices その他概要・特記事項 | | Facilities: Public Water Supply, This sewage, City gas, Building confirmation number: No. H25 奈支 0058, Parking: car space 設備:公営水道、本下水、都市ガス、建築確認番号:第H25奈支0058、駐車場:カースペース | Company profile 会社概要 | | <Mediation> Minister of Land, Infrastructure and Transport (8) No. 003251 No. Shikishima living Research Co., Ltd. Kyoto branch Yubinbango610-0121 Joyo City, Kyoto Prefecture Terada Toishiri 18-16 <仲介>国土交通大臣(8)第003251号敷島住研(株)京都支店〒610-0121 京都府城陽市寺田樋尻18-16 |
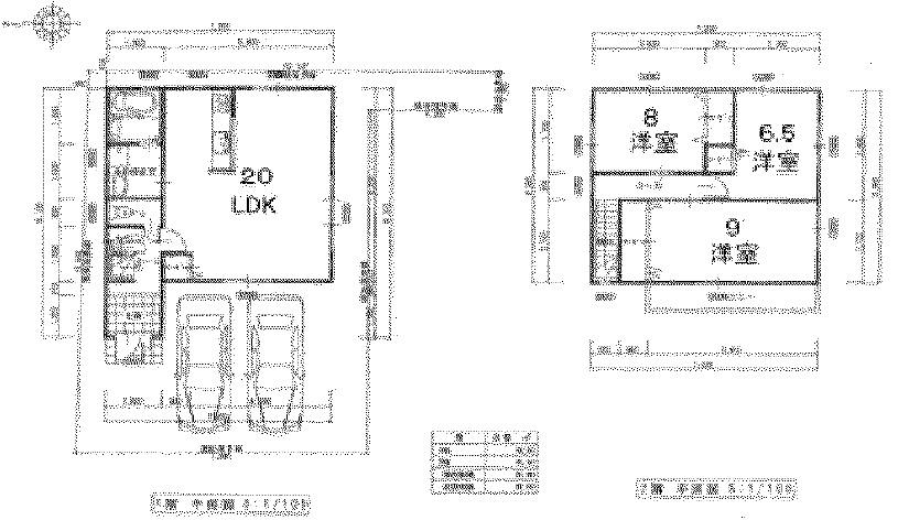
Floor plan間取り図  32,800,000 yen, 3DK, Land area 112.13 sq m , Building area 93.96 sq m
3280万円、3DK、土地面積112.13m2、建物面積93.96m2
Government office役所  Uji City Hall
宇治市役所
Police station ・ Police box警察署・交番  Uji police station
宇治警察署
Post office郵便局  Uji post office
宇治郵便局
Other Environmental Photoその他環境写真  Taiyogaoka
太陽が丘
Location
|