New Homes » Kansai » Kyoto » Uji
 
| | Kyoto Uji 京都府宇治市 |
| JR Nara Line "Nitta" walk 13 minutes JR奈良線「新田」歩13分 |
Features pickup 特徴ピックアップ | | Parking two Allowed / System kitchen / Bathroom Dryer / LDK15 tatami mats or more / Or more before road 6m / Corner lot / Japanese-style room / Shaping land / Washbasin with shower / Face-to-face kitchen / Bathroom 1 tsubo or more / 2-story / South balcony / Warm water washing toilet seat / The window in the bathroom / Dish washing dryer / Water filter / All rooms are two-sided lighting 駐車2台可 /システムキッチン /浴室乾燥機 /LDK15畳以上 /前道6m以上 /角地 /和室 /整形地 /シャワー付洗面台 /対面式キッチン /浴室1坪以上 /2階建 /南面バルコニー /温水洗浄便座 /浴室に窓 /食器洗乾燥機 /浄水器 /全室2面採光 | Event information イベント情報 | | Local guide Board (Please be sure to ask in advance) schedule / Every Saturday, Sunday and public holidays time / 11:00 ~ 17:00 現地案内会(事前に必ずお問い合わせください)日程/毎週土日祝時間/11:00 ~ 17:00 | Price 価格 | | 27,800,000 yen 2780万円 | Floor plan 間取り | | 4LDK 4LDK | Units sold 販売戸数 | | 1 units 1戸 | Land area 土地面積 | | 91.65 sq m (registration) 91.65m2(登記) | Building area 建物面積 | | 90.72 sq m (registration) 90.72m2(登記) | Driveway burden-road 私道負担・道路 | | Nothing, North 6m width (contact the road width 11.5m), East 5m width (contact the road width 7m) 無、北6m幅(接道幅11.5m)、東5m幅(接道幅7m) | Completion date 完成時期(築年月) | | 4 months after the contract 契約後4ヶ月 | Address 住所 | | Kyoto Uji Hirono-cho, large opening 京都府宇治市広野町大開 | Traffic 交通 | | JR Nara Line "Nitta" walk 13 minutes JR奈良線「新田」歩13分
| Contact お問い合せ先 | | (Ltd.) Kyoto Home TEL: 0774-39-7952 "saw SUUMO (Sumo)" and please contact (株)京都ホームTEL:0774-39-7952「SUUMO(スーモ)を見た」と問い合わせください | Building coverage, floor area ratio 建ぺい率・容積率 | | 60% ・ Hundred percent 60%・100% | Time residents 入居時期 | | 4 months after the contract 契約後4ヶ月 | Land of the right form 土地の権利形態 | | Ownership 所有権 | Structure and method of construction 構造・工法 | | Wooden 2-story (framing method) 木造2階建(軸組工法) | Use district 用途地域 | | One low-rise 1種低層 | Other limitations その他制限事項 | | Regulations have by the Landscape Act, Residential land development construction regulation area, Height district 景観法による規制有、宅地造成工事規制区域、高度地区 | Overview and notices その他概要・特記事項 | | Facilities: Public Water Supply, This sewage, City gas, Building confirmation number: No. Trust 13-3381, Parking: car space 設備:公営水道、本下水、都市ガス、建築確認番号:第トラスト13-3381、駐車場:カースペース | Company profile 会社概要 | | <Seller> Governor of Kyoto Prefecture (1) No. 013098 (Ltd.) Kyoto Home Yubinbango611-0042 Kyoto Uji Ogura-cho Ronoki 45-2 KG Bill 205 <売主>京都府知事(1)第013098号(株)京都ホーム〒611-0042 京都府宇治市小倉町老ノ木45-2 KGビル205 |
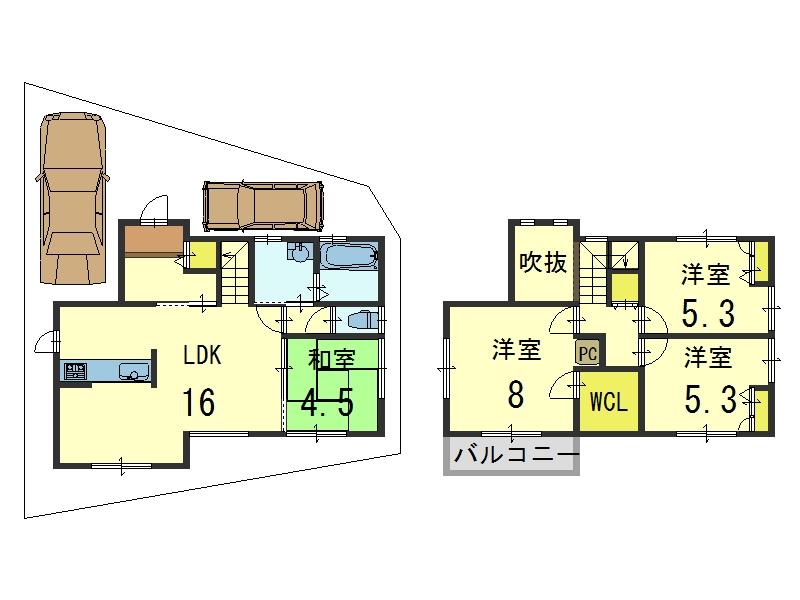
Floor plan間取り図  27,800,000 yen, 4LDK, Land area 91.65 sq m , Building area 90.72 sq m spacious LDK16 Pledge.
2780万円、4LDK、土地面積91.65m2、建物面積90.72m2 広々LDK16帖。
Otherその他  JR is Nitta Station walk 13 minutes.
JR新田駅徒歩13分です。
Local appearance photo現地外観写真  Local shooting
現地撮影
Otherその他  Daikai Elementary School 4-minute walk.
大開小学校徒歩4分。
 Large park is also within walking distance.
大きな公園も徒歩圏内です。
 Hirono kindergarten walk 8 minutes
広野幼稚園徒歩8分
 Other
その他
 Other
その他
 Other
その他
 Botanical Garden is also a walk within.
植物園もお散歩圏内です。
 Within a 15-minute walk also financial institutions
金融機関も徒歩15分圏内
 Leading drugstore is also close.
大手ドラッグストアも近いです。
Junior high school中学校  Hirono junior high school walk 7 minutes
広野中学校徒歩7分
Otherその他  Shopping is also within walking distance.
お買い物も徒歩圏内です。
Location
|