|
|
Kyoto, Kyoto Prefecture Ukyo-ku,
京都府京都市右京区
|
|
JR San-in Main Line "Uzumasa" walk 7 minutes
JR山陰本線「太秦」歩7分
|
|
■ Yes each room storage ■ Shopping convenient location ■ About a 4-minute walk from the Co-op Sagano
■各部屋収納あり ■買物便利地■コープさがのまで徒歩約4分
|
|
Including driveway burden about 9.06 square meters
私道負担約9.06平米含む
|
Features pickup 特徴ピックアップ | | Three-story or more / City gas 3階建以上 /都市ガス |
Price 価格 | | 29,800,000 yen 2980万円 |
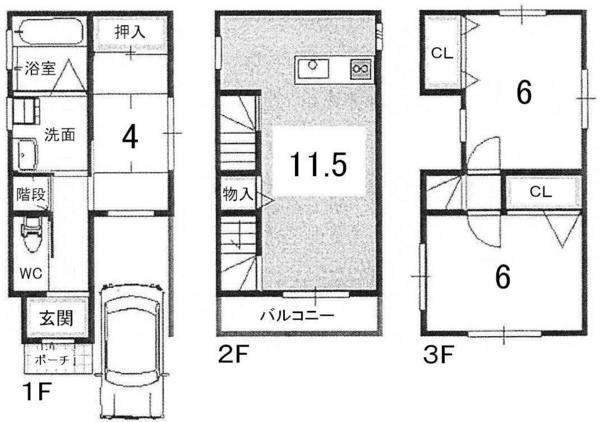
Floor plan 間取り | | 3LDK 3LDK |
Units sold 販売戸数 | | 1 units 1戸 |
Land area 土地面積 | | 52.62 sq m (registration) 52.62m2(登記) |
Building area 建物面積 | | 69.5 sq m 69.5m2 |
Driveway burden-road 私道負担・道路 | | 9.06 sq m , East 4m width 9.06m2、東4m幅 |
Completion date 完成時期(築年月) | | February 2014 2014年2月 |
Address 住所 | | Kyoto, Kyoto Prefecture Ukyo-ku, Uzumasanakasuji cho 京都府京都市右京区太秦中筋町 |
Traffic 交通 | | JR San-in Main Line "Uzumasa" walk 7 minutes JR山陰本線「太秦」歩7分
|
Related links 関連リンク | | [Related Sites of this company] 【この会社の関連サイト】 |
Contact お問い合せ先 | | Century 21 (Ltd.) Meisei housing TEL: 0800-603-6407 [Toll free] mobile phone ・ Also available from PHS Caller ID is not notified Please contact the "saw SUUMO (Sumo)" If it does not lead, If the real estate company センチュリー21(株)明成ハウジングTEL:0800-603-6407【通話料無料】携帯電話・PHSからもご利用いただけます 発信者番号は通知されません 「SUUMO(スーモ)を見た」と問い合わせください つながらない方、不動産会社の方は
|
Building coverage, floor area ratio 建ぺい率・容積率 | | 60% ・ 160% 60%・160% |
Time residents 入居時期 | | Consultation 相談 |
Land of the right form 土地の権利形態 | | Ownership 所有権 |
Structure and method of construction 構造・工法 | | Wooden three-story 木造3階建 |
Use district 用途地域 | | One middle and high 1種中高 |
Overview and notices その他概要・特記事項 | | Facilities: Public Water Supply, This sewage, City gas, Building confirmation number: 132940 設備:公営水道、本下水、都市ガス、建築確認番号:132940 |
Company profile 会社概要 | | <Mediation> Governor of Kyoto Prefecture (2) the first 011,664 No. Century 21 (Ltd.) Meisei housing Yubinbango615-0901 Kyoto, Kyoto Prefecture Ukyo-ku, Umezuminamihiro-cho, 25 <仲介>京都府知事(2)第011664号センチュリー21(株)明成ハウジング〒615-0901 京都府京都市右京区梅津南広町25 |