New Homes » Tohoku » Miyagi Prefecture » Aoba-ku, Sendai
 
| | Miyagi Prefecture, Aoba-ku, Sendai 宮城県仙台市青葉区 |
| Subway Namboku "Kitayobancho" bus 19 molecule flat-cho Ryuun Council before walking 1 minute 地下鉄南北線「北四番丁」バス19分子平町龍雲院前歩1分 |
| Pre-ground survey, Corresponding to the flat-35S, All-electric, LDK15 tatami mats or more, Parking two Allowed, Facing south, Year Available, System kitchen, Yang per goodese-style room, garden, Washbasin with shower, Face-to-face kitchen 地盤調査済、フラット35Sに対応、オール電化、LDK15畳以上、駐車2台可、南向き、年内入居可、システムキッチン、陽当り良好、和室、庭、シャワー付洗面台、対面式キッチン |
| There is also detailed documentation. Please feel free to contact us. 詳しい資料もございます。お気軽にお問合わせ下さい。 |
Features pickup 特徴ピックアップ | | Corresponding to the flat-35S / Pre-ground survey / Year Available / Parking two Allowed / Facing south / System kitchen / Yang per good / LDK15 tatami mats or more / Japanese-style room / garden / Washbasin with shower / Face-to-face kitchen / Barrier-free / Toilet 2 places / 2-story / Double-glazing / Zenshitsuminami direction / Warm water washing toilet seat / Underfloor Storage / TV monitor interphone / All living room flooring / IH cooking heater / Water filter / All-electric / BS ・ CS ・ CATV フラット35Sに対応 /地盤調査済 /年内入居可 /駐車2台可 /南向き /システムキッチン /陽当り良好 /LDK15畳以上 /和室 /庭 /シャワー付洗面台 /対面式キッチン /バリアフリー /トイレ2ヶ所 /2階建 /複層ガラス /全室南向き /温水洗浄便座 /床下収納 /TVモニタ付インターホン /全居室フローリング /IHクッキングヒーター /浄水器 /オール電化 /BS・CS・CATV | Price 価格 | | 50,700,000 yen ~ 51,800,000 yen 5070万円 ~ 5180万円 | Floor plan 間取り | | 4LDK 4LDK | Units sold 販売戸数 | | 3 units 3戸 | Total units 総戸数 | | 3 units 3戸 | Land area 土地面積 | | 167.87 sq m ~ 171.02 sq m (registration) 167.87m2 ~ 171.02m2(登記) | Building area 建物面積 | | 105.98 sq m ~ 105.99 sq m (registration) 105.98m2 ~ 105.99m2(登記) | Driveway burden-road 私道負担・道路 | | West 5.3m public road, South 5.4m public road 西側5.3m公道、南側5.4m公道 | Completion date 完成時期(築年月) | | 2013 late December 2013年12月下旬 | Address 住所 | | Sendai, Miyagi Prefecture, Aoba-ku, Kashiwagi 3-8-17 宮城県仙台市青葉区柏木3-8-17 | Traffic 交通 | | Subway Namboku "Kitayobancho" bus 19 molecule flat-cho Ryuun Council before walking 1 minute JR senzan line "Kitayama" walk 17 minutes Subway Namboku "Kitasendai" walk 21 minutes 地下鉄南北線「北四番丁」バス19分子平町龍雲院前歩1分 JR仙山線「北山」歩17分 地下鉄南北線「北仙台」歩21分
| Person in charge 担当者より | | [Regarding this property.] There is also detailed documentation. Please feel free to contact us. 【この物件について】詳しい資料もございます。お気軽にお問合わせ下さい。 | Contact お問い合せ先 | | TEL: 0800-603-2750 [Toll free] mobile phone ・ Also available from PHS Caller ID is not notified Please contact the "saw SUUMO (Sumo)" If it does not lead, If the real estate company TEL:0800-603-2750【通話料無料】携帯電話・PHSからもご利用いただけます 発信者番号は通知されません 「SUUMO(スーモ)を見た」と問い合わせください つながらない方、不動産会社の方は
| Building coverage, floor area ratio 建ぺい率・容積率 | | Kenpei rate: 60%, Volume ratio: 200% 建ペい率:60%、容積率:200% | Time residents 入居時期 | | Consultation 相談 | Land of the right form 土地の権利形態 | | Ownership 所有権 | Structure and method of construction 構造・工法 | | Wooden 2-story 木造2階建 | Construction 施工 | | One construction Co., Ltd. 一建設株式会社 | Use district 用途地域 | | Two mid-high 2種中高 | Land category 地目 | | Residential land 宅地 | Overview and notices その他概要・特記事項 | | Building confirmation number: No. H25 confirmation architecture Miyagi Kenju No. 00819 (H25.5.14) 建築確認番号:第H25確認建築宮城建住00819号(H25.5.14) | Company profile 会社概要 | | <Mediation> Miyagi Governor (8) No. 002980 (Ltd.) Tomoe real estate Yubinbango980-0803 Sendai, Miyagi Prefecture, Aoba-ku, Kokubuncho 3-11-9 alpha office building 8th floor <仲介>宮城県知事(8)第002980号(株)トモエ不動産〒980-0803 宮城県仙台市青葉区国分町3-11-9 アルファオフィスビル8階 |
Livingリビング  Indoor (12 May 2013) Shooting
室内(2013年12月)撮影
Entrance玄関  Local (12 May 2013) Shooting
現地(2013年12月)撮影
Livingリビング  Indoor (12 May 2013) Shooting
室内(2013年12月)撮影
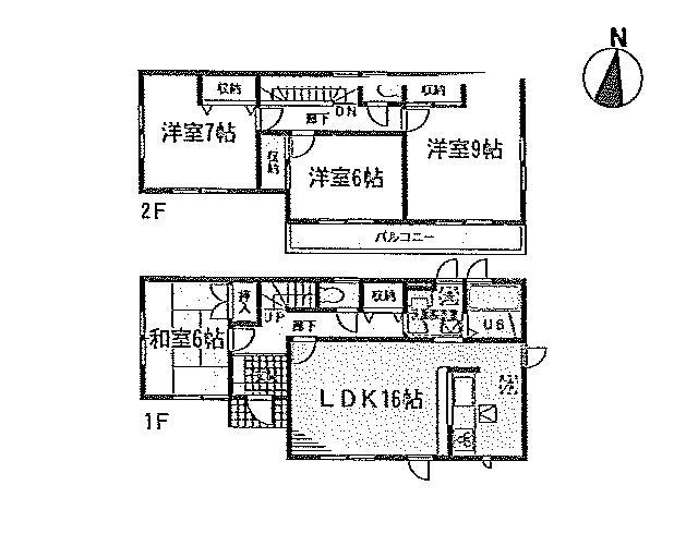
Floor plan間取り図  (1 Building), Price 51,800,000 yen, 4LDK, Land area 171.02 sq m , Building area 105.99 sq m
(1号棟)、価格5180万円、4LDK、土地面積171.02m2、建物面積105.99m2
Wash basin, toilet洗面台・洗面所  Indoor (12 May 2013) Shooting
室内(2013年12月)撮影
Receipt収納  Indoor (12 May 2013) Shooting
室内(2013年12月)撮影
 Other Equipment
その他設備
The entire compartment Figure全体区画図  layout drawing
配置図
Floor plan間取り図  (Building 2), Price 50,800,000 yen, 4LDK, Land area 167.87 sq m , Building area 105.98 sq m
(2号棟)、価格5080万円、4LDK、土地面積167.87m2、建物面積105.98m2
 Other Equipment
その他設備
 (3 Building), Price 50,700,000 yen, 4LDK, Land area 168.41 sq m , Building area 105.99 sq m
(3号棟)、価格5070万円、4LDK、土地面積168.41m2、建物面積105.99m2
 Other Equipment
その他設備
 Other Equipment
その他設備
 Other Equipment
その他設備
 Other Equipment
その他設備
Location
|