|
|
Miyagi Prefecture, Aoba-ku, Sendai
宮城県仙台市青葉区
|
|
Municipal bus "Higashikatsuyama Third Street South" walk 2 minutes
市営バス「東勝山三丁目南」歩2分
|
|
Pre-ground survey, Parking three or more possible, Fiscal year Available, Energy-saving water heaters, It is close to the city, System kitchen, Super close, Bathroom Dryer, Yang per good, All room storage, A quiet residential area, LDK15 Tatami以
地盤調査済、駐車3台以上可、年度内入居可、省エネ給湯器、市街地が近い、システムキッチン、スーパーが近い、浴室乾燥機、陽当り良好、全居室収納、閑静な住宅地、LDK15畳以
|
|
■ Elementary and junior high schools and shopping facilities, Close financial institutions life-friendly environment ■ Clean and safe, Economical all-electric EcoCute specification ■ Study space is also ideal for reading!
■小中学校や買物施設、金融機関も近く生活しやすい環境■クリーンで安全、経済的なオール電化エコキュート仕様■書斎スペースは読書するにも最適です!
|
Features pickup 特徴ピックアップ | | Pre-ground survey / Parking three or more possible / Fiscal year Available / Energy-saving water heaters / Super close / It is close to the city / System kitchen / Bathroom Dryer / Yang per good / All room storage / A quiet residential area / LDK15 tatami mats or more / Japanese-style room / Shaping land / Washbasin with shower / Face-to-face kitchen / Barrier-free / Toilet 2 places / Bathroom 1 tsubo or more / 2-story / Double-glazing / Otobasu / Warm water washing toilet seat / Nantei / Underfloor Storage / The window in the bathroom / TV monitor interphone / Leafy residential area / Ventilation good / IH cooking heater / Dish washing dryer / Walk-in closet / All room 6 tatami mats or more / All-electric / All rooms are two-sided lighting / Maintained sidewalk / Flat terrain 地盤調査済 /駐車3台以上可 /年度内入居可 /省エネ給湯器 /スーパーが近い /市街地が近い /システムキッチン /浴室乾燥機 /陽当り良好 /全居室収納 /閑静な住宅地 /LDK15畳以上 /和室 /整形地 /シャワー付洗面台 /対面式キッチン /バリアフリー /トイレ2ヶ所 /浴室1坪以上 /2階建 /複層ガラス /オートバス /温水洗浄便座 /南庭 /床下収納 /浴室に窓 /TVモニタ付インターホン /緑豊かな住宅地 /通風良好 /IHクッキングヒーター /食器洗乾燥機 /ウォークインクロゼット /全居室6畳以上 /オール電化 /全室2面採光 /整備された歩道 /平坦地 |
Event information イベント情報 | | Open House (Please be sure to ask in advance) schedule / Every Saturday, Sunday and public holidays オープンハウス(事前に必ずお問い合わせください)日程/毎週土日祝 |
Price 価格 | | 31,800,000 yen 3180万円 |
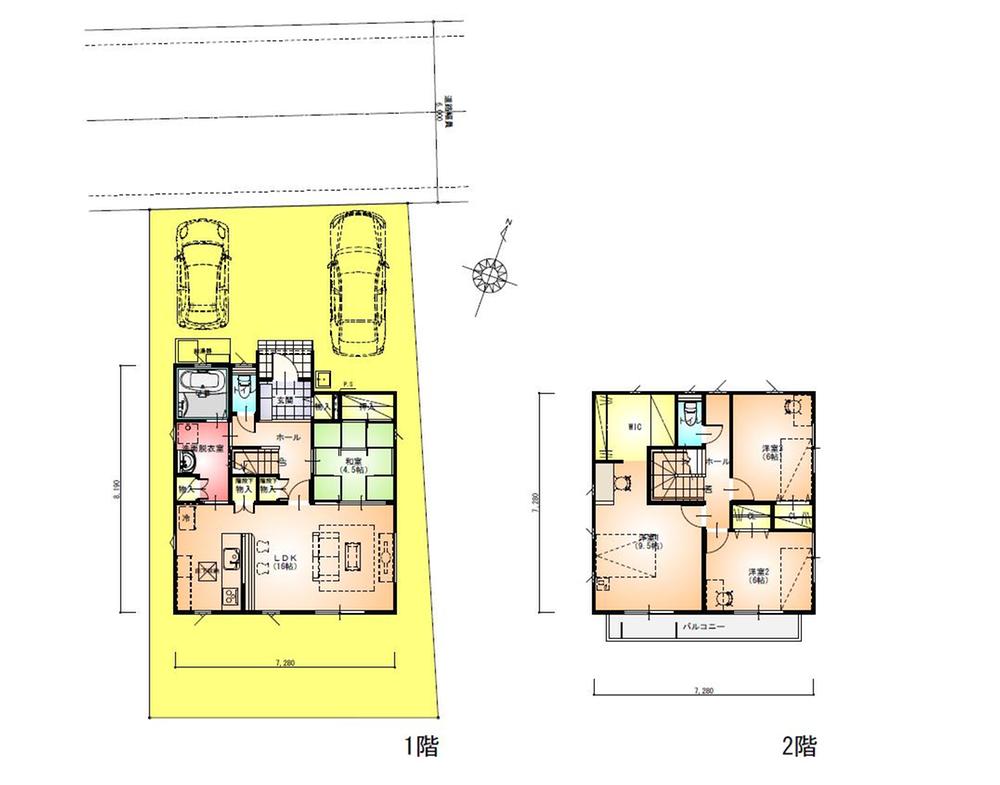
Floor plan 間取り | | 4LDK 4LDK |
Units sold 販売戸数 | | 1 units 1戸 |
Land area 土地面積 | | 153.81 sq m 153.81m2 |
Building area 建物面積 | | 109.1 sq m 109.1m2 |
Driveway burden-road 私道負担・道路 | | Nothing, North 6m width 無、北6m幅 |
Completion date 完成時期(築年月) | | January 2014 2014年1月 |
Address 住所 | | Miyagi Prefecture, Aoba-ku, Sendai Higashikatsuyama 3-4-27 宮城県仙台市青葉区東勝山3-4-27 |
Traffic 交通 | | Municipal bus "Higashikatsuyama Third Street South" walk 2 minutes 市営バス「東勝山三丁目南」歩2分 |
Related links 関連リンク | | [Related Sites of this company] 【この会社の関連サイト】 |
Contact お問い合せ先 | | Co., Ltd. treasure Real Estate TEL: 0800-600-6958 [Toll free] mobile phone ・ Also available from PHS Caller ID is not notified Please contact the "saw SUUMO (Sumo)" If it does not lead, If the real estate company (株)宝不動産TEL:0800-600-6958【通話料無料】携帯電話・PHSからもご利用いただけます 発信者番号は通知されません 「SUUMO(スーモ)を見た」と問い合わせください つながらない方、不動産会社の方は
|
Building coverage, floor area ratio 建ぺい率・容積率 | | 80% ・ 300% 80%・300% |
Time residents 入居時期 | | February 2014 schedule 2014年2月予定 |
Land of the right form 土地の権利形態 | | Ownership 所有権 |
Structure and method of construction 構造・工法 | | Wooden 2-story (framing method) 木造2階建(軸組工法) |
Overview and notices その他概要・特記事項 | | Facilities: Public Water Supply, This sewage, All-electric, Building confirmation number: No. H25 confirmation architecture AzumaKense No. -0294, Parking: car space 設備:公営水道、本下水、オール電化、建築確認番号:第H25確認建築東建セ-0294号、駐車場:カースペース |
Company profile 会社概要 | | <Mediation> Miyagi Governor (1) No. 006035 (stock) Takara real estate Yubinbango980-0871 Sendai, Miyagi Prefecture, Aoba-ku, Yahata 2-5-5 <仲介>宮城県知事(1)第006035号(株)宝不動産〒980-0871 宮城県仙台市青葉区八幡2-5-5 |