2014June
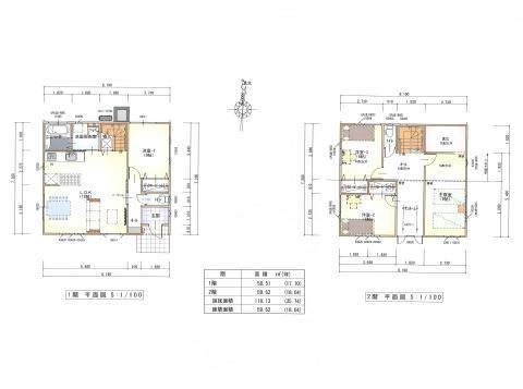
28,300,000 yen, 4LDK, 118.13 sq m
New Homes » Tohoku » Miyagi Prefecture » Aoba-ku, Sendai
 
| | Miyagi Prefecture, Aoba-ku, Sendai 宮城県仙台市青葉区 |
| JR senzan line "Kitasendai" walk 29 minutes JR仙山線「北仙台」歩29分 |
Features pickup 特徴ピックアップ | | Parking two Allowed / Land 50 square meters or more / LDK18 tatami mats or more / Siemens south road / Or more before road 6m / 2-story / All room 6 tatami mats or more 駐車2台可 /土地50坪以上 /LDK18畳以上 /南側道路面す /前道6m以上 /2階建 /全居室6畳以上 | Price 価格 | | 28,300,000 yen 2830万円 | Floor plan 間取り | | 4LDK 4LDK | Units sold 販売戸数 | | 1 units 1戸 | Land area 土地面積 | | 182.78 sq m (measured) 182.78m2(実測) | Building area 建物面積 | | 118.13 sq m 118.13m2 | Driveway burden-road 私道負担・道路 | | Nothing, South 6.5m width (contact the road width 11.8m), East 4m width (contact the road width 16.9m) 無、南6.5m幅(接道幅11.8m)、東4m幅(接道幅16.9m) | Completion date 完成時期(築年月) | | June 2014 2014年6月 | Address 住所 | | Miyagi Prefecture, Aoba-ku, Sendai Kabira 2 宮城県仙台市青葉区川平2 | Traffic 交通 | | JR senzan line "Kitasendai" walk 29 minutes JR仙山線「北仙台」歩29分
| Related links 関連リンク | | [Related Sites of this company] 【この会社の関連サイト】 | Contact お問い合せ先 | | TEL: 0800-603-9528 [Toll free] mobile phone ・ Also available from PHS Caller ID is not notified Please contact the "saw SUUMO (Sumo)" If it does not lead, If the real estate company TEL:0800-603-9528【通話料無料】携帯電話・PHSからもご利用いただけます 発信者番号は通知されません 「SUUMO(スーモ)を見た」と問い合わせください つながらない方、不動産会社の方は
| Building coverage, floor area ratio 建ぺい率・容積率 | | Fifty percent ・ 80% 50%・80% | Time residents 入居時期 | | Consultation 相談 | Land of the right form 土地の権利形態 | | Ownership 所有権 | Structure and method of construction 構造・工法 | | Wooden 2-story 木造2階建 | Use district 用途地域 | | One low-rise 1種低層 | Overview and notices その他概要・特記事項 | | Facilities: Public Water Supply, This sewage, Building confirmation number: No. East -13-07-2159 issue 設備:公営水道、本下水、建築確認番号:第 東日本-13-07-2159 号 | Company profile 会社概要 | | <Mediation> Minister of Land, Infrastructure and Transport (1) the first 008,271 No. Century 21 (Ltd.) Create Rebun Yubinbango990-2413 Yamagata, Yamagata Prefecture Namwon-cho 2-7-39 <仲介>国土交通大臣(1)第008271号センチュリー21(株)クリエイト礼文〒990-2413 山形県山形市南原町2-7-39 |
 Local appearance photo
現地外観写真
Floor plan間取り図  28,300,000 yen, 4LDK, Land area 182.78 sq m , Building area 118.13 sq m
2830万円、4LDK、土地面積182.78m2、建物面積118.13m2
Location
|