2014June
25,800,000 yen, 5LDK, 113.8 sq m
New Homes » Tohoku » Miyagi Prefecture » Aoba-ku, Sendai
 
| | Miyagi Prefecture, Aoba-ku, Sendai 宮城県仙台市青葉区 |
| JR senzan line "Aiko" walk 13 minutes JR仙山線「愛子」歩13分 |
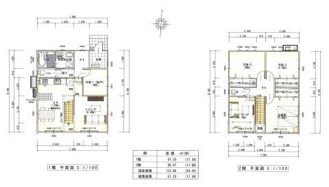
Features pickup 特徴ピックアップ | | Parking three or more possible / Or more before road 6m / 2-story / Flat terrain 駐車3台以上可 /前道6m以上 /2階建 /平坦地 | Price 価格 | | 25,800,000 yen 2580万円 | Floor plan 間取り | | 5LDK 5LDK | Units sold 販売戸数 | | 1 units 1戸 | Land area 土地面積 | | 149.21 sq m (registration) 149.21m2(登記) | Building area 建物面積 | | 113.8 sq m 113.8m2 | Driveway burden-road 私道負担・道路 | | Nothing, North 6m width (contact the road width 9.1m) 無、北6m幅(接道幅9.1m) | Completion date 完成時期(築年月) | | June 2014 2014年6月 | Address 住所 | | Sendai, Miyagi Prefecture, Aoba-ku, Aiko east 3 宮城県仙台市青葉区愛子東3 | Traffic 交通 | | JR senzan line "Aiko" walk 13 minutes JR仙山線「愛子」歩13分
| Related links 関連リンク | | [Related Sites of this company] 【この会社の関連サイト】 | Contact お問い合せ先 | | TEL: 0800-603-9528 [Toll free] mobile phone ・ Also available from PHS Caller ID is not notified Please contact the "saw SUUMO (Sumo)" If it does not lead, If the real estate company TEL:0800-603-9528【通話料無料】携帯電話・PHSからもご利用いただけます 発信者番号は通知されません 「SUUMO(スーモ)を見た」と問い合わせください つながらない方、不動産会社の方は
| Building coverage, floor area ratio 建ぺい率・容積率 | | 60% ・ 200% 60%・200% | Time residents 入居時期 | | Consultation 相談 | Land of the right form 土地の権利形態 | | Ownership 所有権 | Structure and method of construction 構造・工法 | | Wooden 2-story 木造2階建 | Use district 用途地域 | | One dwelling 1種住居 | Overview and notices その他概要・特記事項 | | Facilities: Public Water Supply, This sewage, Building confirmation number: No. East No. 13-07-2379 設備:公営水道、本下水、建築確認番号:第 東日本13-07-2379号 | Company profile 会社概要 | | <Seller> Minister of Land, Infrastructure and Transport (1) No. 008271 Century 21 (Ltd.) Create Rebun Yubinbango990-2413 Yamagata, Yamagata Prefecture Namwon-cho 2-7-39 <売主>国土交通大臣(1)第008271号センチュリー21(株)クリエイト礼文〒990-2413 山形県山形市南原町2-7-39 |
 Local appearance photo
現地外観写真
Floor plan間取り図  25,800,000 yen, 5LDK, Land area 149.21 sq m , Building area 113.8 sq m
2580万円、5LDK、土地面積149.21m2、建物面積113.8m2
Location
|