New Homes » Tohoku » Miyagi Prefecture » Sendai Izumi-ku
 
| | Sendai, Miyagi Prefecture Izumi-ku, 宮城県仙台市泉区 |
| Miyako bus "Yamanotera 1-chome, Minami" walk 8 minutes 宮交バス「山の寺1丁目南」歩8分 |
| A quiet residential area. All-electric new construction 4LDK. Nanakita elementary school walk 16 minutes, Nanakita junior high school 15-minute walk 閑静な住宅地。オール電化新築4LDK。七北田小学校徒歩16分、七北田中学校徒歩15分 |
| Please visit ・ Consultation 0800-603-9241 [Toll free] Until, Please feel free to contact us ◆ Fireproof ・ Endurance ・ Dairaito Construction of thermal insulation ◆ Insurance of JIO home ・ Ground guarantee ◆ Termite five-year warranty ◆ System Kitchen: IH cooking heater ・ Your easy-to-clean kitchen panel ◆ System bus: Reheating ・ Karari floor ・ Barrier-free design ・ handrail ◆ Toilets: 1, Second floor Washlet ・ Heating toilet seat ・ Raku to clean the toilet bowl ・ handrail ◆ Condensation reduce multi-layer glass ・ Color monitor intercom ・ Insulation entrance door ご見学・ご相談は0800-603-9241 【通話料無料】まで、お気軽にお問合せ下さい◆耐火・耐久・断熱のダイライト構法◆JIOわが家の保険・地盤保証 ◆シロアリ5年保証◆システムキッチン:IHクッキングヒーター・お掃除しやすいキッチンパネル◆システムバス:追い焚き・カラリ床・バリアフリー設計・手すり◆トイレ:1、2階ウォシュレット・暖房便座・らくしてキレイ便器・手すり◆結露軽減複層ガラス・カラーモニタードアホン・断熱玄関ドア |
Features pickup 特徴ピックアップ | | Corresponding to the flat-35S / Parking two Allowed / Land 50 square meters or more / Energy-saving water heaters / System kitchen / Bathroom Dryer / Yang per good / A quiet residential area / LDK15 tatami mats or more / Or more before road 6m / Japanese-style room / garden / Washbasin with shower / Face-to-face kitchen / Toilet 2 places / 2-story / Double-glazing / Otobasu / Warm water washing toilet seat / Underfloor Storage / TV monitor interphone / IH cooking heater / All room 6 tatami mats or more / Water filter / All-electric フラット35Sに対応 /駐車2台可 /土地50坪以上 /省エネ給湯器 /システムキッチン /浴室乾燥機 /陽当り良好 /閑静な住宅地 /LDK15畳以上 /前道6m以上 /和室 /庭 /シャワー付洗面台 /対面式キッチン /トイレ2ヶ所 /2階建 /複層ガラス /オートバス /温水洗浄便座 /床下収納 /TVモニタ付インターホン /IHクッキングヒーター /全居室6畳以上 /浄水器 /オール電化 | Price 価格 | | 25,800,000 yen 2580万円 | Floor plan 間取り | | 4LDK 4LDK | Units sold 販売戸数 | | 2 units 2戸 | Total units 総戸数 | | 2 units 2戸 | Land area 土地面積 | | 169.56 sq m ~ 170.52 sq m 169.56m2 ~ 170.52m2 | Building area 建物面積 | | 105.16 sq m ~ 105.98 sq m 105.16m2 ~ 105.98m2 | Driveway burden-road 私道負担・道路 | | Road width: 6.5m, Asphaltic pavement 道路幅:6.5m、アスファルト舗装 | Completion date 完成時期(築年月) | | March 2014 schedule 2014年3月予定 | Address 住所 | | Sendai, Miyagi Prefecture Izumi-ku, Tenjinzawa 1 宮城県仙台市泉区天神沢1 | Traffic 交通 | | Miyako bus "Yamanotera 1-chome, Minami" walk 8 minutes 宮交バス「山の寺1丁目南」歩8分 | Person in charge 担当者より | | Rep Ogimoto Age: 40 Daigyokai experience: as a total planner of the 20-year real estate, Shi Hear what our customers of hope and anxiety, We will carefully to finely answering. Please consult anything when there is a question of your purchase your sale! 担当者扇元 年齢:40代業界経験:20年不動産のトータルプランナーとして、お客様の希望や不安をお聞きし、丁寧に細かく応対させていただきます。ご購入ご売却の疑問がございましたら何でもご相談ください! | Contact お問い合せ先 | | TEL: 0800-603-9241 [Toll free] mobile phone ・ Also available from PHS Caller ID is not notified Please contact the "saw SUUMO (Sumo)" If it does not lead, If the real estate company TEL:0800-603-9241【通話料無料】携帯電話・PHSからもご利用いただけます 発信者番号は通知されません 「SUUMO(スーモ)を見た」と問い合わせください つながらない方、不動産会社の方は
| Building coverage, floor area ratio 建ぺい率・容積率 | | Kenpei rate: 60%, Volume ratio: 200% 建ペい率:60%、容積率:200% | Time residents 入居時期 | | Consultation 相談 | Land of the right form 土地の権利形態 | | Ownership 所有権 | Use district 用途地域 | | Two mid-high 2種中高 | Land category 地目 | | Residential land 宅地 | Overview and notices その他概要・特記事項 | | Contact: Ogimoto , Building confirmation number: No. H25 confirmation architecture Miyagi Kenju No. 03874 担当者:扇元 、建築確認番号:第H25確認建築宮城建住03874号 | Company profile 会社概要 | | <Mediation> Miyagi Governor (1) No. 005642 (Corporation) All Japan Real Estate Association Northeast Real Estate Fair Trade Council member (Ltd.) Urban port Yubinbango981-3117 Sendai, Miyagi Prefecture Izumi-ku, Ichinazaka shaped Shimizu Hagi 100-6 <仲介>宮城県知事(1)第005642号(公社)全日本不動産協会会員 東北地区不動産公正取引協議会加盟(株)アーバンポート〒981-3117 宮城県仙台市泉区市名坂字萩清水100-6 |
Local appearance photo現地外観写真  Local (11 May 2013) Shooting
現地(2013年11月)撮影
 Local (11 May 2013) Shooting
現地(2013年11月)撮影
Same specifications photo (kitchen)同仕様写真(キッチン)  Same specifications
同仕様
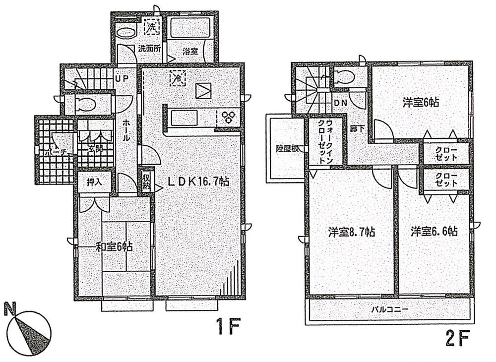
Floor plan間取り図  (1 Building), Price 25,800,000 yen, 4LDK, Land area 170.52 sq m , Building area 105.98 sq m
(1号棟)、価格2580万円、4LDK、土地面積170.52m2、建物面積105.98m2
Same specifications photos (living)同仕様写真(リビング)  Same specifications
同仕様
Same specifications photo (bathroom)同仕様写真(浴室)  Same specifications
同仕様
Same specifications photos (Other introspection)同仕様写真(その他内観)  Same specifications
同仕様
 The entire compartment Figure
全体区画図
Floor plan間取り図  (Building 2), Price 25,800,000 yen, 4LDK, Land area 169.56 sq m , Building area 105.16 sq m
(2号棟)、価格2580万円、4LDK、土地面積169.56m2、建物面積105.16m2
Same specifications photos (Other introspection)同仕様写真(その他内観)  Same specifications
同仕様
 Same specifications
同仕様
Location
|