|
|
Sendai, Miyagi Prefecture Miyagino District
宮城県仙台市宮城野区
|
|
Subway Namboku "Asahigaoka" walk 30 minutes
地下鉄南北線「旭ヶ丘」歩30分
|
|
Why do not you start a new life in a new town "New Town Tsuruketanihigashi"? !
新しい街「ニュータウン鶴ヶ谷東」で新しい暮らしはじめてみませんか?前面6m幅員の道路に面し日当たり良好!
|
Features pickup 特徴ピックアップ | | Land 50 square meters or more / Yang per good / Siemens south road / A quiet residential area / Or more before road 6m / Home garden 土地50坪以上 /陽当り良好 /南側道路面す /閑静な住宅地 /前道6m以上 /家庭菜園 |
Event information イベント情報 | | Open House Schedule / Now open オープンハウス日程/公開中 |
Price 価格 | | 28.8 million yen ~ 29,800,000 yen 2880万円 ~ 2980万円 |
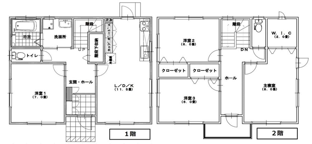
Floor plan 間取り | | 4LDK + S (storeroom) 4LDK+S(納戸) |
Units sold 販売戸数 | | 2 units 2戸 |
Total units 総戸数 | | 2 units 2戸 |
Land area 土地面積 | | 189.51 sq m ~ 206.83 sq m (57.32 tsubo ~ 62.56 square meters) 189.51m2 ~ 206.83m2(57.32坪 ~ 62.56坪) |
Building area 建物面積 | | 102.88 sq m (31.12 square meters) 102.88m2(31.12坪) |
Completion date 完成時期(築年月) | | Mid-June 2013 2013年6月中旬 |
Address 住所 | | Sendai, Miyagi Prefecture Miyagino District Tsurugayahigashi 4-17-20 宮城県仙台市宮城野区鶴ケ谷東4-17-20 |
Traffic 交通 | | Subway Namboku "Asahigaoka" walk 30 minutes 地下鉄南北線「旭ヶ丘」歩30分
|
Contact お問い合せ先 | | Toyo Shokusan (Ltd.) TEL: 0800-603-7231 [Toll free] mobile phone ・ Also available from PHS Caller ID is not notified Please contact the "saw SUUMO (Sumo)" If it does not lead, If the real estate company 東洋殖産(株)TEL:0800-603-7231【通話料無料】携帯電話・PHSからもご利用いただけます 発信者番号は通知されません 「SUUMO(スーモ)を見た」と問い合わせください つながらない方、不動産会社の方は
|
Building coverage, floor area ratio 建ぺい率・容積率 | | Kenpei rate: 50%, Volume ratio: 80% 建ペい率:50%、容積率:80% |
Time residents 入居時期 | | Consultation 相談 |
Land of the right form 土地の権利形態 | | Ownership 所有権 |
Structure and method of construction 構造・工法 | | Wooden 2-story (2 × 4 construction method) 木造2階建(2×4工法) |
Construction 施工 | | Toyo Shokusan Co., Ltd. 東洋殖産株式会社 |
Use district 用途地域 | | One low-rise 1種低層 |
Land category 地目 | | Residential land 宅地 |
Overview and notices その他概要・特記事項 | | Building confirmation number: H23 confirmation architecture Miyagi Kenju 05131 ・ 05132 建築確認番号:H23確認建築宮城建住05131・05132 |
Company profile 会社概要 | | <Seller> Miyagi Governor (11) Article 001467 No. Toyo Shokusan Co. Yubinbango989-1213 Miyagi Prefecture Shibata District Ōgawara shaped Sumiyoshi-cho, 6-6 <売主>宮城県知事(11)第001467号東洋殖産(株)〒989-1213 宮城県柴田郡大河原町字住吉町6-6 |