New Homes » Tohoku » Miyagi Prefecture » Sendai Wakabayashi-ku
 
| | Sendai, Miyagi Prefecture Wakabayashi-ku, 宮城県仙台市若林区 |
| JR Senseki "Miyaginohara" bus 4 minutes Rokuchonomenaka cho, walk 10 minutes JR仙石線「宮城野原」バス4分六丁の目中町歩10分 |
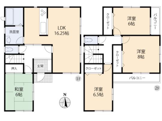
| 4LDK ・ Two car space ・ LDK about 16 Pledge ・ Storage enhancement 4LDK・カースペース2台・LDK約16帖・収納充実 |
| LDK was finished in comfortable space and refreshing is about 15 Pledge. It is likely to be deeper communication gathered nature and family. Floor plan is of clear 4LDK. Is your family everyone you can you live leisurely. Car space 2 cars. It is safe to steep visitor. There storage space. The room is likely to Katazuki clean. スッキリとした心地よい空間に仕上げられたLDKは約15帖です。自然と家族が集まりコミュニケーションも深まりそうです。間取りはゆとりの4LDK。ご家族皆様がのんびりお暮らし頂けます。カースペース2台分。急な来客にも安心です。収納スペースございます。お部屋がスッキリ片付きそうです。 |
Price 価格 | | 31.5 million yen 3150万円 | Floor plan 間取り | | 4LDK 4LDK | Units sold 販売戸数 | | 1 units 1戸 | Land area 土地面積 | | 130.35 sq m (registration) 130.35m2(登記) | Building area 建物面積 | | 105.16 sq m (measured) 105.16m2(実測) | Driveway burden-road 私道負担・道路 | | 36.19 sq m 36.19m2 | Completion date 完成時期(築年月) | | January 2014 2014年1月 | Address 住所 | | Sendai, Miyagi Wakabayashi-ku Rokuchonomenaka cho 宮城県仙台市若林区六丁の目中町 | Traffic 交通 | | JR Senseki "Miyaginohara" bus 4 minutes Rokuchonomenaka cho, walk 10 minutes JR仙石線「宮城野原」バス4分六丁の目中町歩10分
| Related links 関連リンク | | [Related Sites of this company] 【この会社の関連サイト】 | Contact お問い合せ先 | | TEL: 0800-600-1862 [Toll free] mobile phone ・ Also available from PHS Caller ID is not notified Please contact the "saw SUUMO (Sumo)" If it does not lead, If the real estate company TEL:0800-600-1862【通話料無料】携帯電話・PHSからもご利用いただけます 発信者番号は通知されません 「SUUMO(スーモ)を見た」と問い合わせください つながらない方、不動産会社の方は
| Building coverage, floor area ratio 建ぺい率・容積率 | | 60% ・ 200% 60%・200% | Time residents 入居時期 | | Consultation 相談 | Land of the right form 土地の権利形態 | | Ownership 所有権 | Structure and method of construction 構造・工法 | | Wooden 2-story 木造2階建 | Use district 用途地域 | | Semi-industrial 準工業 | Overview and notices その他概要・特記事項 | | Facilities: Public Water Supply, This sewage, City gas, Building confirmation number: No. 01289, Parking: No 設備:公営水道、本下水、都市ガス、建築確認番号:01289号、駐車場:無 | Company profile 会社概要 | | <Mediation> Minister of Land, Infrastructure and Transport (3) The 006,183 No. Seongnam Construction Co., Ltd. Sendai Izumi shop Yubinbango981-3133 Sendai, Miyagi Prefecture Izumi-ku, Izumi Chuo 1-40-3 <仲介>国土交通大臣(3)第006183号城南建設(株)仙台泉店〒981-3133 宮城県仙台市泉区泉中央1-40-3 |
Livingリビング  Living example of construction (the same specifications of the construction company)
リビング施工例(施工会社の同仕様)
 Living example of construction (the same specifications of the construction company)
リビング施工例(施工会社の同仕様)
Kitchenキッチン  Kitchen construction cases (same specifications of the construction company)
キッチン施工例(施工会社の同仕様)
Floor plan間取り図  31.5 million yen, 4LDK, Land area 130.35 sq m , Building area 105.16 sq m floor plan
3150万円、4LDK、土地面積130.35m2、建物面積105.16m2 間取り図
Non-living roomリビング以外の居室  Japanese-style example of construction (the same specifications of the construction company)
和室施工例(施工会社の同仕様)
Wash basin, toilet洗面台・洗面所  Lavatory example of construction (the same specifications of the construction company)
洗面室施工例(施工会社の同仕様)
Toiletトイレ  Toilet construction cases (same specifications of the construction company)
トイレ施工例(施工会社の同仕様)
Primary school小学校  Nanasato until elementary school 1500m Nanasato elementary school 19 minutes walk (about 1500m)
七郷小学校まで1500m 七郷小学校 徒歩19分(約1500m)
Other introspectionその他内観  Staircase construction cases (same specifications of the construction company)
階段施工例(施工会社の同仕様)
Non-living roomリビング以外の居室  Western-style example of construction (the same specifications of the construction company)
洋室施工例(施工会社の同仕様)
Junior high school中学校  Nanasato until junior high school 1700m Nanasato junior high school Walk 22 minutes (about 1700m)
七郷中学校まで1700m 七郷中学校 徒歩22分(約1700m)
Other introspectionその他内観  Intercom TV
インターホンTV
Non-living roomリビング以外の居室  Japanese-style example of construction (the same specifications of the construction company)
和室施工例(施工会社の同仕様)
Shopping centreショッピングセンター  Miyagi Coop 564m Miyagi Co-op until the eye shop six-cho Six-cho of eye shop 8-minute walk (about 570m)
みやぎ生協 六町の目店まで564m みやぎ生協 六町の目店 徒歩8分(約570m)
Convenience storeコンビニ  Ministop Co., Ltd. 59m MINISTOP until the eye shop six-cho Six-cho of eye shop 1 minute walk (about 60m)
ミニストップ 六町の目店まで59m ミニストップ 六町の目店 徒歩1分(約60m)
Location
|