New Homes » Tohoku » Miyagi Prefecture » Toda-gun
 
| | Miyagi Prefecture Toda-gun, Misato 宮城県遠田郡美里町 |
| JR Tohoku Line "Kogota" walk 9 minutes JR東北本線「小牛田」歩9分 |
| JR Kogota Station walk about 9 minutes ・ There is also a very good residential living environment medical institutions near! ! JR小牛田駅徒歩約9分・近くに医療機関もあり住環境の大変良い住宅です!! |
Features pickup 特徴ピックアップ | | Corresponding to the flat-35S / Parking two Allowed / Land 50 square meters or more / Energy-saving water heaters / Facing south / System kitchen / All room storage / Flat to the station / A quiet residential area / LDK15 tatami mats or more / Or more before road 6m / Corner lot / Japanese-style room / Shaping land / Washbasin with shower / Face-to-face kitchen / Toilet 2 places / 2-story / South balcony / Double-glazing / Zenshitsuminami direction / Otobasu / Warm water washing toilet seat / Nantei / Underfloor Storage / The window in the bathroom / TV monitor interphone / All room 6 tatami mats or more / Water filter / Flat terrain フラット35Sに対応 /駐車2台可 /土地50坪以上 /省エネ給湯器 /南向き /システムキッチン /全居室収納 /駅まで平坦 /閑静な住宅地 /LDK15畳以上 /前道6m以上 /角地 /和室 /整形地 /シャワー付洗面台 /対面式キッチン /トイレ2ヶ所 /2階建 /南面バルコニー /複層ガラス /全室南向き /オートバス /温水洗浄便座 /南庭 /床下収納 /浴室に窓 /TVモニタ付インターホン /全居室6畳以上 /浄水器 /平坦地 | Event information イベント情報 | | Local sales meeting schedule / Now open 現地販売会日程/公開中 | Price 価格 | | 19,800,000 yen 1980万円 | Floor plan 間取り | | 4LDK 4LDK | Units sold 販売戸数 | | 1 units 1戸 | Total units 総戸数 | | 2 units 2戸 | Land area 土地面積 | | 194 sq m 194m2 | Building area 建物面積 | | 105.99 sq m 105.99m2 | Driveway burden-road 私道負担・道路 | | Nothing, West 8.1m width, North 5.9m width 無、西8.1m幅、北5.9m幅 | Completion date 完成時期(築年月) | | December 2013 2013年12月 | Address 住所 | | Miyagi Prefecture Toda-gun, Misato-cho Sakuragicho 宮城県遠田郡美里町字桜木町 | Traffic 交通 | | JR Tohoku Line "Kogota" walk 9 minutes JR東北本線「小牛田」歩9分
| Person in charge 担当者より | | [Regarding this property.] JR Kogota Station walk about 9 minutes It is a quiet residential area in new homes! ! 【この物件について】JR小牛田駅徒歩約9分 閑静な住宅地内新築住宅です!! | Contact お問い合せ先 | | TEL: 0800-603-8801 [Toll free] mobile phone ・ Also available from PHS Caller ID is not notified Please contact the "saw SUUMO (Sumo)" If it does not lead, If the real estate company TEL:0800-603-8801【通話料無料】携帯電話・PHSからもご利用いただけます 発信者番号は通知されません 「SUUMO(スーモ)を見た」と問い合わせください つながらない方、不動産会社の方は
| Building coverage, floor area ratio 建ぺい率・容積率 | | 60% ・ 200% 60%・200% | Time residents 入居時期 | | January 2014 will 2014年1月予定 | Land of the right form 土地の権利形態 | | Ownership 所有権 | Structure and method of construction 構造・工法 | | Wooden 2-story (framing method) 木造2階建(軸組工法) | Use district 用途地域 | | One dwelling 1種住居 | Overview and notices その他概要・特記事項 | | Facilities: Public Water Supply, This sewage, Individual LPG, Building confirmation number: 01353, Parking: car space 設備:公営水道、本下水、個別LPG、建築確認番号:01353、駐車場:カースペース | Company profile 会社概要 | | <Mediation> Miyagi Governor (2) No. 005572 (Ltd.) Going ・ Trust Yubinbango984-0052 Sendai, Miyagi Wakabayashi-ku Renbo 1-6-25 CITY Renbo III-101 <仲介>宮城県知事(2)第005572号(株)ゴーイング・トラスト〒984-0052 宮城県仙台市若林区連坊1-6-25 CITY連坊III-101 |
Local appearance photo現地外観写真  Local (10 May 2013) Shooting
現地(2013年10月)撮影
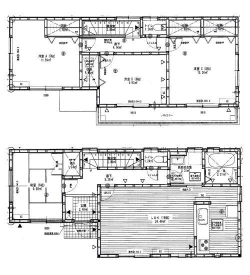
Floor plan間取り図  19,800,000 yen, 4LDK, Land area 194 sq m , Building area 105.99 sq m
1980万円、4LDK、土地面積194m2、建物面積105.99m2
Local appearance photo現地外観写真  Local (10 May 2013) Shooting
現地(2013年10月)撮影
 Same specifications photo (bathroom)
同仕様写真(浴室)
 Same specifications photo (kitchen)
同仕様写真(キッチン)
 Wash basin, toilet
洗面台・洗面所
Local photos, including front road前面道路含む現地写真  Local (10 May 2013) Shooting
現地(2013年10月)撮影
 Local (10 May 2013) Shooting
現地(2013年10月)撮影
Location
|