|
|
Miyagi Prefecture Watari-gun Watari-cho
宮城県亘理郡亘理町
|
|
JR Joban Line "Okuma" walk 12 minutes
JR常磐線「逢隈」歩12分
|
|
Corresponding to the flat-35S, Year Available, LDK15 tatami mats or more, Face-to-face kitchen, Parking two Allowed, Facing south, System kitchenese-style room, garden, Barrier-free, 2-story, Double-glazing, Underfloor Storage, The window in the bathroom
フラット35Sに対応、年内入居可、LDK15畳以上、対面式キッチン、駐車2台可、南向き、システムキッチン、和室、庭、バリアフリー、2階建、複層ガラス、床下収納、浴室に窓
|
|
There is also detailed documentation. Please feel free to contact us.
詳しい資料もございます。お気軽にお問い合わせ下さい。
|
Features pickup 特徴ピックアップ | | Corresponding to the flat-35S / Year Available / Parking two Allowed / Facing south / System kitchen / LDK15 tatami mats or more / Japanese-style room / garden / Face-to-face kitchen / Barrier-free / 2-story / Double-glazing / Underfloor Storage / The window in the bathroom / TV monitor interphone / All living room flooring / Water filter フラット35Sに対応 /年内入居可 /駐車2台可 /南向き /システムキッチン /LDK15畳以上 /和室 /庭 /対面式キッチン /バリアフリー /2階建 /複層ガラス /床下収納 /浴室に窓 /TVモニタ付インターホン /全居室フローリング /浄水器 |
Price 価格 | | 17.8 million yen 1780万円 |
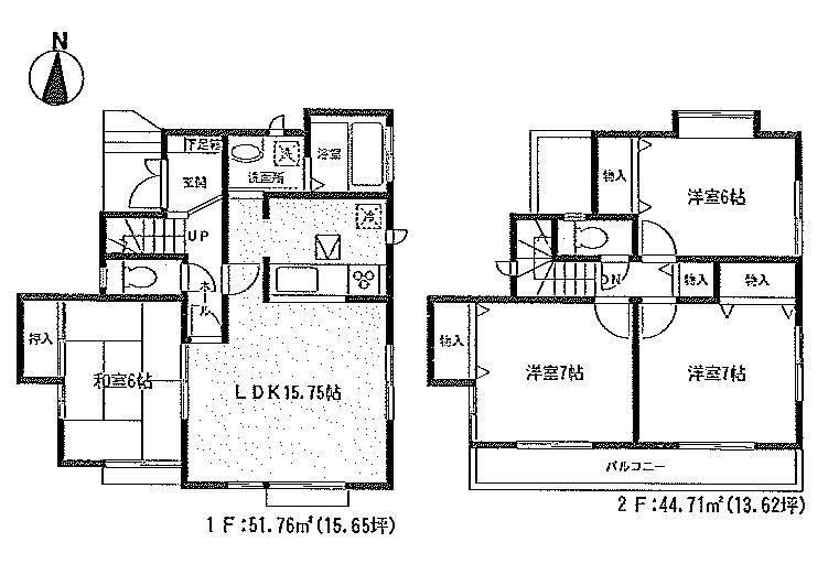
Floor plan 間取り | | 4LDK 4LDK |
Units sold 販売戸数 | | 1 units 1戸 |
Total units 総戸数 | | 1 units 1戸 |
Land area 土地面積 | | 115.61 sq m (registration) 115.61m2(登記) |
Building area 建物面積 | | 96.46 sq m (registration) 96.46m2(登記) |
Driveway burden-road 私道負担・道路 | | Nothing, North 11m width 無、北11m幅 |
Completion date 完成時期(築年月) | | July 2013 2013年7月 |
Address 住所 | | Miyagi Prefecture Watari-gun Watari-cho, Okumashimogori character through Bridge 宮城県亘理郡亘理町逢隈下郡字通橋 |
Traffic 交通 | | JR Joban Line "Okuma" walk 12 minutes JR Joban Line "Over" walk 50 minutes JR Tohoku Line "Iwanuma" walk 77 minutes JR常磐線「逢隈」歩12分JR常磐線「亘理」歩50分JR東北本線「岩沼」歩77分
|
Person in charge 担当者より | | [Regarding this property.] There is also detailed documentation. Please feel free to contact us. 【この物件について】詳しい資料もございます。お気軽にお問い合わせ下さい。 |
Contact お問い合せ先 | | TEL: 0800-603-2750 [Toll free] mobile phone ・ Also available from PHS Caller ID is not notified Please contact the "saw SUUMO (Sumo)" If it does not lead, If the real estate company TEL:0800-603-2750【通話料無料】携帯電話・PHSからもご利用いただけます 発信者番号は通知されません 「SUUMO(スーモ)を見た」と問い合わせください つながらない方、不動産会社の方は
|
Building coverage, floor area ratio 建ぺい率・容積率 | | 70% ・ 200% 70%・200% |
Time residents 入居時期 | | Consultation 相談 |
Land of the right form 土地の権利形態 | | Ownership 所有権 |
Structure and method of construction 構造・工法 | | Wooden 2-story 木造2階建 |
Construction 施工 | | (Ltd.) Idasangyo (株)飯田産業 |
Use district 用途地域 | | Unspecified 無指定 |
Overview and notices その他概要・特記事項 | | Facilities: Public Water Supply, This sewage, Centralized LPG, Building confirmation number: No. H24 confirmation architecture Token save 1087 No., Parking: car space 設備:公営水道、本下水、集中LPG、建築確認番号:第H24確認建築東建セー1087号、駐車場:カースペース |
Company profile 会社概要 | | <Mediation> Miyagi Governor (8) No. 002980 (Ltd.) Tomoe real estate Yubinbango980-0803 Sendai, Miyagi Prefecture, Aoba-ku, Kokubuncho 3-11-9 alpha office building 8th floor <仲介>宮城県知事(8)第002980号(株)トモエ不動産〒980-0803 宮城県仙台市青葉区国分町3-11-9 アルファオフィスビル8階 |