2014February
20.5 million yen, 4LDK, 103.5 sq m
New Homes » Tohoku » Miyagi Prefecture » Watari District
 
| | Miyagi Prefecture Watari-gun Watari-cho 宮城県亘理郡亘理町 |
| JR Joban Line "Over" walk 13 minutes JR常磐線「亘理」歩13分 |
Price 価格 | | 20.5 million yen 2050万円 | Floor plan 間取り | | 4LDK 4LDK | Units sold 販売戸数 | | 1 units 1戸 | Land area 土地面積 | | 191.6 sq m (measured) 191.6m2(実測) | Building area 建物面積 | | 103.5 sq m (measured) 103.5m2(実測) | Driveway burden-road 私道負担・道路 | | 34 sq m 34m2 | Completion date 完成時期(築年月) | | February 2014 2014年2月 | Address 住所 | | Miyagi Prefecture Watari-gun Watari-cho Kamihamakaido 宮城県亘理郡亘理町字上浜街道 | Traffic 交通 | | JR Joban Line "Over" walk 13 minutes JR常磐線「亘理」歩13分 | Contact お問い合せ先 | | TEL: 0800-600-1424 [Toll free] mobile phone ・ Also available from PHS Caller ID is not notified Please contact the "saw SUUMO (Sumo)" If it does not lead, If the real estate company TEL:0800-600-1424【通話料無料】携帯電話・PHSからもご利用いただけます 発信者番号は通知されません 「SUUMO(スーモ)を見た」と問い合わせください つながらない方、不動産会社の方は
| Building coverage, floor area ratio 建ぺい率・容積率 | | 60% ・ 200% 60%・200% | Time residents 入居時期 | | Consultation 相談 | Land of the right form 土地の権利形態 | | Ownership 所有権 | Structure and method of construction 構造・工法 | | Wooden 2-story 木造2階建 | Use district 用途地域 | | One middle and high 1種中高 | Overview and notices その他概要・特記事項 | | Facilities: Public Water Supply, This sewage, Individual LPG, Building confirmation number: No. 02971 設備:公営水道、本下水、個別LPG、建築確認番号:02971号 | Company profile 会社概要 | | <Mediation> Minister of Land, Infrastructure and Transport (3) No. 006183 Seongnam Construction Co., Ltd. Sendai Taebaek shop Yubinbango982-0034 Sendai, Miyagi Prefecture Taihaku Ku Nishitaga 5-15-1 <仲介>国土交通大臣(3)第006183号城南建設(株)仙台太白店〒982-0034 宮城県仙台市太白区西多賀5-15-1 |
Same specifications photo (kitchen)同仕様写真(キッチン)  Building construction cases (same specification kitchen of the construction company)
建物施工例(施工会社の同仕様キッチン)
Otherその他  Watari Elementary School 18 mins (about 1400m)
亘理小学校 徒歩18分(約1400m)
 Watari Junior High School Walk 25 minutes (about 2000m)
亘理中学校 徒歩25分(約2000m)
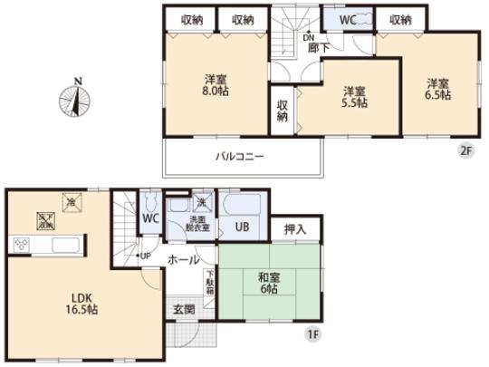
Floor plan間取り図  20.5 million yen, 4LDK, Land area 191.6 sq m , Building area 103.5 sq m floor plan
2050万円、4LDK、土地面積191.6m2、建物面積103.5m2 間取り図
Otherその他  Watari Station Walk 13 minutes (about 1040m)
亘理駅 徒歩13分(約1040m)
 Fashion Center Shimamura Watari shop Walk 23 minutes (about 1800m)
ファッションセンターしまむら 亘理店 徒歩23分(約1800m)
Location
|