New Homes » Kansai » Nara Prefecture » Ikoma
 
| | Nara Prefecture Ikoma 奈良県生駒市 |
| Kintetsu Nara Line "Ikoma" bus 7 minutes Kirigaoka 1-chome, walk 4 minutes 近鉄奈良線「生駒」バス7分喜里が丘1丁目歩4分 |
| The "day-to-day with a high-quality living" concept, Pleasure garden Mi, Town revitalization in green !! 1 / 3 (gold) ~ 5 days) ☆ New Year Special Events ~ There visitors Benefits. ~ ※ Please fill in the questionnaire on site. 『上質な暮らし方のある日常』をコンセプトに、庭を愉しみ、緑に潤う街!!1/3(金) ~ 5(日)☆お正月特別イベント ~ 来場特典あります。 ~ ※現地でアンケートご記入ください。 |
| Pleasure garden-free family of smile is full of town "Heart full Village Matsumidai common garden" this time Model house is we completed. Access to the city center is also good, In the city, which was born in the idea of communal garden = common garden, Why do not you consider the house? Gimmick 48 of only become happy at home magic live " During simultaneous public. ◆ Conditional land. There is also a free design possible partition. ◆ Ikoma's first During construction of the low-carbon housing! 庭を愉しむ家族の笑顔が溢れる街「ハートフルビレッジ松美台コモンガーデン」この度 モデルハウスが完成いたしました。都心へのアクセスも良好、共同庭園=コモンガーデンという発想で生まれた街で、あなたも住まいを考えてみませんか??日本中央住販が考える 住むだけでしあわせになる家魔法の仕掛け48” も同時公開中。◆条件付き土地。自由設計可能区画もあり。◆生駒市初 低炭素住宅を建築中! |
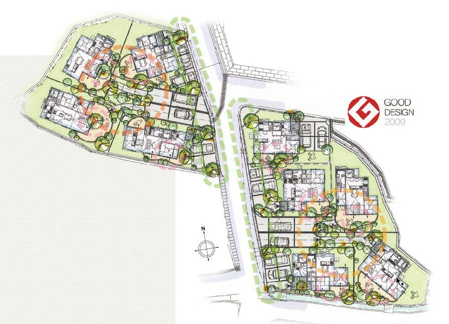
Local guide map 現地案内図 | | Local guide map 現地案内図 | Features pickup 特徴ピックアップ | | Eco-point target housing / Measures to conserve energy / Solar power system / Airtight high insulated houses / Year Available / Parking two Allowed / Energy-saving water heaters / See the mountain / System kitchen / All room storage / LDK15 tatami mats or more / Or more before road 6m / Japanese-style room / Washbasin with shower / Toilet 2 places / Bathroom 1 tsubo or more / 2-story / Double-glazing / Warm water washing toilet seat / The window in the bathroom / High-function toilet / Leafy residential area / Dish washing dryer / Walk-in closet / Water filter / Living stairs / All-electric / City gas / Floor heating エコポイント対象住宅 /省エネルギー対策 /太陽光発電システム /高気密高断熱住宅 /年内入居可 /駐車2台可 /省エネ給湯器 /山が見える /システムキッチン /全居室収納 /LDK15畳以上 /前道6m以上 /和室 /シャワー付洗面台 /トイレ2ヶ所 /浴室1坪以上 /2階建 /複層ガラス /温水洗浄便座 /浴室に窓 /高機能トイレ /緑豊かな住宅地 /食器洗乾燥機 /ウォークインクロゼット /浄水器 /リビング階段 /オール電化 /都市ガス /床暖房 | Event information イベント情報 | | Local tours (please make a reservation beforehand) schedule / January 3 (Friday) ・ January 4 (Saturday) ・ January 5 (Sunday) ・ January 11 (Saturday) ・ January 12 (Sunday) ・ January 13 (Monday) ・ January 25 (Saturday) ・ January 26 (Sunday) time / 10:00 ~ 17:00 ☆ 1 / 3 (gold) ~ 5 (Sunday) New Year special event ☆ ※ Please come heartful Village Ikoma to "Ichibu"! ! http: / / www.heartfull-village.jp / ichibu36 / access / Your participation We, We offer a gift and get questionnaire fill. Please stay tuned! ! ☆ 1 / 11 (Sat) ~ 13 (month) visitors reservation privilege ☆ Exciting gift bags to the customers who attended reservation ※ No, I will consider it as soon as the end. Please note. ※ When visitors, Please fill in the questionnaire. Two buildings the out you of certified low-carbon housing will be the first in Ikoma It will be born! ! ※ Certification and low-carbon housing ・ ・ ・ That of adopting the revised energy conservation standards of housing that meet the criteria of "low-carbon housing certification system.". Low-carbon housing certification system 2012, December 4, 2009, Low-carbon cities (CO2 emissions) is a certification system, which came into force for the purpose of. Certification requirements is the house that employs two or more of the required item 8. [Point-1] Some of the outside lounge new concept city block of all 9 compartment [Point-2] Adopt the exterior design of the Good Design Award [Point-3] Kintetsu Ikoma bus 7 minutes from the train station Location of a 4-minute walk from the bus stop [Point-4] Zentei solar power generation Eco-Town of standard specification ☆ Access Easy to Osaka ☆ ■ Kintetsu Nara Line "Ikoma" from the bus 7 minutes! "Kirigaoka 1-chome" bus stop walk 4 minutes! ■ Ikoma Station ~ Osaka to Namba 20 min ■ Ikoma Station ~ Hon up 28 minutes [Notice of winter vacation] 2013 December 25 (Wednesday) ~ January 5, 2014 (Sun) above-mentioned period will be carried out year-end and New Year holidays of winter vacation. With regard to your inquiry within the vacation period After business start, We will sequentially corresponding. Although it apologizes for inconvenience to customers, You continued your understanding thank you. 現地見学会(事前に必ず予約してください)日程/1月3日(金曜日)・1月4日(土曜日)・1月5日(日曜日)・1月11日(土曜日)・1月12日(日曜日)・1月13日(月曜日)・1月25日(土曜日)・1月26日(日曜日)時間/10:00 ~ 17:00☆1/3(金) ~ 5(日)お正月特別イベント☆※ハートフルビレッジ生駒「壱分」へお越し下さい!!http://www.heartfull-village.jp/ichibu36/access/ご参加いただき、アンケートご記入いただくとプレゼントをご用意しております。ご期待ください!!☆1/11(土) ~ 13(月)来場予約特典☆来場予約頂いたお客様へわくわく福袋をプレゼント※なくなり次第終了とさせて頂きます。ご了承ください。※来場の際、アンケートをご記入ください。生駒では初となる認定低炭素住宅のおうちを2棟 誕生します!!※認定低炭素住宅とは・・・改正省エネ基準を採用の「低炭素住宅認定制度」の基準を満たした住宅のこと。低炭素住宅認定制度は2012年12月4日、都市の低炭素化(CO2排出抑制)を目的に施行された認定制度です。認定要件は必要8項目のうち2つ以上採用した住宅です。[Point-1] アウトサイドラウンジのある全9区画の新発想街区[Point-2] グッドデザイン賞受賞のエクステリアデザインを採用[Point-3] 近鉄生駒駅よりバス7分 バス停より徒歩4分の立地[Point-4] 全邸ソーラー発電が標準仕様のエコタウン☆大阪へのアクセスラクラク☆■近鉄奈良線「生駒」よりバス7分!『喜里が丘1丁目』バス停歩4分!■生駒駅 ~ 大阪難波まで 20分 ■生駒駅 ~ 本町まで 28分【冬期休暇のお知らせ】2013年12月25日(水) ~ 2014年1月5日(日)上記期間は年末年始の冬期休暇を実施いたします。休暇期間内のお問い合わせにつきましては 業務開始後、順次対応させていただきます。お客様には大変ご迷惑おかけしますが、ご理解賜りますよう宜しくお願い申し上げます。 | Property name 物件名 | | Heart full Village Ikoma Matsumidai common garden «9 Family of the town >> 1 / 3 (gold) ~ 5 days) ☆ New Year Special Events ハートフルビレッジ生駒松美台コモンガーデン ≪9家族の街≫1/3(金) ~ 5(日)☆お正月特別イベント | Price 価格 | | 28,300,000 yen ~ 35 million yen land + building 2830万円 ~ 3500万円土地+建物 | Floor plan 間取り | | 4LDK 4LDK | Units sold 販売戸数 | | 3 units 3戸 | Total units 総戸数 | | 9 units 9戸 | Land area 土地面積 | | 168.44 sq m ~ 238.92 sq m (50.95 tsubo ~ 72.27 tsubo) (Registration) 168.44m2 ~ 238.92m2(50.95坪 ~ 72.27坪)(登記) | Building area 建物面積 | | 101.02 sq m ~ 101.85 sq m (30.55 tsubo ~ 30.80 square meters) 101.02m2 ~ 101.85m2(30.55坪 ~ 30.80坪) | Driveway burden-road 私道負担・道路 | | Road width: 6m 道路幅:6m | Completion date 完成時期(築年月) | | Mid-January 2014 2014年1月中旬予定 | Address 住所 | | Nara Prefecture Ikoma Tawaraguchi-cho, 171 奈良県生駒市俵口町171 | Traffic 交通 | | Kintetsu Nara Line "Ikoma" bus 7 minutes Kirigaoka 1-chome, walk 4 minutes 近鉄奈良線「生駒」バス7分喜里が丘1丁目歩4分
| Related links 関連リンク | | [Related Sites of this company] 【この会社の関連サイト】 | Contact お問い合せ先 | | Co., Ltd. Nippon center Ju販 Gakuenmae shop TEL: 0120-777130 [Toll free] Please contact the "saw SUUMO (Sumo)" (株)日本中央住販学園前店TEL:0120-777130【通話料無料】「SUUMO(スーモ)を見た」と問い合わせください | Building coverage, floor area ratio 建ぺい率・容積率 | | Kenpei rate: 40% ・ Fifty percent, Volume ratio: 60% ・ 80% 建ペい率:40%・50%、容積率:60%・80% | Time residents 入居時期 | | Three months after the contract 契約後3ヶ月 | Land of the right form 土地の権利形態 | | Ownership 所有権 | Use district 用途地域 | | One low-rise 1種低層 | Overview and notices その他概要・特記事項 | | Building confirmation number: 1917 No. If the first 12 confirmed construction goods 建築確認番号:第12確認建築財なら1917号 | Company profile 会社概要 | | <Seller> Minister of Land, Infrastructure and Transport (4) No. 005538 (Corporation) Kinki district Real Estate Fair Trade Council member Co., Ltd. Nippon center Ju販 Gakuenmae shop Yubinbango631-0044 Nara, Nara Prefecture Fujinokidai 4-6-20 <売主>国土交通大臣(4)第005538号(公社)近畿地区不動産公正取引協議会会員 (株)日本中央住販学園前店〒631-0044 奈良県奈良市藤ノ木台4-6-20 |
Cityscape Rendering街並完成予想図  I am the size of the premium style
わたしサイズのプレミアムスタイル
Kitchenキッチン ![Kitchen. [Terrace & Japanese-style room Integrated use of the spacious LDK] It is also attractive to feel the four seasons since missing the sight of the garden from the living room, I really feel an open an area more than size!](/images/nara/ikoma/18ae330161.jpg) [Terrace & Japanese-style room Integrated use of the spacious LDK] It is also attractive to feel the four seasons since missing the sight of the garden from the living room, I really feel an open an area more than size!
【テラス&和室 一体利用の広々LDK】リビングから庭への視界が抜けているから四季を感じられるのも魅力ですし、本当に開放的で面積以上の広さを感じます!
Balconyバルコニー ![Balcony. [Inner balcony] On the south-facing Sunny! ! Or dry the laundry, There is also sufficient breadth to enjoy the tea time at a table chair.](/images/nara/ikoma/18ae330167.jpg) [Inner balcony] On the south-facing Sunny! ! Or dry the laundry, There is also sufficient breadth to enjoy the tea time at a table chair.
【インナーバルコニー】南向きで 日当たり良好!!洗濯物を干したり、テーブルチェアを置いてティータイムを楽しめる広さも充分あります。
Local appearance photo現地外観写真 ![Local appearance photo. [Garden] The concept of this town "everyday there is a better quality of life.". Select the green kind, Also it has designed position! ! Since the design of the streets there is a chitin, The neighborhood's garden you can be borrowed landscape! !](/images/nara/ikoma/18ae330173.jpg) [Garden] The concept of this town "everyday there is a better quality of life.". Select the green kind, Also it has designed position! ! Since the design of the streets there is a chitin, The neighborhood's garden you can be borrowed landscape! !
【お庭】この街のコンセプト「上質な暮らし方がある日常」。緑の種類を選んで、位置も設計しています!!街並みのデザインがキチンとされているから、ご近所さんの庭を借景することができるんですよ!!
Receipt収納 ![Receipt. [Abundant storage space] The kitchen is next to Pantori - in the basin next to where you want a walk-in closet in the linen cabinet bedroom, Want storage. This, if clean at home the children there are many! !](/images/nara/ikoma/18ae330168.jpg) [Abundant storage space] The kitchen is next to Pantori - in the basin next to where you want a walk-in closet in the linen cabinet bedroom, Want storage. This, if clean at home the children there are many! !
【豊富な収納スペース】キッチン横にはパントリ―洗面横にはリネン庫寝室にはウォークインクローゼット欲しい所に、欲しい収納。子どもがたくさんいるご家庭でもこれならスッキリ!!
Livingリビング  Come overlooking from living on site Please enjoy the "atmosphere of common garden" !!
是非現地にてリビングから見渡す『コモンガーデンの雰囲気』をお楽しみください!!
 Local guide map
現地案内図
Cityscape Rendering街並完成予想図  9 family of the city
9家族の街
Floor plan間取り図  (No. 8 locations), Price 28,300,000 yen, 4LDK, Land area 213.28 sq m , Building area 101.02 sq m
(8号地)、価格2830万円、4LDK、土地面積213.28m2、建物面積101.02m2
 (No. 9 locations), Price 31,300,000 yen, 4LDK, Land area 238.92 sq m , Building area 101.85 sq m
(9号地)、価格3130万円、4LDK、土地面積238.92m2、建物面積101.85m2
Local appearance photo現地外観写真  Model house No. 8 locations
モデルハウス8号地
Local photos, including front road前面道路含む現地写真  State of Matsumidai side local
松美台側現地の様子
Local appearance photo現地外観写真  State of Matsumidai side local
松美台側現地の様子
Model house photoモデルハウス写真  Scheduled for completion in late January 2014
2014年1月下旬完成予定
Construction ・ Construction method ・ specification構造・工法・仕様  To support the structure in a face-to-face, Earthquake-proof ・ Fire resistance ・ Thermal insulation properties ・ durability ・ Design all in excellent method.
面と面で構造を支えるため、耐震性・耐火性・断熱性・耐久性・デザイン性すべてに優れた工法。
 In heat shield sheet obtained by depositing aluminum, Bounce out of the heat, Do not miss the indoor heat. "Cool in summer, Warm in winter. ", Thermos specification of house building.
アルミを蒸着させた遮熱シートで、外の熱を跳ね返し、室内の熱を逃さない。「夏は涼しく、冬暖かく」、まほうびん仕様の家づくり。
Cooling and heating ・ Air conditioning冷暖房・空調設備  Thermal insulation material Aqua form is foaming by the force of the water, People and nature, Environmentally Friendly, Standard adopted an innovative insulation system. Next-generation energy-saving standards = house yesterday Rating 4 grade = highest grade! ! Insulation performance suitable for the highest grade standards country stipulated. Airtight insulation material to improve the heating and cooling efficiency
断熱材アクアフォームは水の力で発泡する、人や自然、環境にやさしい、画期的な断熱システムを標準採用。次世代省エネ基準=住宅昨日評価4等級=最高等級!!国が定める基準の最高等級に適した断熱性能。冷暖房効率を高める高気密断熱材
Cityscape Rendering街並完成予想図  Diorama
ジオラマ
Shopping centreショッピングセンター  Until UNIQLO Ikoma shop 1256m ● business hours Weekday 11:00 ~ 20:00 / Saturdays, Sundays, and holidays 10:00 ~ 20:00
ユニクロ生駒店まで1256m ●営業時間 平日 :11:00 ~ 20:00/土日祝:10:00 ~ 20:00
Supermarketスーパー  1110m to business super ● business hours business hours 9:00 ~ 21:00
業務スーパーまで1110m ●営業時間 営業時間 9:00 ~ 21:00
 2002m until Super Isokawa new Ikoma shop ● Hours 9:00 ~ 21:00
スーパーいそかわ新生駒店まで2002m ●営業時間 9:00 ~ 21:00
Power generation ・ Hot water equipment発電・温水設備  Produce electricity from solar energy.
太陽エネルギーから電気をつくる。
 System visualization a home energy management system power usage and rates
ホームエネルギーマネジメントシステム電力利用量や料金を見える化したシステム
 Local guide map
現地案内図
Other Equipmentその他設備  Reflecting your heat of the sun ・ High thermal barrier insulation effect.
太陽のお熱を反射・遮熱断熱効果が高い。
 Help to save water by utilizing the rainwater.
雨水を活用して節水に役立てられる。
 Boasting a low power consumption (conventional ratio) and long life.
少ない消費電力(従来比)と長寿命を誇る。
The entire compartment Figure全体区画図  Installed outside lounge to all 9 compartments each mansion
全9区画各邸にアウトサイドラウンジを設置
Drug storeドラッグストア  Until Kirindo Ikoma shop 1309m ● business hours 10:00 ~ 21:45
キリン堂生駒店まで1309m ●営業時間 10:00 ~ 21:45
Home centerホームセンター  899m to home improvement Konan Ikoma shop ● Hours Month ~ Sat: 9:30 ~ 20:00 Day ・ Congratulation: 9:00 ~ 20:00
ホームセンターコーナン生駒店まで899m ●営業時間 月 ~ 土:9:30 ~ 20:00 日・祝:9:00 ~ 20:00
 Until Joshin Higashiikoma shop 1542m ● business hours Weekdays: 10:15 ~ 21:00 Saturdays, Sundays, and holidays 10:00 ~ 21:00
ジョーシン東生駒店まで1542m ●営業時間 平日:10:15 ~ 21:00 土日祝:10:00 ~ 21:00
Junior high school中学校  Ikoma City to stand Guangming junior high school 1607m 2012 years It seems to have celebrated its 30th anniversary.
生駒市立光明中学校まで1607m 2012年 創立30周年を迎えたそうです。
 Ikoma 1637m called "raw medium" to stand Ikoma Junior High School (go Tadashi)
生駒市立生駒中学校まで1637m 通称「生中」(いこちゅう)
Primary school小学校  Ikoma 811m commute comfortably to stand Ikomadai elementary school
生駒市立生駒台小学校まで811m 通学らくらく
Location
|