New Homes » Kansai » Nara Prefecture » Ikoma


Nara Prefecture Ikoma
Kintetsu Nara Line "Ikoma" walk 20 minutes
◆ Building set price 29,800,000 yen ◆ 10 / 12 (Sat) ~ 14 (Mon) local briefings ◆ Free design to fulfill your dream of! ~ There is also reference plan ~
◆ Also Easy parking possible person operation is weak in the previous road 4m ◆ Increase the conversation of family, Living stairs ◆ Car parking two possible.
Features pickup
See the mountain / A quiet residential area / Around traffic fewer / Home garden / Mu front building / City gas / Located on a hill / Building plan example there
Price
13.3 million yen
Building coverage, floor area ratio
Kenpei rate: 40%, Volume ratio: 60%
Sales compartment
2 compartment
Total number of compartments
5 compartment
Land area
155.94 sq m ~ 157.15 sq m (47.17 tsubo ~ 47.53 square meters)
Driveway burden-road
Road width: 6M, Asphaltic pavement
Land situation
Vacant lot
Address
Nara Prefecture Ikoma Nishimatsugaoka 25-6
Traffic
Kintetsu Nara Line "Ikoma" walk 20 minutes
Related links
[Related Sites of this company]
Contact
(Ltd.) Presto ・ Partners TEL: 06-6281-5800 Please contact as "saw SUUMO (Sumo)"
Expenses
Other expenses: outer groove costs
Land of the right form
Ownership
Building condition
With
Time delivery
Consultation
Land category
Residential land
Use district
One low-rise
Overview and notices
Facilities: Public Water Supply, This sewage, City gas
Company profile
<Marketing alliance (mediated)> governor of Osaka (3) No. 049975 (Ltd.) Presto ・ Partners Yubinbango541-0051 Chuo-ku, Osaka-shi, Bingo-cho 3-6-2 Taiga Building 9 floor


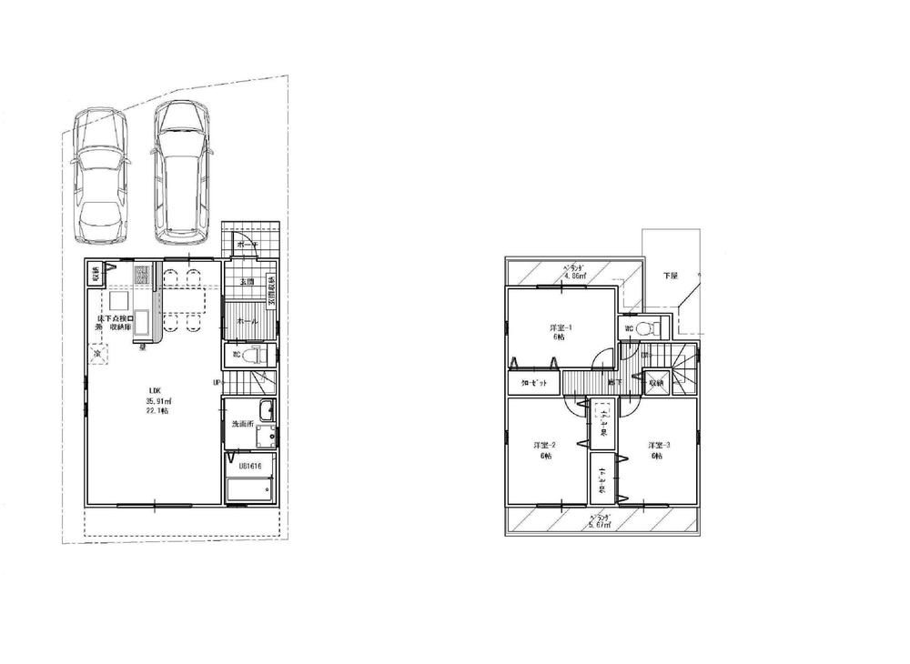
Compartment figure

Compartment figure. Land price 13.3 million yen, Land area 155.94 sq m
Land price 13.3 million yen, Land area 155.94 sq m

Shopping centre

Shopping centre. Kintetsu Department Store To Ikoma shop 1250m
Kintetsu Department Store To Ikoma shop 1250m

Supermarket

Supermarket. Nara until Coop 900m
Nara until Coop 900m

Primary school

Primary school. Ikoma Municipal Tawaraguchi 400m up to elementary school
Ikoma Municipal Tawaraguchi 400m up to elementary school

Junior high school

Junior high school. Ikoma Municipal Ikoma until junior high school 460m
Ikoma Municipal Ikoma until junior high school 460m



Location