New Homes » Kansai » Nara Prefecture » Ikoma
 
| | Nara Prefecture Ikoma 奈良県生駒市 |
| Kintetsu Nara Line "Ikoma" 8 minutes Matsumidai walk 2 minutes by bus 近鉄奈良線「生駒」バス8分松美台歩2分 |
| A house with a unique and open sense of taking advantage of the large site of 81 square meters You can enjoy the dream of my home, such as home gardening and dog run. 2-minute bus stop walk, Super and kindergartens elementary schools are within a 10-minute walk. 81坪の広い敷地を活かした個性的で開放感のある家 家庭菜園やドッグランなど夢のマイホームを楽しめます。バス停徒歩2分、スーパーや幼稚園小学校が徒歩10分圏内です。 |
Features pickup 特徴ピックアップ | | Parking two Allowed / 2 along the line more accessible / LDK20 tatami mats or more / Land 50 square meters or more / Energy-saving water heaters / Super close / System kitchen / Bathroom Dryer / A quiet residential area / Mist sauna / Washbasin with shower / Wide balcony / Toilet 2 places / Bathroom 1 tsubo or more / Double-glazing / Warm water washing toilet seat / Underfloor Storage / The window in the bathroom / Atrium / Dish washing dryer / Walk-in closet / City gas / Floor heating 駐車2台可 /2沿線以上利用可 /LDK20畳以上 /土地50坪以上 /省エネ給湯器 /スーパーが近い /システムキッチン /浴室乾燥機 /閑静な住宅地 /ミストサウナ /シャワー付洗面台 /ワイドバルコニー /トイレ2ヶ所 /浴室1坪以上 /複層ガラス /温水洗浄便座 /床下収納 /浴室に窓 /吹抜け /食器洗乾燥機 /ウォークインクロゼット /都市ガス /床暖房 | Property name 物件名 | | Ansoreie Matsumidai アンソレイエ松美台 | Price 価格 | | 33,800,000 yen 3380万円 | Floor plan 間取り | | 4LDK + S (storeroom) 4LDK+S(納戸) | Units sold 販売戸数 | | 1 units 1戸 | Total units 総戸数 | | 3 units 3戸 | Land area 土地面積 | | 268.8 sq m (81.31 tsubo) (Registration) 268.8m2(81.31坪)(登記) | Building area 建物面積 | | 123.75 sq m (37.43 tsubo) (Registration) 123.75m2(37.43坪)(登記) | Driveway burden-road 私道負担・道路 | | Nothing, Northeast 4.6m width 無、北東4.6m幅 | Completion date 完成時期(築年月) | | December 2013 2013年12月 | Address 住所 | | Nara Prefecture Ikoma Matsumidai 奈良県生駒市松美台 | Traffic 交通 | | Kintetsu Nara Line "Ikoma" 8 minutes Matsumidai walk 2 minutes by bus Kintetsu Keihanna line "Ikoma" 8 minutes Matsumidai walk 2 minutes by bus 近鉄奈良線「生駒」バス8分松美台歩2分 近鉄けいはんな線「生駒」バス8分松美台歩2分
| Related links 関連リンク | | [Related Sites of this company] 【この会社の関連サイト】 | Contact お問い合せ先 | | Umeoka housing TEL: 0800-805-6352 [Toll free] mobile phone ・ Also available from PHS Caller ID is not notified Please contact the "saw SUUMO (Sumo)" If it does not lead, If the real estate company 梅岡ハウジングTEL:0800-805-6352【通話料無料】携帯電話・PHSからもご利用いただけます 発信者番号は通知されません 「SUUMO(スーモ)を見た」と問い合わせください つながらない方、不動産会社の方は
| Building coverage, floor area ratio 建ぺい率・容積率 | | Fifty percent ・ 80% 50%・80% | Time residents 入居時期 | | Consultation 相談 | Land of the right form 土地の権利形態 | | Ownership 所有権 | Structure and method of construction 構造・工法 | | Wooden 2-story (framing method) 木造2階建(軸組工法) | Use district 用途地域 | | One low-rise 1種低層 | Overview and notices その他概要・特記事項 | | Facilities: Public Water Supply, This sewage, City gas, Parking: car space 設備:公営水道、本下水、都市ガス、駐車場:カースペース | Company profile 会社概要 | | <Seller> Nara Governor (6) No. 002661 (the Company), Nara Prefecture Building Lots and Buildings Transaction Business Association (Corporation) Kinki district Real Estate Fair Trade Council member Umeoka housing Yubinbango630-0251 Nara Prefecture Ikoma Tanida cho 889-9 <売主>奈良県知事(6)第002661号(社)奈良県宅地建物取引業協会会員 (公社)近畿地区不動産公正取引協議会加盟梅岡ハウジング〒630-0251 奈良県生駒市谷田町889-9 |
 It has placed a number of large windows on the south side, You can access the large garden
南側には大きな窓を多数配置しており、広い庭にアクセスできます
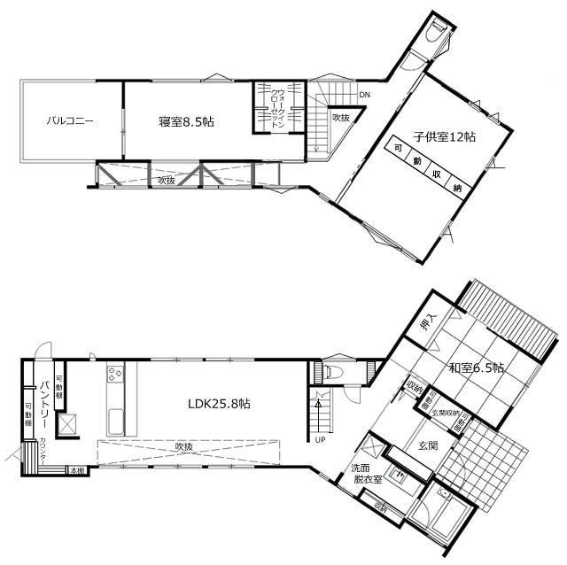
 33,800,000 yen, 4LDK + S (storeroom), Land area 268.8 sq m , Building area 123.75 sq m 4LDK + S (storeroom)
3380万円、4LDK+S(納戸)、土地面積268.8m2、建物面積123.75m2 4LDK+S(納戸)
Kitchenキッチン  Kitchens, Housework Corner ・ Also installation pantry
キッチンには、家事コーナー・パントリーも設置
Non-living roomリビング以外の居室  Distinctive children's room is how to take the window
窓の取り方が特徴的な子ども部屋
Other introspectionその他内観  Handrail iron custom-built stairs
手すりは鉄製の特注階段
Livingリビング  Ensure the lighting to provide a blow-by
吹抜けを設けて採光を確保
Local photos, including front road前面道路含む現地写真  Frontal road
前面道路
Bathroom浴室  A clean bathroom Mist sauna with bathroom heating dryer
清潔感のある浴室 ミストサウナ付浴室暖房乾燥機
Wash basin, toilet洗面台・洗面所  There is also a storage unification happy in white washroom
洗面所も白で統一 うれしい収納あり
Toiletトイレ  Clean with hand washing in the tankless toilet
タンクレストイレですっきり 手洗い付
Primary school小学校  Ikoma Municipal Ikomadai 400m up to elementary school
生駒市立生駒台小学校まで400m
Junior high school中学校  Ikoma 960m to stand Guangming Middle School
生駒市立光明中学校まで960m
Shopping centreショッピングセンター  Up to Hill step Ikoma 750m
ヒルステップ生駒まで750m
Kindergarten ・ Nursery幼稚園・保育園  Ikoma Municipal Ikomadai to kindergarten 550m
生駒市立生駒台幼稚園まで550m
Supermarketスーパー  300m to Japan
ジャパンまで300m
Hospital病院  750m until the medical corporation Kazuyuki Board Hanna Central Hospital
医療法人和幸会阪奈中央病院まで750m
Home centerホームセンター  Until Konan 960m
コーナンまで960m
Location
|