New Homes » Kansai » Nara Prefecture » Katsuragi City


Katsuragi City, Nara Prefecture
Kintetsu Minami-Osaka Line "Iwaki" walk 10 minutes
All 21 subdivisions of BIG Town! ! , Within a 10-minute walk station
Features pickup
Long-term high-quality housing / Pre-ground survey / Parking two Allowed / LDK18 tatami mats or more / See the mountain / Or more before road 6m / garden / Washbasin with shower / Security enhancement / Toilet 2 places / 2-story / Double-glazing / Warm water washing toilet seat / loft / TV monitor interphone / Leafy residential area / Ventilation good / Dish washing dryer / City gas / Attic storage / Floor heating / Development subdivision in
Event information
Local tours (Please be sure to ask in advance) schedule / Every Saturday, Sunday and public holidays time / 10:00 ~ 17:00
Price
25,800,000 yen
Floor plan
4LDK + S (storeroom)
Units sold
1 units
Total units
21 units
Land area
135.2 sq m (registration)
Building area
100 sq m (registration)
Driveway burden-road
Nothing, North 6m width, East 6m width
Completion date
4 months after the contract
Address
Katsuragi City, Nara Prefecture Takeuchi
Traffic
Kintetsu Minami-Osaka Line "Iwaki" walk 10 minutes
Related links
[Related Sites of this company]
Contact
(Ltd.) Daichi Real Estate TEL: 0120-666700 [Toll free] Please contact the "saw SUUMO (Sumo)"
Building coverage, floor area ratio
60% ・ 200%
Time residents
4 months after the contract
Land of the right form
Ownership
Structure and method of construction
Wooden 2-story (from L specification)
Use district
One dwelling, Urbanization control area
Overview and notices
Facilities: Public Water Supply, This sewage, City gas, Building Permits reason: land sale by the development permit, etc., Building confirmation number: 1288 No. in if the first 11 Construction goods, Parking: Garage
Company profile
<Seller> Nara Governor (4) No. 003264 (Ltd.) earth real estate Yubinbango639-2155 Katsuragi City, Nara Prefecture Takeuchi 393


Rendering (appearance)

Rendering (appearance). Same specifications photos (appearance)
Same specifications photos (appearance)

The entire compartment Figure

The entire compartment Figure. Compartment figure
Compartment figure

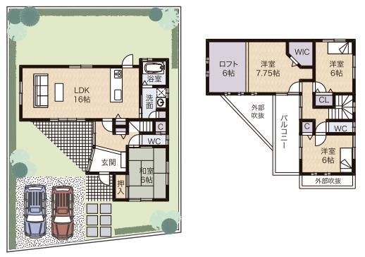
Floor plan

Floor plan. 25,800,000 yen, 4LDK + S (storeroom), Land area 135.2 sq m , Building area 100 sq m
25,800,000 yen, 4LDK + S (storeroom), Land area 135.2 sq m , Building area 100 sq m

Kitchen
Kitchen

Living

Living. Free Plan: Living
Free Plan: Living

Bathroom

Bathroom. System bus
System bus

Local photos, including front road
Local photos, including front road

Sale already cityscape photo
Sale already cityscape photo

Wash basin, toilet

Wash basin, toilet. Powder Room
Powder Room

Receipt

Receipt. Free Plan: warehouse storage
Free Plan: warehouse storage

Other Equipment
Other Equipment

Garden

Garden. patio
patio

Other

Other. pantry
pantry

Living

Living. Free Plan: Dining
Free Plan: Dining

Other

Other. Work space
Work space

Garden

Garden. patio
patio

Receipt

Receipt. Free Plan: Loft
Free Plan: Loft

Other

Other. Shutter shutters
Shutter shutters

Bathroom
Bathroom

Kitchen

Kitchen. Free Plan
Free Plan

Kitchen. Dishwasher
Dishwasher



Location