New Homes » Kansai » Nara Prefecture » Kitakatsuragi Koryo-cho


Nara Prefecture Kitakatsuragi Koryo-cho
Kintetsu Osaka line "Goido" walk 34 minutes
Features pickup
Parking two Allowed / System kitchen / Yang per good / All room storage / LDK15 tatami mats or more / Japanese-style room / Washbasin with shower / Face-to-face kitchen / Toilet 2 places / Bathroom 1 tsubo or more / Warm water washing toilet seat / Underfloor Storage / The window in the bathroom / Walk-in closet / All room 6 tatami mats or more
Price
25,300,000 yen
Floor plan
4LDK
Units sold
1 units
Total units
2 units
Land area
185.9 sq m (56.23 tsubo) (measured)
Building area
110.96 sq m (33.56 tsubo) (measured)
Driveway burden-road
Nothing, East 4.2m width (contact the road width 4.2m)
Completion date
4 months after the contract
Address
Nara Prefecture Kitakatsuragi Koryo-cho Oaza Hikiso 375-5
Traffic
Kintetsu Osaka line "Goido" walk 34 minutes
Kintetsu Osaka line "Goido" bus 6 minutes Umamiminami 6-chome, walk 10 minutes
Related links
[Related Sites of this company]
Contact
(Ltd.) Kida home sales TEL: 0745-23-8558 Please inquire as "saw SUUMO (Sumo)"
Building coverage, floor area ratio
Fifty percent ・ 150%
Time residents
4 months after the contract
Land of the right form
Ownership
Structure and method of construction
Wooden 2-story (framing method)
Construction
(Ltd.) Kida home sales
Use district
One middle and high
Other limitations
Residential land development construction regulation area
Overview and notices
Facilities: Public Water Supply, This sewage, Individual LPG, Building confirmation number: 1433 No. in if the first 12 confirmed construction goods, Parking: car space
Company profile
<Seller> Nara Governor (3) No. 003419 (Ltd.) Kida home sales Yubinbango635-0016 Nara Prefecture yamatotakada Daito-cho, 7-1


Same specifications photo (kitchen)

Same specifications photo (kitchen). The door colors you can choose from 45 colors.
The door colors you can choose from 45 colors.

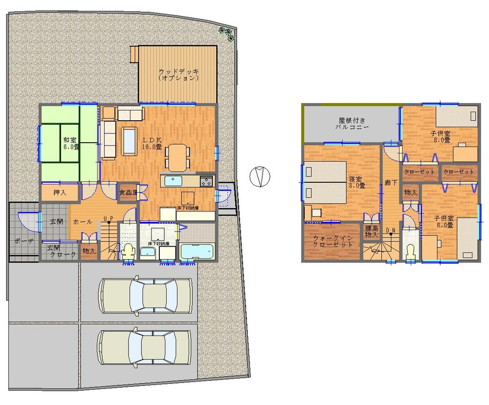
Floor plan

Floor plan. 25,300,000 yen, 4LDK, Land area 185.9 sq m , It is a building area of ​​110.96 sq m storage of large house.
25,300,000 yen, 4LDK, Land area 185.9 sq m , It is a building area of ​​110.96 sq m storage of large house.

Same specifications photo (bathroom)

Same specifications photo (bathroom). Since 1 pyeong size you can leisurely bath.
Since 1 pyeong size you can leisurely bath.

Receipt

Receipt. Installing the entrance Croke entrance
Installing the entrance Croke entrance

Balcony

Balcony. Peace of mind even on a rainy day on the balcony with a roof.
Peace of mind even on a rainy day on the balcony with a roof.

Receipt

Receipt. Plan the WIC is in the bedroom
Plan the WIC is in the bedroom



Location