|
|
Nara Prefecture Kitakatsuragi Oji-cho
奈良県北葛城郡王寺町
|
|
JR Kansai Main Line "Oji" walk 12 minutes
JR関西本線「王寺」歩12分
|
|
☆ 2 wayside Available (JR Kansai Main Line "Oji Station" a 12-minute walk ・ Kintetsu tawaramoto line "Shin'oji Station" a 13-minute walk) ☆ A quiet residential area ☆ It is with Panasonic earthquake resistant housing construction method technostructure of building conditions.
☆2沿線利用可(JR関西本線『王寺駅』徒歩12分・近鉄田原本線『新王寺駅』徒歩13分)☆閑静な住宅地☆パナソニック耐震住宅工法テクノストラクチャーの建築条件付きです。
|
Features pickup 特徴ピックアップ | | 2 along the line more accessible / A quiet residential area / City gas / Building plan example there 2沿線以上利用可 /閑静な住宅地 /都市ガス /建物プラン例有り |
Price 価格 | | 14.4 million yen 1440万円 |
Building coverage, floor area ratio 建ぺい率・容積率 | | 60% ・ 160% 60%・160% |
Sales compartment 販売区画数 | | 1 compartment 1区画 |
Total number of compartments 総区画数 | | 2 compartment 2区画 |
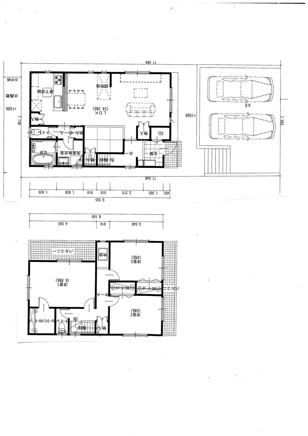
Land area 土地面積 | | 134.62 sq m (40.72 tsubo) (measured) 134.62m2(40.72坪)(実測) |
Driveway burden-road 私道負担・道路 | | Nothing, West 4m width (contact the road width 7.5m), East 4m width (contact the road width 7.5m) 無、西4m幅(接道幅7.5m)、東4m幅(接道幅7.5m) |
Land situation 土地状況 | | Vacant lot 更地 |
Address 住所 | | Nara Prefecture Kitakatsuragi Oji-cho, Katsushimo 1 奈良県北葛城郡王寺町葛下1 |
Traffic 交通 | | JR Kansai Main Line "Oji" walk 12 minutes Kintetsu tawaramoto line "Shin'oji" walk 13 minutes JR関西本線「王寺」歩12分 近鉄田原本線「新王寺」歩13分
|
Contact お問い合せ先 | | (Ltd.) Urban Kokita TEL: 0800-603-1584 [Toll free] mobile phone ・ Also available from PHS Caller ID is not notified Please contact the "saw SUUMO (Sumo)" If it does not lead, If the real estate company (株)アーバンコキタTEL:0800-603-1584【通話料無料】携帯電話・PHSからもご利用いただけます 発信者番号は通知されません 「SUUMO(スーモ)を見た」と問い合わせください つながらない方、不動産会社の方は
|
Land of the right form 土地の権利形態 | | Ownership 所有権 |
Building condition 建築条件 | | With 付 |
Time delivery 引き渡し時期 | | Consultation 相談 |
Land category 地目 | | Residential land 宅地 |
Use district 用途地域 | | One dwelling 1種住居 |
Other limitations その他制限事項 | | Regulations have by the Landscape Act, Height district, Contact road and the step Yes 景観法による規制有、高度地区、接道と段差有 |
Overview and notices その他概要・特記事項 | | Facilities: Public Water Supply, This sewage, City gas 設備:公営水道、本下水、都市ガス |
Company profile 会社概要 | | <Seller> governor of Osaka (6) No. 034208 (Ltd.) Urban Kokita Yubinbango570-0079 Osaka Moriguchi Kimushita cho 2-1-6 <売主>大阪府知事(6)第034208号(株)アーバンコキタ〒570-0079 大阪府守口市金下町2-1-6 |