New Homes » Chugoku » Okayama Prefecture » Akaiwa
 
| | Okayama Prefecture Akaiwa 岡山県赤磐市 |
| JR Sanyo Line "Seto" walk 5 minutes JR山陽本線「瀬戸」歩5分 |
| [Daiwa House] It stocks a wide variety of properties in the spacious grounds. 【ダイワハウス】ゆったりとした敷地に多種多様な物件を取り揃えております。 |
Features pickup 特徴ピックアップ | | Long-term high-quality housing / Vibration Control ・ Seismic isolation ・ Earthquake resistant / Parking three or more possible / Land 50 square meters or more / System kitchen / LDK15 tatami mats or more / Japanese-style room / 2-story / The window in the bathroom / Walk-in closet / All-electric 長期優良住宅 /制震・免震・耐震 /駐車3台以上可 /土地50坪以上 /システムキッチン /LDK15畳以上 /和室 /2階建 /浴室に窓 /ウォークインクロゼット /オール電化 | Price 価格 | | 28,900,000 yen ~ 36.5 million yen 2890万円 ~ 3650万円 | Floor plan 間取り | | 3LDK ~ 4LDK 3LDK ~ 4LDK | Units sold 販売戸数 | | 4 units 4戸 | Total units 総戸数 | | 8700 units 8700戸 | Land area 土地面積 | | 210.62 sq m ~ 510.83 sq m 210.62m2 ~ 510.83m2 | Building area 建物面積 | | 105.26 sq m ~ 124 sq m 105.26m2 ~ 124m2 | Completion date 完成時期(築年月) | | 2013 end of December schedule 2013年12月末予定 | Address 住所 | | Okayama Prefecture Akaiwa Sakuragaokanishi 5-5-27 岡山県赤磐市桜が丘西5-5-27他 | Traffic 交通 | | JR Sanyo Line "Seto" walk 5 minutes JR山陽本線「瀬戸」歩5分
| Related links 関連リンク | | [Related Sites of this company] 【この会社の関連サイト】 | Person in charge 担当者より | | Rep Kumiko Anzai 担当者安齋久美子 | Contact お問い合せ先 | | Daiwa House Industry Okayama branch Okayamahigashi housing office (regular holiday: fire ・ Water) TEL: 086-955-4477 Please inquire as "saw SUUMO (Sumo)" 大和ハウス工業 岡山支店 岡山東住宅営業所 (定休日:火・水)TEL:086-955-4477「SUUMO(スーモ)を見た」と問い合わせください | Expenses 諸費用 | | Other expenses: - その他諸費用:- | Building coverage, floor area ratio 建ぺい率・容積率 | | 50% Other ・ 100% Other 50%他・100%他 | Time residents 入居時期 | | 2013 end of December schedule 2013年12月末予定 | Land of the right form 土地の権利形態 | | Ownership 所有権 | Structure and method of construction 構造・工法 | | Light-gauge steel 2-story (1 units), Wooden 2-story (3 units) 軽量鉄骨2階建(1戸)、木造2階建(3戸) | Use district 用途地域 | | One low-rise 1種低層 | Land category 地目 | | Residential land 宅地 | Overview and notices その他概要・特記事項 | | Contact: Kumiko Anzai, Building confirmation number: ERI13044001 other 担当者:安齋久美子、建築確認番号:ERI13044001他 | Company profile 会社概要 | | [Advertiser] <Seller> Minister of Land, Infrastructure and Transport (14) No. 245 (company) Osaka realty business Association (Company) Real Estate Association Daiwa House Industry Co., Ltd. Yubinbango530-8241 Osaka Umeda 3-chome No. 3 No. 5 [Seller] Daiwa House Industry Co., Ltd. [Sale] Seller 【広告主】<売主>国土交通大臣(14)第245号(社)大阪府宅地建物取引業協会会員(社)不動産協会会員大和ハウス工業株式会社〒530-8241 大阪府大阪市梅田3丁目3番5号【売主】大和ハウス工業株式会社【販売】売主 |
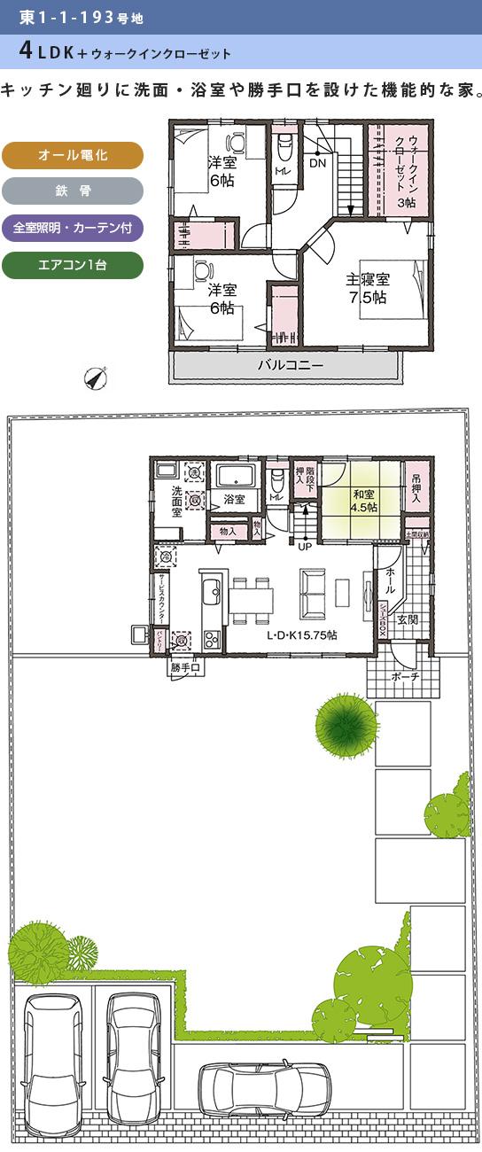
Floor plan間取り図 ![Floor plan. [West 5-5-27] So we have drawn on the basis of the Plan view] drawings, Plan and the outer structure ・ Planting, such as might actually differ slightly from. Also, furniture ・ Car, etc. are not included in the price.](/images/okayama/akaiwa/c9bf960007.jpg) [West 5-5-27] So we have drawn on the basis of the Plan view] drawings, Plan and the outer structure ・ Planting, such as might actually differ slightly from. Also, furniture ・ Car, etc. are not included in the price.
【西5-5-27】[プラン図] 図面を基に描いておりますので、プラン及び外構・植栽などは実際と多少異なる場合があります。 また、家具・車などは価格に含まれません。
![Floor plan. [Plan Diagram] Plan and the outer structure, so we have drawn on the basis of the drawings ・ Planting, such as might actually differ slightly from. Also, Although the dining table set is included in the price, car ・ Etc. Other furniture not included in the price.](/images/okayama/akaiwa/c9bf960008.jpg) [Plan Diagram] Plan and the outer structure, so we have drawn on the basis of the drawings ・ Planting, such as might actually differ slightly from. Also, Although the dining table set is included in the price, car ・ Etc. Other furniture not included in the price.
[プラン図] 図面を基に描いておりますのでプラン及び外構・植栽などは実際と多少異なる場合があります。 また、ダイニングテーブルセットは価格に含まれますが、車・その他の家具などは価格に含まれません。
![Floor plan. [Plan Diagram] Plan and the outer structure, so we have drawn on the basis of the drawings ・ Planting, such as might actually differ slightly from. Also, Although the dining table set is included in the price, car ・ Etc. Other furniture not included in the price.](/images/okayama/akaiwa/c9bf960009.jpg) [Plan Diagram] Plan and the outer structure, so we have drawn on the basis of the drawings ・ Planting, such as might actually differ slightly from. Also, Although the dining table set is included in the price, car ・ Etc. Other furniture not included in the price.
[プラン図] 図面を基に描いておりますのでプラン及び外構・植栽などは実際と多少異なる場合があります。 また、ダイニングテーブルセットは価格に含まれますが、車・その他の家具などは価格に含まれません。
![Floor plan. [Plan Diagram] Plan and the outer structure, so we have drawn on the basis of the drawings ・ Planting, such as might actually differ slightly from. Also, Although the dining table set is included in the price, car ・ Etc. Other furniture not included in the price.](/images/okayama/akaiwa/c9bf960012.jpg) [Plan Diagram] Plan and the outer structure, so we have drawn on the basis of the drawings ・ Planting, such as might actually differ slightly from. Also, Although the dining table set is included in the price, car ・ Etc. Other furniture not included in the price.
[プラン図] 図面を基に描いておりますのでプラン及び外構・植栽などは実際と多少異なる場合があります。 また、ダイニングテーブルセットは価格に含まれますが、車・その他の家具などは価格に含まれません。
Local guide map現地案内図  ※ Near the guide map
※付近案内図
Access view交通アクセス図  ※ Access view
※アクセス図
Location
|