New Homes » Chugoku » Okayama Prefecture » Kita-ku


Okayama, Okayama Prefecture, Kita-ku,
JR Kibi Line "Bizen Ichinomiya" walk 12 minutes
New ready-built 4 compartment in Ichinomiya (2014 January scheduled to be completed)
New ready-built 4 compartment in Ichinomiya (2014 January scheduled to be completed)
Features pickup
Parking two Allowed / System kitchen / Japanese-style room / Shaping land / Washbasin with shower / Toilet 2 places / 2-story / Flat terrain
Price
27,800,000 yen ~ 27,800,000 yen
Floor plan
4LDK
Units sold
4 units
Total units
4 units
Land area
133.01 sq m ~ 161.11 sq m (40.23 tsubo ~ 48.73 tsubo) (measured)
Building area
103.5 sq m ~ 105.98 sq m (31.30 tsubo ~ 32.05 tsubo) (measured)
Driveway burden-road
Road width: 4m, Asphaltic pavement
Completion date
January 2014 will
Address
Part of Okayama, Okayama Prefecture, Kita-ku, Ichinomiya 97-5
Traffic
JR Kibi Line "Bizen Ichinomiya" walk 12 minutes
Ryobibasu "Nakagawa Bridge" walk 2 minutes
Person in charge
The person in charge Ichikawa
Contact
(Ltd.) Fast land TEL: 086-242-5677 Please inquire as "saw SUUMO (Sumo)"
Most price range
27,800,000 yen
Building coverage, floor area ratio
Kenpei rate: 60%, Volume ratio: 200%
Time residents
Consultation
Land of the right form
Ownership
Structure and method of construction
Wooden 2-story (framing method)
Construction
One construction Co., Ltd.
Use district
Two dwellings
Land category
Residential land
Other limitations
Landscape district
Overview and notices
Contact: Ichikawa, Building confirmation number: H25 Okase 確建 1: No. 000451 2: No. 000452 3: No. 000453 4 No. 000454
Company profile
<Marketing alliance (agency)> Okayama Governor (2) Article 004 843 issue (Ltd.) Fast land Yubinbango700-0975 Okayama, Okayama Prefecture, Kita-ku, now 4-9-23


Rendering (appearance)

Rendering (appearance). (4 Building) Rendering
(4 Building) Rendering

Other

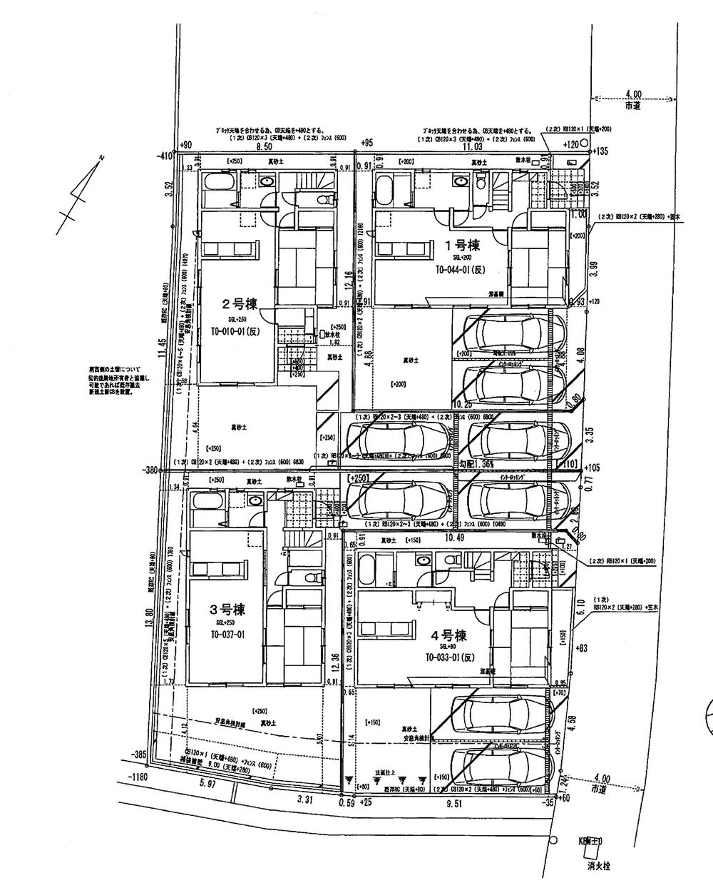
Other. Compartment figure
Compartment figure

Rendering (appearance)

Rendering (appearance). (3 Building) Rendering
(3 Building) Rendering

Rendering (appearance). (Building 2) Rendering
(Building 2) Rendering

Rendering (appearance). (1 Building) Rendering
(1 Building) Rendering



Location