|
|
Kurashiki, Okayama Prefecture
岡山県倉敷市
|
|
JR Sanyo Line "Shin Kurashiki" walk 25 minutes
JR山陽本線「新倉敷」歩25分
|
|
Dish washing dryer ・ TV interphone ・ Face-to-face kitchen ・ Also has been enhanced facilities, including hot water washing toilet seat.
食器洗乾燥機・TVインターホン・対面式キッチン・温水洗浄便座など設備も充実しています。
|
|
Also safe all-electric homes that because household requires no gas bill. Also effective utilization in front of the space in the triple wide IH. It is wife of housework is also a great help in with dish washing dryer.
オール電化住宅なのでガス代が要らず家計も安心。トリプルワイドIHで手前のスペースも有効活用。食器洗乾燥機付で奥様の家事も大助かりですね。
|
Features pickup 特徴ピックアップ | | Pre-ground survey / Vibration Control ・ Seismic isolation ・ Earthquake resistant / Year Available / Parking three or more possible / Land 50 square meters or more / See the mountain / Super close / Facing south / System kitchen / Bathroom Dryer / Yang per good / Flat to the station / A quiet residential area / Around traffic fewer / Corner lot / Idyll / Washbasin with shower / Face-to-face kitchen / Barrier-free / Toilet 2 places / Bathroom 1 tsubo or more / 2-story / 2 or more sides balcony / South balcony / Warm water washing toilet seat / Nantei / TV monitor interphone / Leafy residential area / Ventilation good / All living room flooring / IH cooking heater / Dish washing dryer / Walk-in closet / Living stairs / All-electric / Flat terrain 地盤調査済 /制震・免震・耐震 /年内入居可 /駐車3台以上可 /土地50坪以上 /山が見える /スーパーが近い /南向き /システムキッチン /浴室乾燥機 /陽当り良好 /駅まで平坦 /閑静な住宅地 /周辺交通量少なめ /角地 /田園風景 /シャワー付洗面台 /対面式キッチン /バリアフリー /トイレ2ヶ所 /浴室1坪以上 /2階建 /2面以上バルコニー /南面バルコニー /温水洗浄便座 /南庭 /TVモニタ付インターホン /緑豊かな住宅地 /通風良好 /全居室フローリング /IHクッキングヒーター /食器洗乾燥機 /ウォークインクロゼット /リビング階段 /オール電化 /平坦地 |
Price 価格 | | 32,800,000 yen 3280万円 |
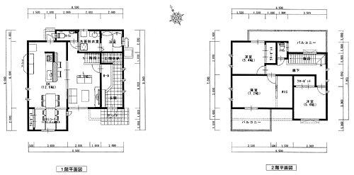
Floor plan 間取り | | 3LDK 3LDK |
Units sold 販売戸数 | | 1 units 1戸 |
Total units 総戸数 | | 1 units 1戸 |
Land area 土地面積 | | 168.34 sq m (50.92 tsubo) (Registration) 168.34m2(50.92坪)(登記) |
Building area 建物面積 | | 114.5 sq m (34.63 square meters) 114.5m2(34.63坪) |
Driveway burden-road 私道負担・道路 | | Nothing, East 4m width, North 5m width 無、東4m幅、北5m幅 |
Completion date 完成時期(築年月) | | August 2013 2013年8月 |
Address 住所 | | Kurashiki, Okayama Prefecture Tamashimauwanari 岡山県倉敷市玉島上成 |
Traffic 交通 | | JR Sanyo Line "Shin Kurashiki" walk 25 minutes JR Sanyo Line "Nishiachi" walk 70 minutes Mizushima seaside railway "Fukui" walk 78 minutes JR山陽本線「新倉敷」歩25分 JR山陽本線「西阿知」歩70分 水島臨海鉄道「福井」歩78分
|
Contact お問い合せ先 | | Kay ・ H. (Ltd.) TEL: 0800-603-2903 [Toll free] mobile phone ・ Also available from PHS Caller ID is not notified Please contact the "saw SUUMO (Sumo)" If it does not lead, If the real estate company ケイ・エイチ(株)TEL:0800-603-2903【通話料無料】携帯電話・PHSからもご利用いただけます 発信者番号は通知されません 「SUUMO(スーモ)を見た」と問い合わせください つながらない方、不動産会社の方は
|
Building coverage, floor area ratio 建ぺい率・容積率 | | Fifty percent ・ Hundred percent 50%・100% |
Time residents 入居時期 | | Consultation 相談 |
Land of the right form 土地の権利形態 | | Ownership 所有権 |
Structure and method of construction 構造・工法 | | Wooden 2-story (technostructure) 木造2階建(テクノストラクチャー) |
Use district 用途地域 | | One low-rise 1種低層 |
Overview and notices その他概要・特記事項 | | Parking: car space 駐車場:カースペース |
Company profile 会社概要 | | <Mediation> Okayama Governor (5) No. 004170 Kei ・ H. (Ltd.) Yubinbango710-0252 Kurashiki City, Okayama Prefecture Tamashimatsumasaki 450-3 <仲介>岡山県知事(5)第004170号ケイ・エイチ(株)〒710-0252 岡山県倉敷市玉島爪崎450-3 |