New Homes » Chugoku » Okayama Prefecture » Higashi-ku
 
| | Okayama, Okayama Prefecture, Higashi-ku, 岡山県岡山市東区 |
| JR Akō Line "Saidaiji" walk 10 minutes JR赤穂線「西大寺」歩10分 |
| Turnkey! Saidaiji 10-minute walk from the train station! Saidaiji Elementary School, Saidaiji junior high school 即入居可能!西大寺駅まで徒歩10分!西大寺小学校、西大寺中学校 |
| ■ Face-to-face kitchen, Living stairs, etc., LDK family leads. ■ Produce the brightness and sense of release windows and atrium of the south. ■ Kitchen next to the back door is, It helps you to access from the parking space. ■ Master bedroom with a south-facing wide balcony of. ■対面キッチン、リビング階段など、家族がつながるLDK。■南面の窓と吹き抜けが明るさと解放感を演出。■キッチン横の勝手口は、駐車スペースからのアクセスに役立ちます。■南向きのワイドなバルコニーのある主寝室。 |
Features pickup 特徴ピックアップ | | Construction housing performance with evaluation / Design house performance with evaluation / Long-term high-quality housing / Pre-ground survey / Vibration Control ・ Seismic isolation ・ Earthquake resistant / Parking two Allowed / Immediate Available / LDK20 tatami mats or more / Land 50 square meters or more / System kitchen / Bathroom Dryer / All room storage / A quiet residential area / Japanese-style room / Washbasin with shower / Face-to-face kitchen / Toilet 2 places / Bathroom 1 tsubo or more / 2-story / South balcony / Warm water washing toilet seat / Underfloor Storage / Atrium / TV monitor interphone / IH cooking heater / Dish washing dryer / Walk-in closet / Living stairs / All-electric / Flat terrain 建設住宅性能評価付 /設計住宅性能評価付 /長期優良住宅 /地盤調査済 /制震・免震・耐震 /駐車2台可 /即入居可 /LDK20畳以上 /土地50坪以上 /システムキッチン /浴室乾燥機 /全居室収納 /閑静な住宅地 /和室 /シャワー付洗面台 /対面式キッチン /トイレ2ヶ所 /浴室1坪以上 /2階建 /南面バルコニー /温水洗浄便座 /床下収納 /吹抜け /TVモニタ付インターホン /IHクッキングヒーター /食器洗乾燥機 /ウォークインクロゼット /リビング階段 /オール電化 /平坦地 | Price 価格 | | 34,530,000 yen 3453万円 | Floor plan 間取り | | 4LDK + 2S (storeroom) 4LDK+2S(納戸) | Units sold 販売戸数 | | 1 units 1戸 | Total units 総戸数 | | 4 units 4戸 | Land area 土地面積 | | 166.64 sq m 166.64m2 | Building area 建物面積 | | 113.63 sq m 113.63m2 | Driveway burden-road 私道負担・道路 | | Nothing, North 5.5m width 無、北5.5m幅 | Completion date 完成時期(築年月) | | May 2013 2013年5月 | Address 住所 | | Okayama, Okayama Prefecture, Higashi-ku, Saidaijinakano 岡山県岡山市東区西大寺中野 | Traffic 交通 | | JR Akō Line "Saidaiji" walk 10 minutes JR赤穂線「西大寺」歩10分
| Related links 関連リンク | | [Related Sites of this company] 【この会社の関連サイト】 | Person in charge 担当者より | | Person in charge of Hiroaki Yoshida 担当者吉田寛明 | Contact お問い合せ先 | | TEL: 0800-603-7123 [Toll free] mobile phone ・ Also available from PHS Caller ID is not notified Please contact the "saw SUUMO (Sumo)" If it does not lead, If the real estate company TEL:0800-603-7123【通話料無料】携帯電話・PHSからもご利用いただけます 発信者番号は通知されません 「SUUMO(スーモ)を見た」と問い合わせください つながらない方、不動産会社の方は
| Building coverage, floor area ratio 建ぺい率・容積率 | | 60% ・ 200% 60%・200% | Time residents 入居時期 | | Immediate available 即入居可 | Land of the right form 土地の権利形態 | | Ownership 所有権 | Structure and method of construction 構造・工法 | | Light-gauge steel 2-story (unit construction method) 軽量鉄骨2階建(ユニット工法) | Use district 用途地域 | | One middle and high 1種中高 | Other limitations その他制限事項 | | Regulations have by the Landscape Act 景観法による規制有 | Overview and notices その他概要・特記事項 | | Contact: Hiroaki Yoshida, Facilities: Public Water Supply, This sewage, All-electric, Building confirmation number: first ERI13004807, Parking: car space 担当者:吉田寛明、設備:公営水道、本下水、オール電化、建築確認番号:第ERI13004807、駐車場:カースペース | Company profile 会社概要 | | <Seller> Okayama Governor (7) No. 003227 No. Toyota Home Okayama Co., Ltd. Yubinbango701-1134 Okayama, Okayama Prefecture, Kita-ku, Sanwa 1000-45 <売主>岡山県知事(7)第003227号トヨタホーム岡山(株)〒701-1134 岡山県岡山市北区三和1000-45 |
Local appearance photo現地外観写真  Local (June 2013) Shooting
現地(2013年6月)撮影
Livingリビング  20.5 Pledge spacious living room Indoor (June 2013) Shooting
20.5帖の広々としたリビング 室内(2013年6月)撮影
Kitchenキッチン  Convenient back door to life Indoor (June 2013) Shooting
生活に便利な勝手口 室内(2013年6月)撮影
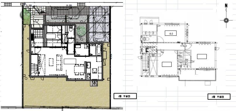
Floor plan間取り図  34,530,000 yen, 4LDK + 2S (storeroom), Land area 166.64 sq m , Building area 113.63 sq m floor plan
3453万円、4LDK+2S(納戸)、土地面積166.64m2、建物面積113.63m2 間取り図
Bathroom浴室  Friendly atmosphere in which the white tones Indoor (June 2013) Shooting
白色を基調としたやさしい雰囲気です 室内(2013年6月)撮影
Other introspectionその他内観  South of windows and atrium room (June 2013) Shooting
南面の窓と吹き抜け室内(2013年6月)撮影
Construction ・ Construction method ・ specification構造・工法・仕様  Toyota Home "seismic grade 3" ※ Strong earthquake-resistant structure to clear the. It has adopted the steel rigid frame structure which is also used in high-rise buildings. In experiments further with actual building, It has demonstrated the strength that does not collapse even in a large earthquake of seismic intensity 7.
トヨタホームは「耐震等級3」※をクリアする強靭な耐震構造。高層ビルにも採用されている鉄骨ラーメン構造を採用しています。さらに実際の建物を使った実験では、震度7の大地震でも倒壊しない強さを実証しています。
Otherその他  "Grade 4" of the highest rank in the performance display item of goods 確法 "thermal environment" ※ Toyota Home of thermal insulation performance to clear the criteria. Together with providing a comfortable living all year round, Also it has produced a significant effect on the reduction of heating and cooling costs. ※ Product ・
品確法の性能表示項目「温熱環境」において最高ランクの「等級4」※の基準をクリアするトヨタホームの断熱性能。一年中快適な暮らしを実現とともに、冷暖房コストの削減にも大きな効果を生み出しています。※商品・
 Toyota home in order to achieve a higher quality, We factory production 85% of the dwelling. Systematic production process, Extensive human resource development program, Inspection system, which extends to 250 items, By stacking of every single process, Bas
トヨタホームはより高い品質を実現するために、住まいの85%を工場生産しています。システム化された生産工程、充実した人材育成プログラム、250項目におよぶ検査体制、一つひとつのプロセスの積み重ねによって、バ
Location
|