New Homes » Chugoku » Okayama Prefecture » Kita-ku


Okayama, Okayama Prefecture, Kita-ku,
JR Sanyo Line "Kitanagase" walk 11 minutes
Near from the station, It is also a convenient access to the city! Nishi Elementary School, Gominami junior high school
It is close to the city, Urban neighborhood, Land 50 square meters or more, Siemens south road, Or more before road 6m, Development subdivision in, Yang per good, Flat to the station, A quiet residential area, Corner lot, Shaping land, Flat terrain
Features pickup
Land 50 square meters or more / It is close to the city / Yang per good / Flat to the station / Siemens south road / A quiet residential area / Or more before road 6m / Corner lot / Shaping land / Urban neighborhood / Flat terrain
Event information
Local guide Board (please make a reservation beforehand) schedule / During the public time / 10:00 ~ 17:00 For more information, Toyota Home Okayama Co., Ltd. Okayama housing exhibition hall 086-296-0550 Please feel free to contact us to.
Price
26,950,000 yen ~ 30,405,000 yen
Building coverage, floor area ratio
Building coverage: 60%, Volume ratio: 200%
Sales compartment
4 compartments
Total number of compartments
5 compartment
Land area
197.99 sq m ~ 201.04 sq m
Driveway burden-road
Complex north: 6m, South: 6m
Land situation
Vacant lot
Address
Okayama, Okayama Prefecture, Kita-ku, Nakasendo 2
Traffic
JR Sanyo Line "Kitanagase" walk 11 minutes
Related links
[Related Sites of this company]
Person in charge
Person in charge of Yoshida Hiroaki
Contact
TEL: 0800-603-7123 [Toll free] mobile phone ・ Also available from PHS
Caller ID is not notified
Please contact the "saw SUUMO (Sumo)"
If it does not lead, If the real estate company
Expenses
Other expenses: water and sewerage contributions: 350,000 yen, Boundary block fence contributions: Yes
Land of the right form
Ownership
Building condition
With
Land category
Rice field
Use district
One dwelling
Other limitations
Regulations have by the Landscape Act
Overview and notices
Contact: Yoshida Hiroaki, Facilities: water and sewerage
Company profile
<Mediation> Okayama Governor (7) No. 003227 No. Toyota Home Okayama Co., Ltd. Yubinbango701-1134 Okayama, Okayama Prefecture, Kita-ku, Sanwa 1000-45


Local photos, including front road

Local photos, including front road. Nakasendo No. 5 destination site (November 2013) Shooting
Nakasendo No. 5 destination site (November 2013) Shooting

Local land photo

Local land photo. Nakasendo No. 3 place Local (11 May 2013) Shooting
Nakasendo No. 3 place Local (11 May 2013) Shooting

Other

Other. For building housing that is not defeated in earthquake, We chose the "Steel ramen structure".
For building housing that is not defeated in earthquake, We chose the "Steel ramen structure".

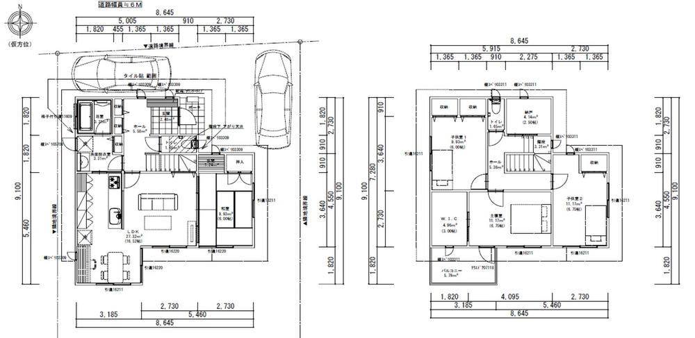
Other building plan example

Other building plan example. Nakasendo No. 3 place
Nakasendo No. 3 place

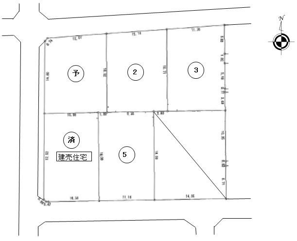
The entire compartment Figure

The entire compartment Figure. Compartment figure
Compartment figure

Station

station. Kitanagase Station Walk 12 minutes (940m)
Kitanagase Station Walk 12 minutes (940m)

Supermarket

Supermarket. Nishina Food Baskets Nakasendo shop A 5-minute walk (350m)
Nishina Food Baskets Nakasendo shop A 5-minute walk (350m)



Location