New Homes » Chugoku » Okayama Prefecture » Naka-ku
 
| | Okayama, Okayama Prefecture, Naka-ku, 岡山県岡山市中区 |
| JR Sanyo Line "Higashioka Mountain" walk 15 minutes JR山陽本線「東岡山」歩15分 |
| Local guide, Building plan consultation, We are being accepted at any time! Feel free to, Please contact us! The remaining 1 compartment Good location a corner lot! 現地案内、建物プラン相談、随時受け付け中です!お気軽に、お問い合わせ下さい!残り1区画 好立地な角地! |
| Land 50 square meters or more, Immediate delivery Allowed, See the mountain, Super close, It is close to the city, Yang per good, Flat to the station, Siemens south road, A quiet residential area, Or more before road 6m, Corner lot, Shaping land, Mu front building, City gas, Maintained sidewalk, Flat terrain, Development subdivision in 土地50坪以上、即引渡し可、山が見える、スーパーが近い、市街地が近い、陽当り良好、駅まで平坦、南側道路面す、閑静な住宅地、前道6m以上、角地、整形地、前面棟無、都市ガス、整備された歩道、平坦地、開発分譲地内 |
Features pickup 特徴ピックアップ | | Land 50 square meters or more / Immediate delivery Allowed / See the mountain / Super close / It is close to the city / Yang per good / Flat to the station / Siemens south road / A quiet residential area / Or more before road 6m / Corner lot / Shaping land / Mu front building / City gas / Maintained sidewalk / Flat terrain / Development subdivision in 土地50坪以上 /即引渡し可 /山が見える /スーパーが近い /市街地が近い /陽当り良好 /駅まで平坦 /南側道路面す /閑静な住宅地 /前道6m以上 /角地 /整形地 /前面棟無 /都市ガス /整備された歩道 /平坦地 /開発分譲地内 | Price 価格 | | 15,628,000 yen 1562万8000円 | Building coverage, floor area ratio 建ぺい率・容積率 | | Fifty percent ・ Hundred percent 50%・100% | Sales compartment 販売区画数 | | 1 compartment 1区画 | Total number of compartments 総区画数 | | 10 compartment 10区画 | Land area 土地面積 | | 204.15 sq m (61.75 tsubo) (measured) 204.15m2(61.75坪)(実測) | Driveway burden-road 私道負担・道路 | | Nothing, South 6m width, West 5.7m width 無、南6m幅、西5.7m幅 | Land situation 土地状況 | | Vacant lot 更地 | Address 住所 | | Okayama, Okayama Prefecture, Naka-ku, Omachi 360-1 岡山県岡山市中区雄町360-1 | Traffic 交通 | | JR Sanyo Line "Higashioka Mountain" walk 15 minutes Uno bus "Omachi" walk 4 minutes JR Sanyo Line "Takashima" walk 25 minutes JR山陽本線「東岡山」歩15分 宇野バス「雄町」歩4分JR山陽本線「高島」歩25分
| Related links 関連リンク | | [Related Sites of this company] 【この会社の関連サイト】 | Person in charge 担当者より | | [Regarding this property.] Corner lot facing south road Sunny! 【この物件について】南道路に面した角地 日当たり良好! | Contact お問い合せ先 | | TEL: 0800-603-3270 [Toll free] mobile phone ・ Also available from PHS Caller ID is not notified Please contact the "saw SUUMO (Sumo)" If it does not lead, If the real estate company TEL:0800-603-3270【通話料無料】携帯電話・PHSからもご利用いただけます 発信者番号は通知されません 「SUUMO(スーモ)を見た」と問い合わせください つながらない方、不動産会社の方は
| Land of the right form 土地の権利形態 | | Ownership 所有権 | Building condition 建築条件 | | With 付 | Time delivery 引き渡し時期 | | Immediate delivery allowed 即引渡し可 | Land category 地目 | | Residential land 宅地 | Use district 用途地域 | | One dwelling 1種住居 | Overview and notices その他概要・特記事項 | | Facilities: Public Water Supply, This sewage, City gas 設備:公営水道、本下水、都市ガス | Company profile 会社概要 | | <Seller> Minister of Land, Infrastructure and Transport (7) No. 003033 No. Ryobi Housing Corporation Yubinbango702-8032 Okayama, Okayama Prefecture Minami-ku Fukutominaka 1-3-7 <売主>国土交通大臣(7)第003033号両備住宅(株)〒702-8032 岡山県岡山市南区福富中1-3-7 |
Local land photo現地土地写真  Conditions of good corner lot!
条件の良い角地!
Local photos, including front road前面道路含む現地写真  Good day in the south road!
南道路で日当り良好!
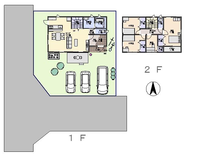
Other building plan exampleその他建物プラン例  Building plan example (E No. land) Building price 18,375,000 yen, Building area 114.00 sq m
建物プラン例(E号地)建物価格1837.5万円、建物面積114.00m2
Compartment figure区画図  Land price 15,628,000 yen, Land area 204.15 sq m quiet residential area!
土地価格1562万8000円、土地面積204.15m2 閑静な住宅地!
Local land photo現地土地写真  Rest compartment 1 compartment!
残り区画1区画!
Park公園  460m to wait Aqua Garden
おまちアクアガーデンまで460m
Local land photo現地土地写真  Conveniently located in shopping!
お買い物に便利な立地!
Location
|