2013April
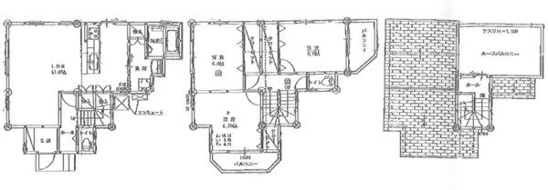
29,800,000 yen, 3LDK, 92.88 sq m
New Homes » Kansai » Osaka prefecture » Daito
 
| | Osaka Prefecture Daito 大阪府大東市 |
| JR katamachi line "Suminodo" walk 18 minutes JR片町線「住道」歩18分 |
Price 価格 | | 29,800,000 yen 2980万円 | Floor plan 間取り | | 3LDK 3LDK | Units sold 販売戸数 | | 1 units 1戸 | Land area 土地面積 | | 83.09 sq m 83.09m2 | Building area 建物面積 | | 92.88 sq m 92.88m2 | Driveway burden-road 私道負担・道路 | | Nothing, North 4.7m width (contact the road width 13m), East 4.7m width 無、北4.7m幅(接道幅13m)、東4.7m幅 | Completion date 完成時期(築年月) | | April 2013 2013年4月 | Address 住所 | | Osaka Prefecture Daito Fukano 2 大阪府大東市深野2 | Traffic 交通 | | JR katamachi line "Suminodo" walk 18 minutes JR片町線「住道」歩18分
| Related links 関連リンク | | [Related Sites of this company] 【この会社の関連サイト】 | Person in charge 担当者より | | [Regarding this property.] Roof balcony All-electric 【この物件について】ルーフバルコニー付 オール電化 | Contact お問い合せ先 | | TEL: 0800-601-0849 [Toll free] mobile phone ・ Also available from PHS Caller ID is not notified Please contact the "saw SUUMO (Sumo)" If it does not lead, If the real estate company TEL:0800-601-0849【通話料無料】携帯電話・PHSからもご利用いただけます 発信者番号は通知されません 「SUUMO(スーモ)を見た」と問い合わせください つながらない方、不動産会社の方は
| Building coverage, floor area ratio 建ぺい率・容積率 | | 70% ・ 200% 70%・200% | Time residents 入居時期 | | Consultation 相談 | Land of the right form 土地の権利形態 | | Ownership 所有権 | Structure and method of construction 構造・工法 | | Wooden 2-story 木造2階建 | Use district 用途地域 | | Two mid-high 2種中高 | Overview and notices その他概要・特記事項 | | Facilities: all-electric 設備:オール電化 | Company profile 会社概要 | | <Mediation> governor of Osaka (2) the first 053,245 No. Century 21 Smart Home Ltd. Yubinbango564-0063 Suita, Osaka Esaka-cho 3-17-9 <仲介>大阪府知事(2)第053245号センチュリー21スマートホーム(株)〒564-0063 大阪府吹田市江坂町3-17-9 |
 Local appearance photo
現地外観写真
Floor plan間取り図  29,800,000 yen, 3LDK, Land area 83.09 sq m , Building area 92.88 sq m
2980万円、3LDK、土地面積83.09m2、建物面積92.88m2
 Local appearance photo
現地外観写真
 Local appearance photo
現地外観写真
 Local appearance photo
現地外観写真
 Local appearance photo
現地外観写真
Location
|