New Homes » Kansai » Osaka prefecture » Daito


Osaka Prefecture Daito
JR katamachi line "Nozaki" walk 17 minutes
Solar power system, System kitchen, Bathroom Dryer, Yang per good, Toilet 2 places, 2-story
Features pickup
Solar power system / System kitchen / Bathroom Dryer / Yang per good / Toilet 2 places / 2-story
Price
21,800,000 yen
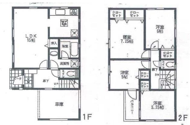
Floor plan
4LDK
Units sold
1 units
Total units
2 units
Land area
88.01 sq m (registration)
Building area
102.86 sq m (registration)
Driveway burden-road
Nothing, West 5.2m width
Completion date
October 2013
Address
Osaka Prefecture Daito Terakawa 4
Traffic
JR katamachi line "Nozaki" walk 17 minutes
JR katamachi line "Shijonawate" walk 29 minutes
JR katamachi line "Suminodo" walk 33 minutes
Contact
TEL: 0800-602-5732 [Toll free] mobile phone ・ Also available from PHS
Caller ID is not notified
Please contact the "saw SUUMO (Sumo)"
If it does not lead, If the real estate company
Building coverage, floor area ratio
60% ・ 200%
Time residents
Consultation
Land of the right form
Ownership
Structure and method of construction
Wooden 2-story
Overview and notices
Facilities: Public Water Supply, This sewage, City gas, Building confirmation number: No. H25SHC110915, Parking: Garage
Company profile
<Mediation> governor of Osaka Prefecture (1) the first 055,168 No. Tondahaimu Yubinbango571-0002 Osaka Prefecture Kadoma Kishiwada 2-10-29


Local appearance photo
Local appearance photo

Living
Living

Floor plan

Floor plan. 21,800,000 yen, 4LDK, Land area 88.01 sq m , Building area 102.86 sq m
21,800,000 yen, 4LDK, Land area 88.01 sq m , Building area 102.86 sq m

Local appearance photo
Local appearance photo

Bathroom
Bathroom

Kitchen
Kitchen

Non-living room
Non-living room

Entrance
Entrance

Wash basin, toilet
Wash basin, toilet

Receipt
Receipt

Toilet
Toilet

Balcony
Balcony

Other introspection
Other introspection

Other
Other

Bathroom
Bathroom

Kitchen
Kitchen

Non-living room
Non-living room

Receipt
Receipt

Other
Other

Bathroom
Bathroom

Local photos, including front road
Local photos, including front road

Parking lot
Parking lot

Convenience store
Convenience store



Location