New Homes » Kansai » Osaka prefecture » Daito
 
| | Osaka Prefecture Daito 大阪府大東市 |
| JR katamachi line "Shijonawate" walk 8 minutes JR片町線「四条畷」歩8分 |
| ◇ 2000 May scheduled for completion Newly built single-family ◇ with solar power residence ◇ station near commuting ・ It is convenient to go to school ◇平成12月完成予定 新築戸建◇太陽光発電付き住居◇駅近通勤・通学に便利です |
| ◇ with solar power house power-saving ・ It will save ◇ "JR Shijonawate" station It is an 8-minute walk commute ・ Very convenient ◇ living to go to school is a spacious 17 pledge is ◇ 2 floor of the popular all room Western-style ◇ located in the super neighborhood, Also to shopping convenient contact us feel free to ☆ → 0120-347-789 ◇太陽光発電付住宅節電・節約になります◇『JR四条畷』駅 徒歩8分です通勤・通学に大変便利◇リビングは広々17帖です◇2階部分人気の全居室洋室です◇スーパー近隣にあり、お買いものにも便利お問い合わせはお気軽に☆→0120-347-789 |
Features pickup 特徴ピックアップ | | Corresponding to the flat-35S / Solar power system / System kitchen / All room storage / A quiet residential area / LDK15 tatami mats or more / Japanese-style room / Washbasin with shower / Bathroom 1 tsubo or more / 2-story / South balcony / Underfloor Storage / The window in the bathroom / All room 6 tatami mats or more / City gas フラット35Sに対応 /太陽光発電システム /システムキッチン /全居室収納 /閑静な住宅地 /LDK15畳以上 /和室 /シャワー付洗面台 /浴室1坪以上 /2階建 /南面バルコニー /床下収納 /浴室に窓 /全居室6畳以上 /都市ガス | Price 価格 | | 25,800,000 yen 2580万円 | Floor plan 間取り | | 4LDK 4LDK | Units sold 販売戸数 | | 1 units 1戸 | Land area 土地面積 | | 92.48 sq m (27.97 tsubo) (Registration) 92.48m2(27.97坪)(登記) | Building area 建物面積 | | 93.96 sq m (28.42 tsubo) (Registration) 93.96m2(28.42坪)(登記) | Driveway burden-road 私道負担・道路 | | Nothing 無 | Completion date 完成時期(築年月) | | December 2013 2013年12月 | Address 住所 | | Osaka Prefecture Daito City Hojo 4 大阪府大東市北条4 | Traffic 交通 | | JR katamachi line "Shijonawate" walk 8 minutes JR katamachi line "Nozaki" walk 19 minutes JR katamachi line "Shinobukeoka" walk 28 minutes JR片町線「四条畷」歩8分 JR片町線「野崎」歩19分 JR片町線「忍ケ丘」歩28分
| Person in charge 担当者より | | Rep Chuwaki Takahiro 担当者中脇崇宏 | Contact お問い合せ先 | | TEL: 0800-808-7253 [Toll free] mobile phone ・ Also available from PHS Caller ID is not notified Please contact the "saw SUUMO (Sumo)" If it does not lead, If the real estate company TEL:0800-808-7253【通話料無料】携帯電話・PHSからもご利用いただけます 発信者番号は通知されません 「SUUMO(スーモ)を見た」と問い合わせください つながらない方、不動産会社の方は
| Building coverage, floor area ratio 建ぺい率・容積率 | | 60% ・ 200% 60%・200% | Time residents 入居時期 | | 4 months after the contract 契約後4ヶ月 | Land of the right form 土地の権利形態 | | Ownership 所有権 | Structure and method of construction 構造・工法 | | Wooden 2-story 木造2階建 | Use district 用途地域 | | One middle and high 1種中高 | Overview and notices その他概要・特記事項 | | Contact: Chuwaki Takahiro, Facilities: Public Water Supply, This sewage, City gas, Building confirmation number: kkkkk, Parking: No 担当者:中脇崇宏、設備:公営水道、本下水、都市ガス、建築確認番号:kkkkk、駐車場:無 | Company profile 会社概要 | | <Mediation> governor of Osaka Prefecture (1) No. 056319 (Ltd.) rack housing Yubinbango574-0033 Osaka Prefecture Daito Ogimachi 6-17 <仲介>大阪府知事(1)第056319号(株)ラックハウジング〒574-0033 大阪府大東市扇町6-17 |
Same specifications photos (appearance)同仕様写真(外観)  It is life convenient situated
生活至便な立地ですよ
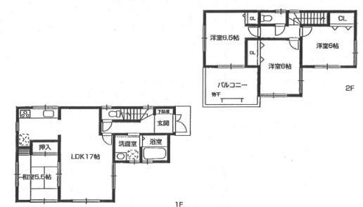
Floor plan間取り図  25,800,000 yen, 4LDK, Land area 92.48 sq m , Is a floor plan of the building area 93.96 sq m 2-story 4LDK
2580万円、4LDK、土地面積92.48m2、建物面積93.96m2 2階建4LDKの間取りです
Same specifications photos (Other introspection)同仕様写真(その他内観)  Spacious and easy-to-use kitchen
広々として使いやすいキッチン
Entrance玄関  This is useful because there are shoes BOX
シューズBOXがあるので便利です
Local photos, including front road前面道路含む現地写真  Local is
現地です
Same specifications photos (Other introspection)同仕様写真(その他内観)  Bright living room
明るいリビング
Otherその他  It is a good balcony per yang
陽当りのいいバルコニーです
 Entrance
玄関
 Local photos, including front road
前面道路含む現地写真
Same specifications photos (Other introspection)同仕様写真(その他内観)  It is calm Japanese-style room
落ち着いた和室です
 Nice wind as Western-style
風通りのいい洋室
 Plenty of storage
たっぷり収納
 There is also a storage space in the Japanese-style room
和室にも収納スペースあります
 Spacious bathtub
広々浴槽
 Bright washbasin
明るい洗面台
 Toilet with cleanliness
清潔感のあるトイレ
 Large, easy-to-use sync
大きくて使いやすいシンク
 You can cook a three-necked stove at the same time
三口コンロ同時に調理できます
Location
|