New Homes » Kansai » Osaka prefecture » Hannan


Osaka Prefecture Hannan
JR Hanwa Line "Izumitottori" walk 19 minutes
Commuting in 2wey access the JR Hanwa Line and "Izumitottori Station" Nankai Main Line to "Ozaki Station" ・ Worry mama in the 500m also to the convenient east Tottori elementary school to go to school
■ Land spacious of 42 square meters ~ 70 square meters of limited 18 compartment ■ Convenient 2wey access of the JR Hanwa Line and "Izumitottori Station" Nankai Main Line to "Ozaki Station" ■ Worry mama at 500m to the east Tottori elementary school
Features pickup
Corresponding to the flat-35S / Pre-ground survey / Parking two Allowed / Immediate Available / 2 along the line more accessible / Land 50 square meters or more / LDK18 tatami mats or more / Facing south / System kitchen / Bathroom Dryer / All room storage / Flat to the station / Siemens south road / Or more before road 6m / Japanese-style room / Washbasin with shower / Face-to-face kitchen / 3 face lighting / Barrier-free / Toilet 2 places / Bathroom 1 tsubo or more / 2-story / South balcony / Double-glazing / Warm water washing toilet seat / Underfloor Storage / The window in the bathroom / TV monitor interphone / Ventilation good / Dish washing dryer / Walk-in closet / All room 6 tatami mats or more / City gas / Storeroom / Flat terrain / Development subdivision in
Event information
Local tours (Please be sure to ask in advance) schedule / During the public time / 10:00 ~ 17:00 guests visit at any time. Please contact me to feel free to Kansai Home.
Property name
Kansai Home Town Jinenda
Price
23,900,000 yen ・ 28.6 million yen
Floor plan
4LDK + S (storeroom)
Units sold
2 units
Total units
18 units
Land area
159.79 sq m ・ 187.09 sq m (48.33 tsubo ・ 56.59 tsubo) (Registration)
Building area
118.41 sq m ・ 119.23 sq m (35.81 tsubo ・ 36.06 tsubo) (Registration)
Driveway burden-road
Road width: 4.7m ~ 7m, Asphaltic pavement
Completion date
2013 in late November
Address
Osaka Prefecture Hannan Jinenda 1477
Traffic
JR Hanwa Line "Izumitottori" walk 19 minutes
Nankai Main Line "Ozaki" walk 24 minutes
Related links
[Related Sites of this company]
Contact
TEL: 0800-603-2913 [Toll free] mobile phone ・ Also available from PHS
Caller ID is not notified
Please contact the "saw SUUMO (Sumo)"
If it does not lead, If the real estate company
Building coverage, floor area ratio
Kenpei rate: 60%, Volume ratio: 200%
Time residents
Immediate available
Land of the right form
Ownership
Structure and method of construction
Wooden 2-story (framing method)
Construction
Kansai Home Co., Ltd.
Use district
One dwelling
Land category
Residential land
Overview and notices
Building confirmation number: No. H25 confirmation building near Ken No. 0,001,818
Company profile
<Seller> governor of Osaka (4) The 045,528 No. Kansai Home Co., Ltd. Yubinbango598-0005 Izumisano, Osaka Prefecture Shijohigashi 2-1013-2 Kansai home building


No. 3 land model house.
No. 3 land model house.

Between the No. 3 destination floor plan. A shorter flow line of the water around is taken between easy to housework. Japanese-style room is convenient independent

Between the No. 3 destination floor plan. A shorter flow line of the water around is taken between easy to housework. Japanese-style room is convenient independent. Between the No. 3 destination floor plan.
Between the No. 3 destination floor plan.

Station

station. JR Hanwa Line ・ 1520m to Izumitottori Station
JR Hanwa Line ・ 1520m to Izumitottori Station

Junior high school

Junior high school. Tottorihigashi 1300m until junior high school
Tottorihigashi 1300m until junior high school

Primary school

Primary school. 500m to the east, Tottori elementary school
500m to the east, Tottori elementary school

The entire compartment Figure

The entire compartment Figure. Land 42 square meters ~ 70 square meters of all 18 compartments.
Land 42 square meters ~ 70 square meters of all 18 compartments.

Parking lot

Parking lot. Car 2 car parking spaces
Car 2 car parking spaces

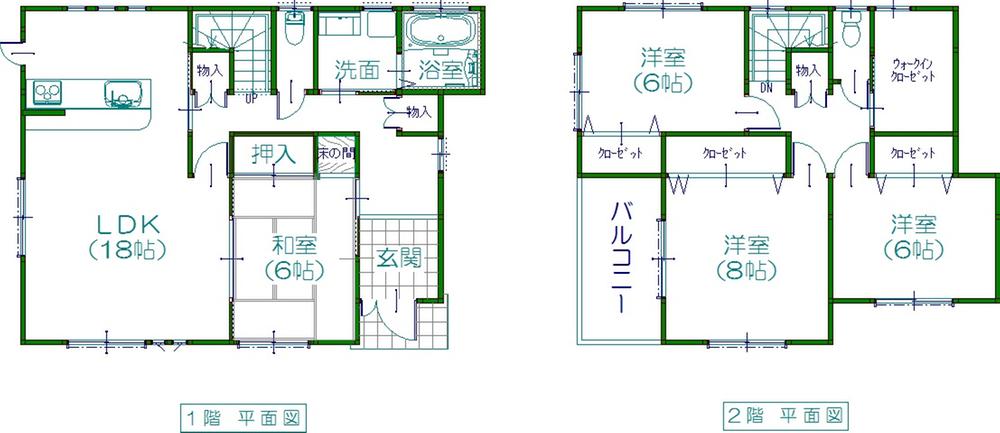
Floor plan

Floor plan. (No. 1 point), Price 28.6 million yen, 4LDK+S, Land area 159.79 sq m , Building area 119.23 sq m
(No. 1 point), Price 28.6 million yen, 4LDK+S, Land area 159.79 sq m , Building area 119.23 sq m

Construction ・ Construction method ・ specification

Construction ・ Construction method ・ specification. Ground survey of all of the site ・ Warranty request to a third-party organization. Earth strength of using, for example, Swedish sounding testing machine ・ Consider the ground measures carried out geological survey, Make the house of the foundation building in the exact method.
Ground survey of all of the site ・ Warranty request to a third-party organization. Earth strength of using, for example, Swedish sounding testing machine ・ Consider the ground measures carried out geological survey, Make the house of the foundation building in the exact method.

Construction ・ Construction method ・ specification. "Solid foundation" is earthquake-proof ・ High durability, To demonstrate the strength against rolling at the time of the earthquake to support and firmly the load of the building with thick concrete version. Also, It has achieved a solid foundation in a sturdy foundation, far exceeding the standard.
"Solid foundation" is earthquake-proof ・ High durability, To demonstrate the strength against rolling at the time of the earthquake to support and firmly the load of the building with thick concrete version. Also, It has achieved a solid foundation in a sturdy foundation, far exceeding the standard.

Construction ・ Construction method ・ specification. Glulam is have a 1.5 times or more the strength performance of solid wood heat and humidity, It is also said to be strong in, such as salt and acid rain. Also, All of the pillars 4 cun angle. Has a strong Akamatsu particular strength is in the beam.
Glulam is have a 1.5 times or more the strength performance of solid wood heat and humidity, It is also said to be strong in, such as salt and acid rain. Also, All of the pillars 4 cun angle. Has a strong Akamatsu particular strength is in the beam.

Construction ・ Construction method ・ specification. cold ・ Increased thermal insulation effect by adopting a multi-layer glass in the opening is the largest portal of entry of warm air, Comfort is up warm in winter, Summer will be able to keep a cool room temperature. Also, Double-glazing or reduce the condensation, Also effective in sound insulation.
cold ・ Increased thermal insulation effect by adopting a multi-layer glass in the opening is the largest portal of entry of warm air, Comfort is up warm in winter, Summer will be able to keep a cool room temperature. Also, Double-glazing or reduce the condensation, Also effective in sound insulation.

Construction ・ Construction method ・ specification. The outer wall material uses a durable ALC. Parry you very well the external force with a strong to lightly fire or heat enough to float on water to withstand external force in the event of a disaster in the feature. Also, Also it has excellent sound insulation because the reflection of sound is difficult through the big sound.
The outer wall material uses a durable ALC. Parry you very well the external force with a strong to lightly fire or heat enough to float on water to withstand external force in the event of a disaster in the feature. Also, Also it has excellent sound insulation because the reflection of sound is difficult through the big sound.

Construction ・ Construction method ・ specification. Adopting the cement tiles in tile. Not fazed in the wind and rain, Since the light to the strong shock you parry the earthquake. Also, Endurance is more than 20 years with a fluorine coating specification. A long period of time to maintain its quality.
Adopting the cement tiles in tile. Not fazed in the wind and rain, Since the light to the strong shock you parry the earthquake. Also, Endurance is more than 20 years with a fluorine coating specification. A long period of time to maintain its quality.

Other Equipment

Other Equipment. Housework efficiency Gun and UP in the easy-to-use system kitchen dishwasher is standard equipment
Housework efficiency Gun and UP in the easy-to-use system kitchen dishwasher is standard equipment

Other Equipment. Rear storage behind the kitchen. Will also come in handy as a space, such as Ready-To-Eat not only housing that put away the dishes.
Rear storage behind the kitchen. Will also come in handy as a space, such as Ready-To-Eat not only housing that put away the dishes.

Other Equipment. Spacious and can be used in a large vanity 90cm, You can also pat ventilation because the window. Since the free design can make even compartment that can be used as a linen cabinet.
Spacious and can be used in a large vanity 90cm, You can also pat ventilation because the window. Since the free design can make even compartment that can be used as a linen cabinet.

Local photos, including front road

Local photos, including front road. Local (12 May 2013) Shooting
Local (12 May 2013) Shooting

Other local

Other local. Local (12 May 2013) Shooting
Local (12 May 2013) Shooting

Kindergarten ・ Nursery

kindergarten ・ Nursery. Until Doggy nursery 627m
Until Doggy nursery 627m

Other Equipment

Other Equipment. Bathroom with a large window that ventilation is also easy to. Someone could heal daily fatigue.
Bathroom with a large window that ventilation is also easy to. Someone could heal daily fatigue.

Other Equipment. Toilet with convenient storage to put away the stock of cleaning tools and equipment. Also Katazuki refreshing narrow space.
Toilet with convenient storage to put away the stock of cleaning tools and equipment. Also Katazuki refreshing narrow space.

Other Equipment. Do not apply a coat that can make even storage space in front of the entrance because the free design, Or put the item of leisure, Using it is freely.
Do not apply a coat that can make even storage space in front of the entrance because the free design, Or put the item of leisure, Using it is freely.



Location