New Homes » Kansai » Osaka prefecture » Higashi-Osaka City


Osaka Prefecture Higashiosaka
JR Osaka Higashi Line "JR Nagase" walk 6 minutes
2 along the line more accessible, Facing south, System kitchen, Yang per good, 2-story
2 along the line more accessible, Facing south, System kitchen, Yang per good, 2-story
Features pickup
2 along the line more accessible / Facing south / System kitchen / Yang per good / 2-story
Price
25,800,000 yen
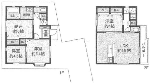
Floor plan
4LDK
Units sold
1 units
Land area
92.21 sq m (registration)
Building area
88.82 sq m (registration)
Driveway burden-road
Share interests 221 sq m × (1 / 8), South 4m width
Completion date
October 2012
Address
Osaka Prefecture Higashi Kashitahigashi cho
Traffic
JR Osaka Higashi Line "JR Nagase" walk 6 minutes
Kintetsu Osaka line "Nagase" walk 11 minutes
Kintetsu Osaka line "Mito" walk 18 minutes
Related links
[Related Sites of this company]
Person in charge
[Regarding this property.] Sunny second floor living in a space of rest spread or is newly built one detached How about. . .
Contact
TEL: 0800-601-0849 [Toll free] mobile phone ・ Also available from PHS
Caller ID is not notified
Please contact the "saw SUUMO (Sumo)"
If it does not lead, If the real estate company
Building coverage, floor area ratio
60% ・ 160%
Time residents
Consultation
Land of the right form
Ownership
Structure and method of construction
Wooden 2-story
Use district
One dwelling
Overview and notices
Facilities: Public Water Supply, This sewage, City gas, Parking: car space
Company profile
<Mediation> governor of Osaka (2) the first 053,245 No. Century 21 Smart Home Ltd. Yubinbango564-0063 Suita, Osaka Esaka-cho 3-17-9


Local appearance photo
Local appearance photo

Floor plan

Floor plan. 25,800,000 yen, 4LDK, Land area 92.21 sq m , Building area 88.82 sq m
25,800,000 yen, 4LDK, Land area 92.21 sq m , Building area 88.82 sq m

Kitchen
Kitchen

Bathroom
Bathroom

Non-living room

Non-living room. Receipt ・ Room building image
Receipt ・ Room building image

Entrance
Entrance

Toilet
Toilet



Location