New Homes » Kansai » Osaka prefecture » Higashi-Osaka City


Osaka Prefecture Higashiosaka
Kintetsu Keihanna line "New Ishikiri" walk 11 minutes
The land of the mature, The new town of all 39 households birth to Nakaishikiri! Model house published in!
Among the residential areas of Nakaishikiri, On the banks of the river sound was blessed with nature that fireflies inhabit, Fashionable city in which the "city cafe" concept "Dream House Nakaishikiri" is born. Or talked while sipping a mom friend and tea, Or a birthday party invited the children of your friends, We propose the living space, such as a cafe that can be relieved to such fun. ■ Peace of mind if they have this "Long-term high-quality housing." ■ House performance evaluation papers ■ Flat 35S Available ■ Charm house insurance
Local guide map
Local guide map
Features pickup
Construction housing performance with evaluation / Design house performance with evaluation / Measures to conserve energy / Long-term high-quality housing / Corresponding to the flat-35S / Airtight high insulated houses / Seismic fit / Parking two Allowed / 2 along the line more accessible / LDK18 tatami mats or more / Energy-saving water heaters / See the mountain / Super close / Facing south / System kitchen / Bathroom Dryer / Yang per good / All room storage / Siemens south road / A quiet residential area / LDK15 tatami mats or more / Around traffic fewer / Corner lot / Japanese-style room / Washbasin with shower / Face-to-face kitchen / Wide balcony / Barrier-free / Toilet 2 places / Bathroom 1 tsubo or more / 2-story / 2 or more sides balcony / South balcony / Double-glazing / Underfloor Storage / The window in the bathroom / TV monitor interphone / High-function toilet / Leafy residential area / Ventilation good / All living room flooring / Wood deck / Dish washing dryer / Or more ceiling height 2.5m / Living stairs / City gas / All rooms are two-sided lighting / Flat terrain / Development subdivision in
Event information
Model house schedule / Now open
Property name
Dream House Nakaishikiri
Price
29,800,000 yen ~ 42,830,000 yen
Floor plan
3LDK ・ 4LDK
Units sold
2 units
Land area
80.59 sq m ~ 126.6 sq m
Building area
85.95 sq m ~ 103.26 sq m
Driveway burden-road
Road District employees: 5.4m ~ 6.0m
Completion date
4 months after the contract
Address
Osaka Prefecture Higashi Nakaishikiri cho 2
Traffic
Kintetsu Keihanna line "New Ishikiri" walk 11 minutes
Kintetsu Nara Line "Ishikiri" walk 17 minutes
Related links
[Related Sites of this company]
Contact
Dream House (Ltd.) TEL: 0800-805-6375 [Toll free] mobile phone ・ Also available from PHS
Caller ID is not notified
Please contact the "saw SUUMO (Sumo)"
If it does not lead, If the real estate company
Building coverage, floor area ratio
Building coverage: 60%, Volume ratio: 200%
Time residents
4 months after the contract
Land of the right form
Ownership
Structure and method of construction
Wooden tile-roofing 2 stories
Use district
One middle and high
Overview and notices
Building confirmation number: No. H25 確更 architecture NDA 00106 other
Company profile
<Marketing alliance (agency)> governor of Osaka (2) the first 053,702 No. Dream House (Ltd.) Yubinbango577-0022 Osaka Higashi Aramotoshin cho 4-26 <employer ・ Seller> governor of Osaka (6) No. 041203 (company) Osaka Building Lots and Buildings Transaction Business Association (Corporation) Kinki district Real Estate Fair Trade Council member Osaka Home Sales Co., Ltd. Yubinbango577-0022 Osaka Higashi Aramotoshin cho 4-26


Cityscape Rendering

Cityscape Rendering. Dream House Nakaishikiri ・ The city of all 39 House.
Dream House Nakaishikiri ・ The city of all 39 House.

Local appearance photo

Local appearance photo. There is a park in the city wards, Parenting is also safe!
There is a park in the city wards, Parenting is also safe!

Cityscape Rendering

Cityscape Rendering. Considered in the mom eyes residence development that fulfill the dream of the "town cafe" style
Considered in the mom eyes residence development that fulfill the dream of the "town cafe" style

Cityscape Rendering. We hope the city that nurtures the firefly ...
We hope the city that nurtures the firefly ...

Local photos, including front road

Local photos, including front road. Local (September 2013) Shooting
Local (September 2013) Shooting

The entire compartment Figure

The entire compartment Figure. A large town with a park, Room full of house building of broad land. Educational facilities are also a familiar peace of mind.
A large town with a park, Room full of house building of broad land. Educational facilities are also a familiar peace of mind.

Other

Other. Ceiling with a niche and steps of the wall, Produce a nice relaxation.
Ceiling with a niche and steps of the wall, Produce a nice relaxation.

Kitchen

Kitchen. Clean the kitchen at any time Tsuite spice rack.
Clean the kitchen at any time Tsuite spice rack.

Other

Other. Model house appearance
Model house appearance

Living

Living. Decorative beams and Komado, Indirect lighting to produce a shade of deep carving space, Unique living.
Decorative beams and Komado, Indirect lighting to produce a shade of deep carving space, Unique living.

Other

Other. At the open feeling of the slope ceiling and loft, Children grow freely.
At the open feeling of the slope ceiling and loft, Children grow freely.

Other. Provided with a wall full of closet, Storage rich main bedroom. Luxurious relaxation sense of Oriage ceilings and indirect lighting.
Provided with a wall full of closet, Storage rich main bedroom. Luxurious relaxation sense of Oriage ceilings and indirect lighting.

Other. To the children's room, surrounded by chic wall and bright flooring, Plus a private balcony.
To the children's room, surrounded by chic wall and bright flooring, Plus a private balcony.

Local appearance photo

Local appearance photo. Also slightly cuteness in a calm atmosphere
Also slightly cuteness in a calm atmosphere

Living

Living. Stylish living space to direct the brick wall and the fold-up ceiling.
Stylish living space to direct the brick wall and the fold-up ceiling.

Local appearance photo

Local appearance photo. appearance
appearance

Other

Other. 4I No. land (reference plan)
4I No. land (reference plan)

Other. 4D No. land (reference plan)
4D No. land (reference plan)

Other. 4C No. land (reference plan)
4C No. land (reference plan)

Other. 1A No. land (reference plan)
1A No. land (reference plan)

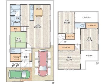
Floor plan

Floor plan. Dream House Nakaishikiri ・ The city of all 39 House.
Dream House Nakaishikiri ・ The city of all 39 House.

Kindergarten ・ Nursery

kindergarten ・ Nursery. Ishikiri 400m a 5-minute walk from the kindergarten
Ishikiri 400m a 5-minute walk from the kindergarten

kindergarten ・ Nursery. Blue sky until the nursery 520m 7-minute walk
Blue sky until the nursery 520m 7-minute walk

Primary school

Primary school. Ishikiri until elementary school 270m 4-minute walk
Ishikiri until elementary school 270m 4-minute walk

Local guide map
Local guide map

Junior high school

Junior high school. Ishikiri until junior high school 380m walk 5 minutes
Ishikiri until junior high school 380m walk 5 minutes

Supermarket

Supermarket. Super until fresh Museum 170m 3-minute walk
Super until fresh Museum 170m 3-minute walk

Post office

post office. Ishikiri 100m 2-minute walk to the post office
Ishikiri 100m 2-minute walk to the post office



Location