New Homes » Kansai » Osaka prefecture » Higashi-Osaka City


Osaka Prefecture Higashiosaka
Kintetsu Keihanna line "Yoshida" walk 1 minute
Town birth of all 17 compartments to Yoshida Station 1-minute walk! Two-story, All site area 100 sq m or more !!
Osaka Keihanna line "Yoshida" Kintetsu subway central line and stretches directly connected to the city center station - in this town full of potential as a residential area of ​​attention now, Just 60m from the station ・ To the convenience of the land that a 1-minute walk, Room of the single-family district Ward was born. "Dream House Yoshida Station" is, In this rare Station, On a scale that all 17 sections of the large site, Create a sophisticated cityscape. Dream House unique full freedom design system, "House development that dream come true," will begin in the family.
Local guide map
Local guide map
Features pickup
Construction housing performance with evaluation / Design house performance with evaluation / Measures to conserve energy / Long-term high-quality housing / Corresponding to the flat-35S / Airtight high insulated houses / Pre-ground survey / Seismic fit / Parking two Allowed / Energy-saving water heaters / It is close to the city / Facing south / System kitchen / Bathroom Dryer / Yang per good / All room storage / Flat to the station / A quiet residential area / LDK15 tatami mats or more / Or more before road 6m / Corner lot / Japanese-style room / Washbasin with shower / Face-to-face kitchen / Wide balcony / Barrier-free / Toilet 2 places / Bathroom 1 tsubo or more / 2-story / 2 or more sides balcony / Southeast direction / South balcony / Double-glazing / Warm water washing toilet seat / Underfloor Storage / The window in the bathroom / TV monitor interphone / High-function toilet / Ventilation good / Dish washing dryer / Walk-in closet / Or more ceiling height 2.5m / Living stairs / City gas / Maintained sidewalk / Flat terrain / Development subdivision in
Event information
Model house schedule / Now open
Property name
Dream House Yoshida Station
Price
37,600,000 yen ~ 47,800,000 yen
Floor plan
3LDK ~ 4LDK
Units sold
17 units
Total units
17 units
Land area
101.13 sq m ~ 175.24 sq m
Building area
92.57 sq m ~ 99.18 sq m
Driveway burden-road
No driveway burden, Road width: about 6.0m ~
Completion date
4 months after the contract
Address
Osaka Prefecture Higashi Yoshidahon cho 3
Traffic
Kintetsu Keihanna line "Yoshida" walk 1 minute
Related links
[Related Sites of this company]
Contact
Dream House (Ltd.) TEL: 0800-805-6375 [Toll free] mobile phone ・ Also available from PHS
Caller ID is not notified
Please contact the "saw SUUMO (Sumo)"
If it does not lead, If the real estate company
Building coverage, floor area ratio
Building coverage: 60%, Volume ratio: 200% ・ 300%
Time residents
4 months after the contract
Land of the right form
Ownership
Structure and method of construction
Wooden tile-roofing 2 stories
Use district
One dwelling, Quasi-residence
Overview and notices
Building confirmation number: No. H24 confirmation architecture NDA 04,093 other
Company profile
<Marketing alliance (agency)> governor of Osaka (2) the first 053,702 No. Dream House (Ltd.) Yubinbango577-0022 Osaka Higashi Aramotoshin cho 4-26 <employer ・ Seller> governor of Osaka (6) No. 041203 (company) Osaka Building Lots and Buildings Transaction Business Association (Corporation) Kinki district Real Estate Fair Trade Council member Osaka Home Sales Co., Ltd. Yubinbango577-0022 Osaka Higashi Aramotoshin cho 4-26


Rendering (appearance)

Rendering (appearance). According to your wish you can choose the appearance pattern.
According to your wish you can choose the appearance pattern.

Rendering (appearance)
Rendering (appearance)

The entire compartment Figure
The entire compartment Figure

Local guide map
Local guide map

Other

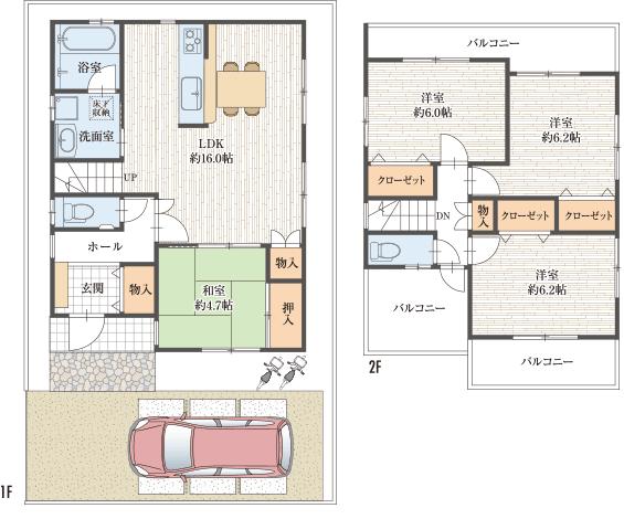
Other. Model house Reference Plan
Model house Reference Plan

Other. Reference Plan
Reference Plan

Living

Living. LDK
LDK

Living. LDK
LDK

Model house photo

Model house photo. appearance
appearance

Non-living room

Non-living room. Master bedroom
Master bedroom

Non-living room. Western style room
Western style room

Non-living room. Japanese style room
Japanese style room

Non-living room. Western style room
Western style room

Entrance
Entrance

Bathroom
Bathroom

Other

Other. Corridor
Corridor

Other. Reference Plan
Reference Plan

Other. Reference Plan
Reference Plan

Local photos, including front road

Local photos, including front road. Local (September 2013) Shooting
Local (September 2013) Shooting

Park

park. Until the end of the park Kitaike 470m walk about 6 minutes
Until the end of the park Kitaike 470m walk about 6 minutes

Supermarket

Supermarket. 530m walk about 7 minutes to Sandy Higashi Yoshida shop
530m walk about 7 minutes to Sandy Higashi Yoshida shop

Junior high school

Junior high school. Aida 1020m walk about 13 minutes until junior high school
Aida 1020m walk about 13 minutes until junior high school

Kindergarten ・ Nursery

kindergarten ・ Nursery. 800m walk about 10 minutes until the tin nursery
800m walk about 10 minutes until the tin nursery

Primary school

Primary school. Aidakita until elementary school 930m walk about 12 minutes
Aidakita until elementary school 930m walk about 12 minutes

Access view
Access view



Location