2014December
31,800,000 yen, 3LDK, 89.51 sq m
New Homes » Kansai » Osaka prefecture » Higashi-Osaka City

| | Osaka Prefecture Higashiosaka 大阪府東大阪市 |
| Kintetsu Nara Line "Ishikiri" walk 10 minutes 近鉄奈良線「石切」歩10分 |
| Car two parking OK! All room is a 6-quires more Higashiishikiri park near 車2台駐車OK!全居室6帖以上東石切公園近くです |
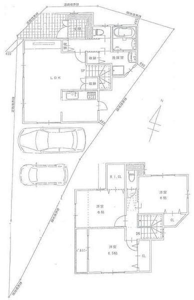
Features pickup 特徴ピックアップ | | 2-story / City gas 2階建 /都市ガス | Price 価格 | | 31,800,000 yen 3180万円 | Floor plan 間取り | | 3LDK 3LDK | Units sold 販売戸数 | | 1 units 1戸 | Land area 土地面積 | | 108.17 sq m (registration) 108.17m2(登記) | Building area 建物面積 | | 89.51 sq m 89.51m2 | Driveway burden-road 私道負担・道路 | | Nothing, West 4.7m width 無、西4.7m幅 | Completion date 完成時期(築年月) | | December 2014 2014年12月 | Address 住所 | | Osaka Prefecture Higashi Higashiishikiri cho 3 大阪府東大阪市東石切町3 | Traffic 交通 | | Kintetsu Nara Line "Ishikiri" walk 10 minutes 近鉄奈良線「石切」歩10分
| Related links 関連リンク | | [Related Sites of this company] 【この会社の関連サイト】 | Contact お問い合せ先 | | TEL: 0800-603-3824 [Toll free] mobile phone ・ Also available from PHS Caller ID is not notified Please contact the "saw SUUMO (Sumo)" If it does not lead, If the real estate company TEL:0800-603-3824【通話料無料】携帯電話・PHSからもご利用いただけます 発信者番号は通知されません 「SUUMO(スーモ)を見た」と問い合わせください つながらない方、不動産会社の方は
| Building coverage, floor area ratio 建ぺい率・容積率 | | 60% ・ 200% 60%・200% | Time residents 入居時期 | | Consultation 相談 | Land of the right form 土地の権利形態 | | Ownership 所有権 | Structure and method of construction 構造・工法 | | Wooden 2-story 木造2階建 | Use district 用途地域 | | One middle and high 1種中高 | Overview and notices その他概要・特記事項 | | Facilities: Public Water Supply, This sewage, City gas, Building confirmation number: not construction 設備:公営水道、本下水、都市ガス、建築確認番号:未着工 | Company profile 会社概要 | | <Mediation> governor of Osaka (2) the first 049,865 No. Century 21 (Ltd.) Real Estate Information Center Yubinbango579-8047 Osaka Higashi Sakuramachi 7-11 <仲介>大阪府知事(2)第049865号センチュリー21(株)不動産情報館〒579-8047 大阪府東大阪市桜町7-11 |
Floor plan間取り図  31,800,000 yen, 3LDK, Land area 108.17 sq m , Building area 89.51 sq m
3180万円、3LDK、土地面積108.17m2、建物面積89.51m2
Location
|