New Homes » Kansai » Osaka prefecture » Higashi-Osaka City


Osaka Prefecture Higashiosaka
Kintetsu Nara Line "single Oka" walk 8 minutes
Kintetsu sheets Oka Station 8 min. Walk, Elementary and junior high school near the prime location! Installing a solar power generation system using the power of the sun! 6 Pledge over each room, Balcony spacious leisurely 4LDK!
«Higashi Hakodono cho Newly built single-family houses » ■ Recommended point ○ solar power house ○ 10-year building warranty ■ Luxuries ○ system kitchen (quiet sink, Artificial marble top plate, Water purification function with faucet, Full slide) ○ unit bus (bathroom heating dryer) ○ Low-e pair glass, Electrical locking smart control keys, EV for outdoor electrical outlet ○ with color monitor intercom ■ Surrounding environment A 5-minute walk from the ○ sheets Okanishi elementary school ○ Maioka a 2-minute walk from the junior high school
Price
25,800,000 yen
Floor plan
4LDK
Units sold
1 units
Total units
1 units
Land area
98.08 sq m
Building area
95.58 sq m
Driveway burden-road
Nothing, South 3.1m width
Completion date
October 2013
Address
Osaka Prefecture Higashi Hakodono cho
Traffic
Kintetsu Nara Line "single Oka" walk 8 minutes
Kintetsu Nara Line "Nukata" walk 13 minutes
Kintetsu Keihanna line "New Ishikiri" walk 19 minutes
Related links
[Related Sites of this company]
Contact
TEL: 0120199-213 [Toll free] Please contact the "saw SUUMO (Sumo)"
Event information
☆ Preview at any time Wanted ☆ It is possible your preview in the combined time to the customer's wish. (Please contact us beforehand) For more details, toll-free 0120-199-213 We look forward to the staff concentric.
Building coverage, floor area ratio
60% ・ 200%
Time residents
Consultation
Land of the right form
Ownership
Structure and method of construction
Wooden 2-story
Use district
One dwelling
Overview and notices
Facilities: Public Water Supply, This sewage, City gas, Building confirmation number: No. Trust 13-1668, Parking: car space
Company profile
<Mediation> governor of Osaka Prefecture (1) No. 055018 (Ltd.) Seiki Corporation Yubinbango577-0036 Osaka Higashi Mikuriyasakae cho 1-2-4


Power generation ・ Hot water equipment

Power generation ・ Hot water equipment. By installed solar cells on the building's roof, And power generation is converted directly into electricity the energy of sunlight.  [Image]
By installed solar cells on the building's roof, And power generation is converted directly into electricity the energy of sunlight. [Image]

Rendering (appearance)

Rendering (appearance). Solar power generation systems, etc., Standard equipment of high quality to achieve a functional and comfortable space. Station is near, Commute ・ School is very convenient and comfortable.  [Complete image Perth]
Solar power generation systems, etc., Standard equipment of high quality to achieve a functional and comfortable space. Station is near, Commute ・ School is very convenient and comfortable. [Complete image Perth]

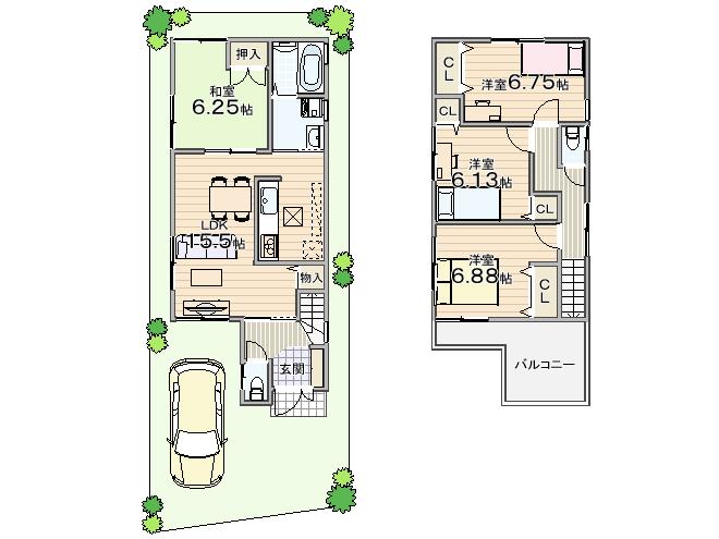
Floor plan

Floor plan. 25,800,000 yen, 4LDK, Land area 98.08 sq m , Building area 95.58 sq m
25,800,000 yen, 4LDK, Land area 98.08 sq m , Building area 95.58 sq m

Living

Living. LDK where you can enjoy plenty of sunshine, In the space of relaxation family gather.  [Other construction site]
LDK where you can enjoy plenty of sunshine, In the space of relaxation family gather. [Other construction site]

Kitchen

Kitchen. Face-to-face kitchen that can happily housework while taking your family and communication.  [Other construction site]
Face-to-face kitchen that can happily housework while taking your family and communication. [Other construction site]

Bathroom

Bathroom. To achieve the bath is comfort that useful functions have been equipped.  [Other construction site]
To achieve the bath is comfort that useful functions have been equipped. [Other construction site]

Same specifications photos (Other introspection)

Same specifications photos (Other introspection). Drawing room is whenese-style room that can be used, such as the bedroom is when.  [Other construction site]
Drawing room is whenese-style room that can be used, such as the bedroom is when. [Other construction site]

Same specifications photos (Other introspection). This house in consideration of the comfort, such as all Western-style 6 quires more.  [Other construction site]
This house in consideration of the comfort, such as all Western-style 6 quires more. [Other construction site]

Wash basin, toilet

Wash basin, toilet. Vanity is vanity that combines the functionality of.  [Other construction site]
Vanity is vanity that combines the functionality of. [Other construction site]

Toilet

Toilet. So as not to overlap with toilet in the morning of the busy time zone, Yes installed on the first floor and the second floor.  [Other construction site]
So as not to overlap with toilet in the morning of the busy time zone, Yes installed on the first floor and the second floor. [Other construction site]

Security equipment

Security equipment. Entrance door you use every day, Equipped with a smart control key with worry for simple operation.  [Image]
Entrance door you use every day, Equipped with a smart control key with worry for simple operation. [Image]

Other Equipment

Other Equipment. If the outdoor EV charging outlet, It can be charged at home without going to the petrol station.  [Other construction site]
If the outdoor EV charging outlet, It can be charged at home without going to the petrol station. [Other construction site]

Local appearance photo

Local appearance photo. Support the building in a planar shape, Adopt a robust reinforced concrete mat foundation.  [Local Photos]
Support the building in a planar shape, Adopt a robust reinforced concrete mat foundation. [Local Photos]

Local appearance photo. Front road facing south, Day ventilation is good.  [Local Photos]
Front road facing south, Day ventilation is good. [Local Photos]

Station

station. Kintetsu Nara Line "single Oka" 615m to the station
Kintetsu Nara Line "single Oka" 615m to the station

Kindergarten ・ Nursery

kindergarten ・ Nursery. Higashi-Osaka to Municipal sheets Oka kindergarten 161m
Higashi-Osaka to Municipal sheets Oka kindergarten 161m

Primary school

Primary school. Higashi-Osaka 321m up to municipal sheets Okanishi Elementary School
Higashi-Osaka 321m up to municipal sheets Okanishi Elementary School

Junior high school

Junior high school. Higashi-Osaka City Maioka until junior high school 135m
Higashi-Osaka City Maioka until junior high school 135m

Hospital

Hospital. 417m until the medical corporation sheets Oka hospital
417m until the medical corporation sheets Oka hospital

Supermarket

Supermarket. 433m until Bandai Takadono shop
433m until Bandai Takadono shop

Supermarket. Maxvalu until Hyotan'yama shop 826m
Maxvalu until Hyotan'yama shop 826m

Police station ・ Police box

Police station ・ Police box. Maioka 1233m to police station
Maioka 1233m to police station

Other

Other. To customer contracts concluded by Seiki Corporation, We will receive a "T point". Or use in TSUTAYA and T-point tie-up shop "T Point", It is a common point service that can be pooled or. For more information, please contact.
To customer contracts concluded by Seiki Corporation, We will receive a "T point". Or use in TSUTAYA and T-point tie-up shop "T Point", It is a common point service that can be pooled or. For more information, please contact.

Present

Present.  ◆ New life support campaign of autumn ◆ The customer's contract until the end of November, Two air conditioning, Or LED lighting eight will present either!
◆ New life support campaign of autumn ◆ The customer's contract until the end of November, Two air conditioning, Or LED lighting eight will present either!



Location