New Homes » Kansai » Osaka prefecture » Higashi-Osaka City


Osaka Prefecture Higashiosaka
Kintetsu Nara Line "Nukata" walk 2 minutes
■ Rooftop garden with a 2-story, Osaka Plain is overlooking! ■ Kintetsu "Nukata" Station 2-minute walk!
Features pickup
Pre-ground survey / Immediate Available / See the mountain / System kitchen / Bathroom Dryer / Yang per good / All room storage / Flat to the station / LDK15 tatami mats or more / Corner lot / Washbasin with shower / Face-to-face kitchen / Wide balcony / 3 face lighting / Toilet 2 places / Bathroom 1 tsubo or more / 2-story / Warm water washing toilet seat / Underfloor Storage / The window in the bathroom / Leafy residential area / Mu front building / Ventilation good / All living room flooring / Good view / Dish washing dryer / Living stairs / Located on a hill / A large gap between the neighboring house / roof balcony
Event information
Model house (Please be sure to ask in advance) schedule / Every Saturday, Sunday and public holidays time / 10:00 ~ 17:00
Price
31,800,000 yen
Floor plan
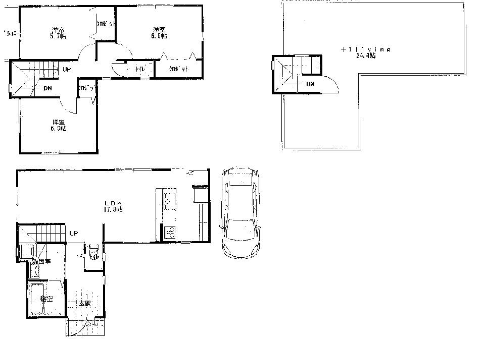
3LDK
Units sold
1 units
Total units
1 units
Land area
120.11 sq m (registration)
Building area
92.62 sq m (registration)
Driveway burden-road
1.45 sq m , West 5m width (contact the road width 7.2m), South 4m width (contact the road width 8.1m), North 4m width (contact the road width 8.1m)
Completion date
November 2013
Address
Osaka Prefecture Higashi Higashitoyoura cho
Traffic
Kintetsu Nara Line "Nukata" walk 2 minutes
Related links
[Related Sites of this company]
Person in charge
Rep Takahashi
Contact
(Ltd.) U-Shin TEL: 0800-808-7042 [Toll free] mobile phone ・ Also available from PHS
Caller ID is not notified
Please contact the "saw SUUMO (Sumo)"
If it does not lead, If the real estate company
Building coverage, floor area ratio
60% ・ 200%
Time residents
Immediate available
Land of the right form
Ownership
Structure and method of construction
Wooden 2-story (framing method)
Use district
Two mid-high
Other limitations
Scenic zone
Overview and notices
Contact: Takahashi, Facilities: Public Water Supply, This sewage, City gas, Parking: car space
Company profile
<Marketing alliance (agency)> governor of Osaka (3) No. 049491 (Ltd.) Yushin Yubinbango540-0015, Chuo-ku, Osaka-shi Juniken cho 6-22


Floor plan

Floor plan. 31,800,000 yen, 3LDK, Land area 120.11 sq m , Building area 92.62 sq m
31,800,000 yen, 3LDK, Land area 120.11 sq m , Building area 92.62 sq m

Local appearance photo

Local appearance photo. Local (11 May 2013) Shooting
Local (11 May 2013) Shooting

View photos from the dwelling unit

View photos from the dwelling unit. View from the site (November 2013) Shooting
View from the site (November 2013) Shooting

Local appearance photo

Local appearance photo. Local appearance
Local appearance

Living

Living. 17.8 tatami LDK
17.8 tatami LDK

View photos from the dwelling unit

View photos from the dwelling unit. View from the site (November 2013) Shooting
View from the site (November 2013) Shooting

Non-living room

Non-living room. Western style room
Western style room

Bathroom

Bathroom. Bathroom
Bathroom

Entrance

Entrance. Entrance hall
Entrance hall



Location