|
|
Osaka Prefecture Higashiosaka
大阪府東大阪市
|
|
Kintetsu Nara Line "Higashihanazono" walk 10 minutes
近鉄奈良線「東花園」歩10分
|
|
◇ There are standard equipment ◇ parking space the latest equipment of enhancement ◇ is a quiet residential area
◇充実の最新設備を標準装備◇駐車スペースあります◇閑静な住宅街です
|
|
◇ LDK Gas is a floor heating comfortably spend ◇ also comes with a convenient system Kitchen Dishwasher ◇ have relaxed with a bathroom ventilation drying heater in the bathroom ◇ All room popularity of Western-style ◇ per yang ・ Ventilation is good ◆ We will immediately guide you to correspond per vacant house! ! Contact us feel free to ☆ → 0800-808-7253
◇LDK ガス床暖房です快適に過ごせます◇便利なシステムキッチン食器洗い乾燥機も付いてます◇ゆったり浴室には浴室換気乾燥暖房機がついてます◇全居室人気の洋室です◇陽当たり・通風良好です◆空き家につき即ご案内対応させていただきます!!お問い合わせはお気軽に☆→0800-808-7253
|
Features pickup 特徴ピックアップ | | Corresponding to the flat-35S / Bathroom Dryer / A quiet residential area / Face-to-face kitchen / Bathroom 1 tsubo or more / The window in the bathroom / TV monitor interphone / Dish washing dryer / Three-story or more / City gas / Floor heating フラット35Sに対応 /浴室乾燥機 /閑静な住宅地 /対面式キッチン /浴室1坪以上 /浴室に窓 /TVモニタ付インターホン /食器洗乾燥機 /3階建以上 /都市ガス /床暖房 |
Price 価格 | | 20.8 million yen 2080万円 |
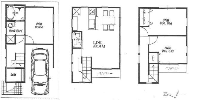
Floor plan 間取り | | 3LDK 3LDK |
Units sold 販売戸数 | | 1 units 1戸 |
Total units 総戸数 | | 1 units 1戸 |
Land area 土地面積 | | 49.54 sq m (14.98 tsubo) (Registration) 49.54m2(14.98坪)(登記) |
Building area 建物面積 | | 84.84 sq m (25.66 tsubo) (Registration) 84.84m2(25.66坪)(登記) |
Driveway burden-road 私道負担・道路 | | Nothing 無 |
Completion date 完成時期(築年月) | | December 2013 2013年12月 |
Address 住所 | | Osaka Prefecture Higashi Shin'ikeshima cho 2 大阪府東大阪市新池島町2 |
Traffic 交通 | | Kintetsu Nara Line "Higashihanazono" walk 10 minutes Kintetsu Nara Line "Hyotan'yama" walk 16 minutes Kintetsu Nara Line "Kawachihanazono" walk 16 minutes 近鉄奈良線「東花園」歩10分 近鉄奈良線「瓢箪山」歩16分 近鉄奈良線「河内花園」歩16分
|
Person in charge 担当者より | | Rep Chuwaki Takahiro Age: 20 Daigyokai Experience: My name is 8 years buying and selling in charge to have Chuwaki! I have my own marriage! (wife ・ Two children you have) firmly stand on your position, We will provide the best you live in the area that has been sought from the family structure and budget 担当者中脇 崇宏年齢:20代業界経験:8年売買担当している中脇と申します!私自身結婚しております!(妻・子供二人います)しっかりお客様の立場に立ち、家族構成や予算から探されているエリアでの最適なお住まいを提供させていただきます |
Contact お問い合せ先 | | TEL: 0800-808-7253 [Toll free] mobile phone ・ Also available from PHS Caller ID is not notified Please contact the "saw SUUMO (Sumo)" If it does not lead, If the real estate company TEL:0800-808-7253【通話料無料】携帯電話・PHSからもご利用いただけます 発信者番号は通知されません 「SUUMO(スーモ)を見た」と問い合わせください つながらない方、不動産会社の方は
|
Building coverage, floor area ratio 建ぺい率・容積率 | | 60% ・ 200% 60%・200% |
Time residents 入居時期 | | Consultation 相談 |
Land of the right form 土地の権利形態 | | Ownership 所有権 |
Structure and method of construction 構造・工法 | | Wooden three-story 木造3階建 |
Use district 用途地域 | | One middle and high 1種中高 |
Overview and notices その他概要・特記事項 | | The person in charge: Medium aside Takahiro, Facilities: Public Water Supply, This sewage, City gas, Building confirmation number: J13-00255, Parking: No 担当者:中脇 崇宏、設備:公営水道、本下水、都市ガス、建築確認番号:J13-00255、駐車場:無 |
Company profile 会社概要 | | <Mediation> governor of Osaka Prefecture (1) No. 056319 (Ltd.) rack housing Yubinbango574-0033 Osaka Prefecture Daito Ogimachi 6-17 <仲介>大阪府知事(1)第056319号(株)ラックハウジング〒574-0033 大阪府大東市扇町6-17 |