New Homes » Kansai » Osaka prefecture » Higashi-Osaka City


Osaka Prefecture Higashiosaka
JR katamachi line "Suminodo" walk 31 minutes
■ Parking two of land about 30 square meters is sold at an attractive price! ■ You can achieve the acquisition between the ideal in the free plan
■ Floor heating Mist sauna Dishwasher Pair glass A standard feature! Facilities You can choose from luxury to 6 manufacturer! ■ Roof balcony you can also support ■ Spacious parking two! Loose 4LDK is attractive price!
Features pickup
Pre-ground survey / Parking two Allowed / LDK18 tatami mats or more / System kitchen / Bathroom Dryer / All room storage / A quiet residential area / Japanese-style room / Mist sauna / Face-to-face kitchen / Barrier-free / Toilet 2 places / Bathroom 1 tsubo or more / 2-story / Double-glazing / Underfloor Storage / The window in the bathroom / Dish washing dryer / Walk-in closet / All room 6 tatami mats or more / Water filter / Living stairs / City gas / Floor heating
Price
21,800,000 yen ~ 25,800,000 yen
Floor plan
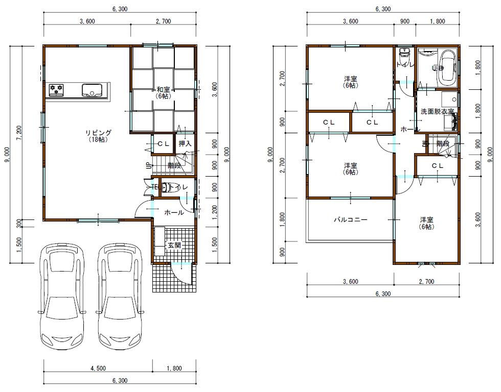
4LDK
Units sold
3 units
Total units
3 units
Land area
99.8 sq m ~ 103.27 sq m
Building area
94.8 sq m ~ 97.22 sq m
Completion date
6 months after the contract
Address
Osaka Prefecture Higashi Motomachi 1
Traffic
JR katamachi line "Suminodo" walk 31 minutes
Related links
[Related Sites of this company]
Person in charge
[Regarding this property.] ■ 30 square meters living 18 quires loose 4KDK is at this price!
Contact
Archi Home (Ltd.) TEL: 0800-805-3769 [Toll free] mobile phone ・ Also available from PHS
Caller ID is not notified
Please contact the "saw SUUMO (Sumo)"
If it does not lead, If the real estate company
Building coverage, floor area ratio
Building coverage 60% Volume rate of 200%
Time residents
6 months after the contract
Land of the right form
Ownership
Structure and method of construction
Two-story wooden (Jikukumi method)
Use district
One dwelling
Land category
Residential land
Overview and notices
Building confirmation number: H25CIASO2172
Company profile
<Marketing alliance (agency)> governor of Osaka Prefecture (1) No. 055578 archetypes Home Co., Ltd. Yubinbango574-0074 Osaka Daito Tanigawa 2-8-50


Rendering (appearance)

Rendering (appearance). Image is a Perth, Of course, the outer wall also can decide your preference.
Image is a Perth, Of course, the outer wall also can decide your preference.

Other

Other. Mato drawings
Mato drawings

Receipt

Receipt. Indoor (June 2013) Shooting Our construction cases
Indoor (June 2013) Shooting Our construction cases

Living

Living. Indoor (June 2013) Shooting Our construction cases
Indoor (June 2013) Shooting Our construction cases

Bathroom

Bathroom. You can choose from your favorite manufacturer!
You can choose from your favorite manufacturer!

Non-living room

Non-living room. Indoor (June 2013) Shooting
Indoor (June 2013) Shooting

Power generation ・ Hot water equipment

Power generation ・ Hot water equipment. Dishwasher dishwashers / Glass top stove / Anhydrous double-sided grill
Dishwasher dishwashers / Glass top stove / Anhydrous double-sided grill

Local photos, including front road

Local photos, including front road. Local (12 May 2013) Shooting
Local (12 May 2013) Shooting

Supermarket

Supermarket. Okuwa 1319m to Daito shop
Okuwa 1319m to Daito shop

The entire compartment Figure

The entire compartment Figure. Spacious 3 compartment
Spacious 3 compartment

Bathroom

Bathroom. You can choose from your favorite manufacturer!
You can choose from your favorite manufacturer!

Power generation ・ Hot water equipment

Power generation ・ Hot water equipment. Mist sauna / Bathroom dryer / Reheating / Kururin poi drainage port
Mist sauna / Bathroom dryer / Reheating / Kururin poi drainage port

Supermarket

Supermarket. 1351m until Bandai Ishikiri shop
1351m until Bandai Ishikiri shop

Cooling and heating ・ Air conditioning

Cooling and heating ・ Air conditioning. It is a product of Osaka Gas.
It is a product of Osaka Gas.

Convenience store

Convenience store. 732m to Circle K Higashi Nunoshi shop
732m to Circle K Higashi Nunoshi shop

Convenience store. 997m to Seven-Eleven Higashi Kano 3-chome
997m to Seven-Eleven Higashi Kano 3-chome

Home center

Home center. Yamada Denki Tecc Land until Higashi shop 799m
Yamada Denki Tecc Land until Higashi shop 799m

Park

park. 699m to Kano green space
699m to Kano green space



Location