Investing in Japanese real estate
3-935 No. 18 outside Hirakata, Osaka Nagaomoto cho
2012April 37,690,000 yen ~ 38,370,000 yen, 3LDK ~ 3LDK, 87.99 sq m ~ 96.58 sq m | ||
Hirakata, Osaka Korien uptown-cho 2-84
29,200,000 yen, 124.71 sq m | ||
Hirakata, Osaka Shodaimoto cho
26,800,000 yen, 4LDK, 104.08 sq m | ||
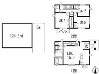
Hirakata, Osaka Kitanakaburi 1
5 million yen, 124.5 sq m | ||
Hirakata, Osaka Korien uptown-cho
27,800,000 yen ~ 33,500,000 yen, 3LDK, 81.98 sq m ~ 99.36 sq m | ||
Hirakata, Osaka Fujisakamoto cho
2013December 23.8 million yen ・ 25,800,000 yen, 4LDK ・ 4LDK + S (storeroom), 96.79 sq m ~ 98.41 sq m | ||
Hirakata, Osaka Kuzuhamendori-cho, 1-589
29,800,000 yen ~ 36,300,000 yen, 3LDK ~ 4LDK, 88.29 sq m ~ 92.34 sq m | Hirakata, Osaka Nishikin'ya 1-1707 No. 1
35,850,000 yen ~ 48,160,000 yen, 3LDK ~ 4LDK, 93.9 sq m ~ 98.4 sq m | |
Hirakata, Osaka Nasuzukuri 1
19,800,000 yen ~ 23.8 million yen, 3LDK ・ 4LDK, 81 sq m ~ 94.36 sq m | ||