|
|
Hirakata, Osaka
大阪府枚方市
|
|
Keihan "Kozenji" walk 9 minutes
京阪本線「光善寺」歩9分
|
|
Air Heating dryer with bathroom ・ Standard specification of enhancement, such as shower Dresser
換気暖房乾燥機付き浴室・シャワードレッサーなど充実の標準仕様
|
|
Air Heating dryer with bathroom ・ Standard specification of enhancement, such as shower Dresser
換気暖房乾燥機付き浴室・シャワードレッサーなど充実の標準仕様
|
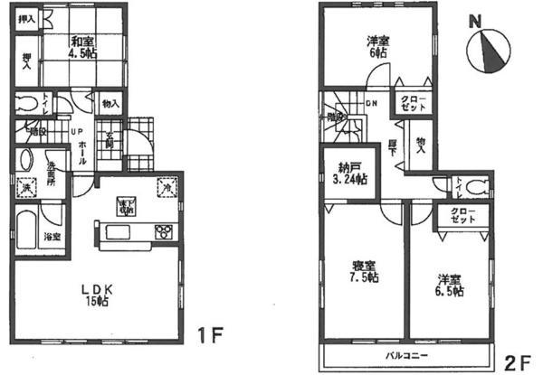
Features pickup 特徴ピックアップ | | System kitchen / Bathroom Dryer / Or more before road 6m / Washbasin with shower / Face-to-face kitchen / Toilet 2 places / Bathroom 1 tsubo or more / 2-story / Double-glazing / Otobasu / Warm water washing toilet seat / Underfloor Storage / TV monitor interphone / Water filter / City gas システムキッチン /浴室乾燥機 /前道6m以上 /シャワー付洗面台 /対面式キッチン /トイレ2ヶ所 /浴室1坪以上 /2階建 /複層ガラス /オートバス /温水洗浄便座 /床下収納 /TVモニタ付インターホン /浄水器 /都市ガス |
Price 価格 | | 34,300,000 yen 3430万円 |
Floor plan 間取り | | 4LDK + S (storeroom) 4LDK+S(納戸) |
Units sold 販売戸数 | | 1 units 1戸 |
Land area 土地面積 | | 124.14 sq m (registration) 124.14m2(登記) |
Building area 建物面積 | | 96.79 sq m 96.79m2 |
Driveway burden-road 私道負担・道路 | | Nothing, North 6.8m width 無、北6.8m幅 |
Completion date 完成時期(築年月) | | February 2014 2014年2月 |
Address 住所 | | Hirakata, Osaka Suikoen cho 大阪府枚方市翠香園町 |
Traffic 交通 | | Keihan "Kozenji" walk 9 minutes 京阪本線「光善寺」歩9分
|
Related links 関連リンク | | [Related Sites of this company] 【この会社の関連サイト】 |
Contact お問い合せ先 | | TEL: 0800-603-2643 [Toll free] mobile phone ・ Also available from PHS Caller ID is not notified Please contact the "saw SUUMO (Sumo)" If it does not lead, If the real estate company TEL:0800-603-2643【通話料無料】携帯電話・PHSからもご利用いただけます 発信者番号は通知されません 「SUUMO(スーモ)を見た」と問い合わせください つながらない方、不動産会社の方は
|
Building coverage, floor area ratio 建ぺい率・容積率 | | Fifty percent ・ Hundred percent 50%・100% |
Time residents 入居時期 | | Consultation 相談 |
Land of the right form 土地の権利形態 | | Ownership 所有権 |
Structure and method of construction 構造・工法 | | Wooden 2-story 木造2階建 |
Use district 用途地域 | | One low-rise 1種低層 |
Overview and notices その他概要・特記事項 | | Facilities: Public Water Supply, This sewage, City gas, Building confirmation number: No. H25SHC118974 設備:公営水道、本下水、都市ガス、建築確認番号:第H25SHC118974号 |
Company profile 会社概要 | | <Mediation> governor of Osaka Prefecture (3) The 046,613 No. Century 21 Ritz housing (Ltd.) Hirakata store Yubinbango573-0022 Hirakata, Osaka Miyanosaka 2-2-5-103 <仲介>大阪府知事(3)第046613号センチュリー21リッツハウジング(株)枚方店〒573-0022 大阪府枚方市宮之阪2-2-5-103 |